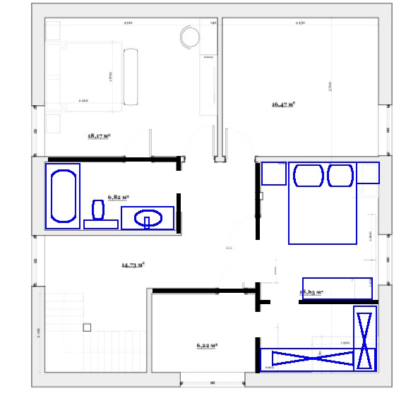
2 этаж. Не могу найти идеальную схему
Вопросы и ответыСтояк у нас слева между окнами. Высота стен 1.5м (сверху и снизу на схеме), потом скос крыши. Прораб сказал, что с/у можно делать где угодно, не привязываясь к стояку, а на углах сделать ревизии (если вдруг засор). Нужно: 3 комнаты (1 родительская спальня, 1 спальня для двух детей и 1 игровая), с/у с окном (мой бзик), ванна на ножках (размер с/у наверное не менее 7м2), гардеробная. Не хочется коридоров. Я думала 2 детям сделать спальню 15-20м2, игровую 10м2, нам спальню 15м2 минимум.
Муж начертил схему с 2 гардеробными (спальня не имеет совместной с с/у стены), но мне не нравятся совсем маленькие спальни (хотя изначально он говорил, что 10м2 мало).
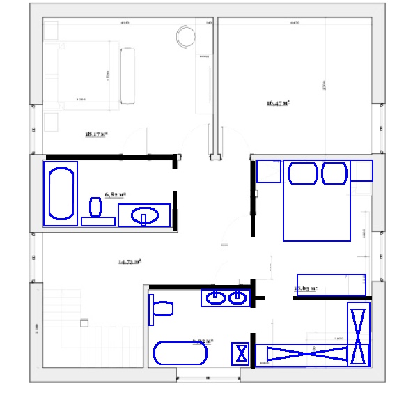
Есть ещё схемы.
В общем, разрулите, пожалуйста, мои мысли. Нужны ли побольше спальни или маленькие... стены будут каркасные. Единственное, отчего зависим, там есть подпорный столб, надо спрятать его в стену (указан в стене спальни справа снизу). Мальчикам 5мес, 2.5г и 7.5г
На 1 этаже у нас Кухня/гостиная, кладовка, котельная, с/у и спальня (может ее под игровую задействовать потом? Или старшего туда переселить через 3-5 лет?)






Это я примерно нарисовала. У меня нет программы. 4 спальни и ванная. Гардеробные можно хоть в каждой спальне рисовать или уменьшить спальню буквой Г.
Но ты не любишь коридоры, это проблема. И окно в ванной мне не удалось впихнуть.
