Когда на даче красивее, чем дома
Авторские проекты дизайнеров.(Посты не по теме будут удаляться!)Каким вы себе представляете интерьер дачного дома? Как правило, первая ассоциация будет с деревенскими старыми домишками, туалетом на улице и грядками под окнами. :) По крайней мере, именно на таких дачах росли дети советских и постсоветских времён. Но этот проект совсем иной! Небольшой дом, дизайн которого создавался для семейной пары с трёхлетним ребёнком, получился светлым, удобным для жизни и о-очень уютным. Отличный результат, если учесть вводные: минимум затрат и переделок, максимум скандинавкого настроения.
Посмотрим?

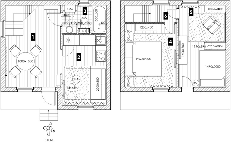
Когда дом (дача) запланирован к постройке, дизайн интерьера становится логическим продолжением строительных работ. В нашем случае, наоборот, у заказчиков уже был готовый деревянный каркасный домик, обитый изнутри вагонкой. Сложно было работать с миниатюрным пространством, в котором всё находится друг от друга буквально на расстоянии вытянутой руки. К тому же, стояла задача максимально удешевить и упростить ремонт - насколько это вообще возможно.

Любой ремонт всё равно тянет за собой траты: на что-то одно потратишь меньше, а в другое придётся вложиться. Здесь, например, сэкономили на укладке пола и просто покрасили его стойкой краской - так получилось потому, что доски и лаги были в хорошем состоянии. Ещё, чтобы недорогим способом освежить интерьер дома, сделали небольшой гипсокартонный короб и оклеили его обоями с зигзагообразным рисунком - так мы обозначили обеденную зону и задали скандинавское настроение.
Совет: Не стоит отказываться от гипсокартонных конструкций из опасений, что они «съедят пространство». Наоборот, при правильном подходе они добавят объёма и сделают комнату интереснее.

Стены, обшитые вагонкой, можно считать бонусом только в том случае, если это баня. :) Четыре деревянные стены визуально очень сильно давят, тяжело воспринимаются. Чтобы помещение смотрелось стильно, достаточно просто покрасить вагонку матовой краской - светлой, если нужно визуально увеличить пространство. Стену возле лестницы на второй этаж мы сделали серой - мало того, что это практично, так ещё и добавился интересный акцент, который перекликается по цвету с кухонными шкафчиками.

Кухня-гостиная получилась просто крошечкой-хаврошечкой - её площадь чуть меньше 10 кв. м. Это на самом деле очень-очень маленький дом; дизайн в скандинавском стиле подходил сюда как нельзя лучше! Возможно, для жизни в городе такой кухни было бы маловато, но для дачи самое то. :)

Внимательные читатели уже заметили, что в этом доме нет ни одного шкафа. Так и есть. К сожалению, шкафы не поместились ни в одну комнату. Но, поскольку это всё-таки дизайн дачного дома, а не городской квартиры, заказчики легко приняли этот факт. К тому же, симпатичные комодики оказались гораздо вместительнее, чем могло бы показаться на первый взгляд! ;)

И в детской, и в спальне скошенный потолок. Удобно ли это в жизни? Для ребёнка точно удобно, а взрослые поднимаются в спальню только чтобы спать. Да и вообще, многие видят в мансардных этажах свою прелесть. В конце концов, если бы заказчиков такой вариант не устраивал, вряд ли бы они захотели делать в доме ремонт. :) Вот вам недорогой способ визуально добавить простора в комнату: нарисовать на скошенной части потолка геометрические фигуры.

Для понимания, общая площадь здесь - 51 кв. м на оба этажа. Компактно! Но даже несмотря на это, у нас получился очень приятный и уютный скандинавский интерьер дачного дома. Здесь есть абсолютно всё, что нужно заказчикам для удобной жизни летом. А добавьте к этому ещё и свежий воздух, зелень и пение птиц за окном - вырисовывается идеальная картинка. Так что стильной даче - быть, вне всяких сомнений!