Дизайн проект 3 ком.квартиры!
Авторские проекты дизайнеров.(Посты не по теме будут удаляться!)
https://bazar.babyblog.ru/item/353305
Всем привет!
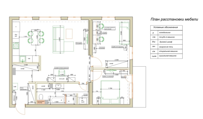
Хочу поделиться дизайн проектом 3 ком.квартиры. Интерьер был разработан для молодой семьи с двумя детьми.
Площадь квартиры 74 кв.м. Основной задачей было сделать удобный, современный, функциональный интерьер для жизни.
Кухня-гостиная.











Коридор. 



Детская для мальчиков. 




Спальня.
Часть мебели ( кровать, лампы, тумбы) уже были куплены, необходимо было вписать в новый интерьер. 



Ванная. 




Спасибо за проявленный интерес! ;)
Другие мои проекты можно посмотреть на сайте
Работаю удаленно со всеми городами!)
Ма
Добрый день!
Подскажите, а плитка в ванной парселоноса? И можно название бежевой плитки в ванне, и бежевых обоев на стене с часами, спасибо)
05.11.2018
Ответить
Марилеон половых дел мастер
Поскольку желание заказчика - закон, то все отлично. А так совмещенный санузел и кухня-гостиная решения очень спорные, но насколько я поняла, то это не ваша идея. Ощущение, что кухня крошечная,но может хозяева и не готовят практически.
12.09.2018
Ответить
Cybik
Спорно с размещением унитаза, маленькое расстояние от шкафа до унитаза, коленками будут упираться в шкаф...
12.09.2018
Ответить
Наталья Тимофеева (interior designer)
Не переживайте, места там достаточно, никто никуда упираться не будит
12.09.2018
Ответить
Joy
Мне все понравилось . Но не увидела зеркала в прихожей. И двухьярусная кровать не очень , как и обьединенный санузел с кухней-гостиной
12.09.2018
Ответить
Наталья Тимофеева (interior designer)
Спасибо!) зеркало в прихожей есть, шкаф с зеркальными дверями.
12.09.2018
Ответить
Нина
Очень нежно получилось. Дизайн радует глаз.
Подскажите, пожалуйста, что за часы использованы в проекте? (Кухня-гостинная)
И, если не сложно, поподробнее про фито-панно в ванной. Растения живые? Был ли опыт, отзывы на то, как оно в уходе?
12.09.2018
Ответить
Наталья Тимофеева (interior designer)
Спасибо!) Часы не подскажу, просто 3 д модель. Фито панно из стабилизированного мха, в уходе не прихотлив.
12.09.2018
Ответить
Оксана (дизайнер, инста: @persona_story)
Санузел огромный. Зачем объединили? Четыре человека.
В остальном все очень хорошо.
12.09.2018
Ответить
Оставшиеся комментарии доступны после регистрации
Зарегистрируйтесь и получите полный доступ ко всем функциям сайта.