Неоклассика в оливковых тонах
Авторские проекты дизайнеров.(Посты не по теме будут удаляться!)Доброго вечера дорогие!
Хочу поделится прекрасным проектом для не менее прекрасной семьи из 3 человек 👪

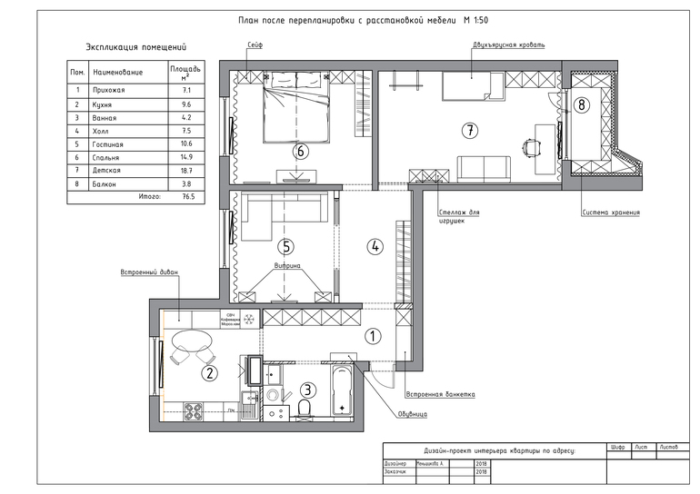
Сначала как всегда начали с перепланировки, но так конфигурация квартиры не позволяет сделать кардинальные решения, основным изменением стало объединение с/у и ванной комнаты и перегородка с двухстворчатой раздвижной дверью в гостиной (план ниже 👇)
Заказчики изначально сформировали свои потребности и то что они хотят по итогу увидеть, что всегда облегчает понимание.
Проект уже находится на реализации фото ниже .
С моими работами можно познакомится в дневнике и по ссылке @Dinterior12 😉
Прихожая, холл




Кухня 9.6 м2


Гостиная 10.6 м2


Мастер спальня 14.9 м2





Детская 18.7 м2 для мальчика которому 2 годика




Ванная 4.2 м2


до перепланировки план:

после перепланировки с расстановкой мебели план:

и так фото с реализации )









спасибо за внимание ☺️