Шкафы-купе_Нужен ваш совет!
Интерьерное решение жилых помещений.Всем доброе утро!
Всем спасибо за помощь и советы! Очень помогли. Прикрепила итоговый вариант, к которому мы пришли. Если вдруг кому-то пригодится.
По цене оба шкафа обошлись в 143 тыс. с установкой и доставкой. Как только установят, обязательно поделюсь фото.




Очень надеюсь на ваш совет и помощь, ибо мой взгляд уже замылился.
Итак, что имеем. В прихожей у нас будет 2 встроенных шкафа-купе. В спальне и других комнатах их не будет + есть небольшое помещение (как кладовка), в котором мы планиуруем хранить коробки, консервацию, пылесос и т.д.
Примерно шкафы будут выглядеть так:

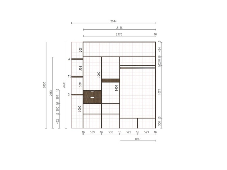
ШКАФ № 1 (слева) - предполагается под блузки, футболки, белье и т.д.
ШКАФ № 2 (справа) - под верхнюю одежду, обувь, хранение демисезонной и т.д.
ВОПРОС: как вы думаете, не многовато ли у нас штанг? Может быть штанги в шкафу под верхнюю одежду заменить на полки? Из опыта использования, что удобнее? Я вот переживаю, что мало полок.
Что стоит еще учесть и переделать? Или всего достаточно?
Спасибо заранее (ниже фото с размерами и наполнением)
ШКАФ № 1


ШКАФ №2


40 см под длинные платья, у меня их очень мало (именно в такой длине), 3-4 + возможно жилетка. Я сдела как раз на всякий случай. Были мысли отказаться от них и сделать там такие же полки как и справа.
Но сейчас вот уже задумываюсь о штангах.
Спасибо!
Шкаф в прихожей. В общем всё устраивает, места хватает. Сейчас бы сделала отделение для штанг шире, но тогда полки для обуви были бы на две коробки в ширину, а не на три.