Классная трёшка в современном стиле
Авторские проекты дизайнеров.(Посты не по теме будут удаляться!)

Для современных интерьеров характерна простота чётких линий и минимум украшений. Современный стиль любит простор, комфорт и функциональность. Всё, что можно скрыть от посторонних глаз, лучше спрятать в шкафчиках, ящиках, комодах и шкафах - благодаря чему, кстати, гораздо легче поддерживать порядок в доме. В этой гостиной именно так, и даже на открытых полках стеллажа мы видим одинаковые коробки, в которых хранится всякая полезная мелочёвка.

Смотрите, какие симпатичные деревянные рейки! Заказчики были в восторге. :) Такое украшение стены отлично вписывается в современный дизайн интерьера квартиры. Идея не новая, но актуальная: объёмные рейки задали тон в гостиной и кухне, прекрасно сочетаются с нейтральным серым, а также поддерживают цвет пола и перекликаются с открытыми полками стеллажа в гостиной.
Совет: Если квартира выходит окнами на северную сторону, вам на сто процентов показаны светлые стены и корпусная мебель. И не бойтесь холодных цветов мягкой мебели: синий диван не добавит много «холода», а станет классным цветовым пятном.

Во-первых, потому что спальня в сером цвете очень успокаивает и расслабляет. Серая комната не будет выглядеть мрачной, если использовать светлые вставки. В нашем случае это стена в изголовье кровати с цветными фотографиями и светлая мебель. Но основная причина, почему спальня получилась именно такой, заключается в том, что муж и жена очень долго не могли решить для себя, в каком цвете её оформлять. То, что вы видите - разумный компромисс, который устроил обе стороны в споре. :)

Не тревожьтесь, ребёнку не будет холодно в комнате, которую объединили с лоджией. Современный ремонт квартиры позволяет утеплить и пол, и стены. :) В этой комнате стало гораздо светлее и просторнее, ведь площадь детской была не такой уж большой - 12 кв. м, а лоджия забирала много света.


Мы такие: то ни одного санузла не показываем, то аж сразу два! :) Я часто говорю, что мы бы с удовольствием делали визуализации и коридоров, и санузлов, и вообще каждого уголка квартиры, да вот только дизайн-проект стоил бы гораздо дороже. Так что обычно сами заказчики и отказываются. Но не в этот раз. :)

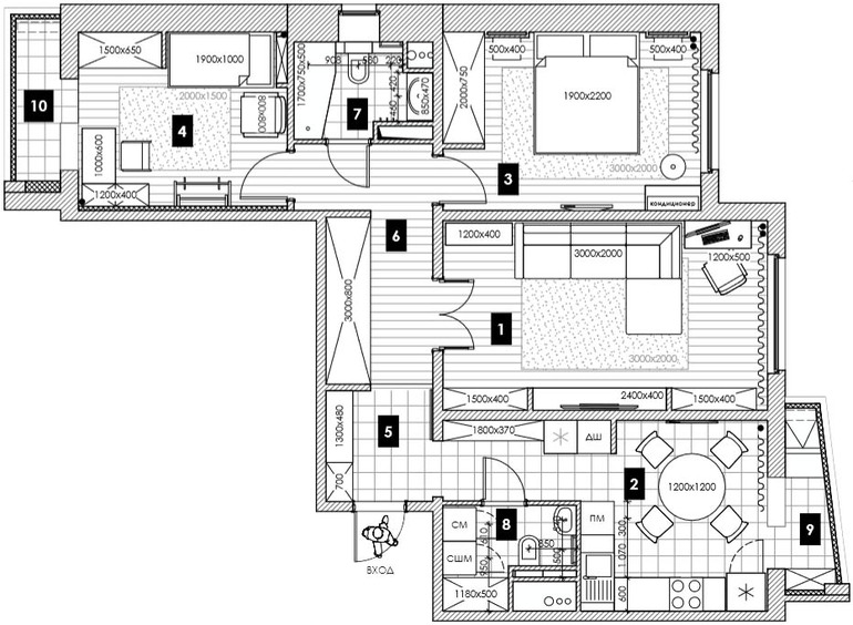
Общая площадь квартиры 88 кв. м, высота потолков 2,6 м. Планировка стандартного панельного дома серии П-3МК, ничего не меняли - только убрали одну стенку между туалетом и кладовой, чтобы сделать более просторный гостевой санузел с прачечной (на плане отмечен цифрой 8).