Дизайн-проект: "Характер нордический"
Авторские проекты дизайнеров.(Посты не по теме будут удаляться!)Всем привет и с наступающим!
Сегодня покажу Вам проект в стиле скандинавского минимализма.
С заказчицей мы сразу же нашли общий язык. Она довольно четко знала чего хочет и я поймала ее волну буквально с первого эскиза.
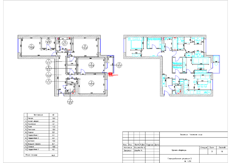
Квартира свободной планировки в 100м2. Стояла задача запроектировать 2 спальни (родительская и детская для двух мальчиков), отдельную от кухни гостиную (она же гостевая спальня), 2 санузла и много-много мест хранения. Проще говоря, чем больше гардеробных, тем лучше.
Цветовая гамма была четко регламентирована заказчицей: белый, цвет дерева, серый, черный и желтые акценты. Только в гостиной и на лоджии я все-таки добилась немного отойти от концепции и добавить оранжевого вместо желтого (кто меня давно читает, знают, что это оксюморон, чтобы я сама предложила оранжевый=)).
Итак, приступим.
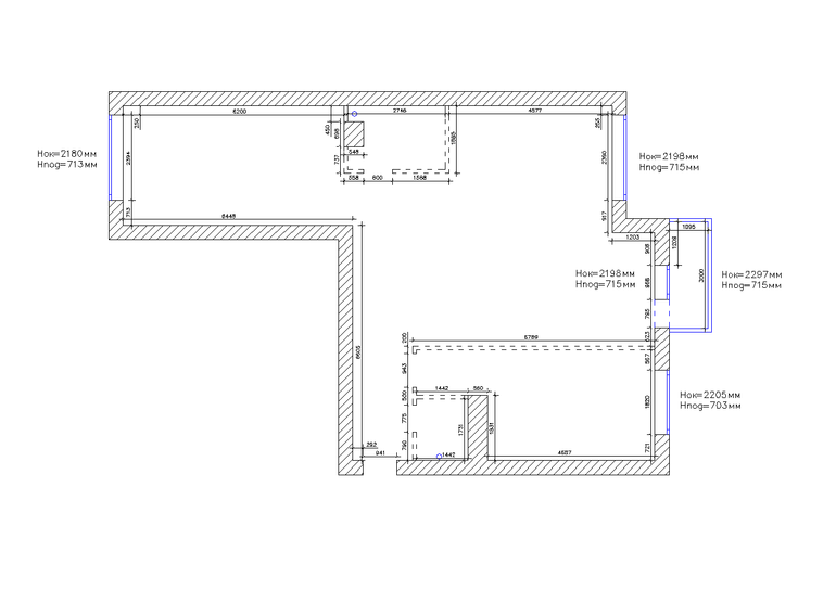
Обмерочный чертеж.

Планировочное решение. 
Прихожая-коридор

Кухня

Гостиная

Лоджия

Малый санузел

Большой санузел

Детская

Спальня

Ставьте лайки, комментируйте, всем отвечу.
По всем вопросам пишите или звоните сюда, на телефон, в вотсап, на почту.
8-905-767-13-32
Сайт:
Инстаграм:
Фейсбук:
Почта:
Naamah1987@yandex.ru
ananasdesign1@gmail.com