Двушка в колониальном стиле
Авторские проекты дизайнеров.(Посты не по теме будут удаляться!)Рассаживайтесь поудобнее, сейчас расскажу кое-что интересное. :)
Колониальный стиль - это классика, смешанная с ориентальными этническими мотивами. «Колониальным» его называют потому, что он зародился в период Великих географических открытий. Представьте себе те дни, когда завоеватели приезжали жить в свои колонии в Азии, Африке, Индии, строили там дома и привозили свою привычную классическую мебель, которую нужно было как-то вписать в реальность вокруг. Местный текстиль, буйная растительность до потолка, много света, интересный этнический декор, необычные статуэтки - вот каким было жильё колонизаторов тех времён.
В наши дни мало кто из дизайнеров использует колониальный стиль - наверное, потому, что заказчики не озвучивают таких пожеланий и не приносят подобных концепций. Так было до недавних пор, пока к нам в студию не пришла семейная пара - супруги заострили внимание на том, что хотят традиционный интерьер в бежево-кофейной гамме. На мысль о необычном стиле навел один из референсов - захотелось зацепиться за картинку, а в итоге оказалось, это было именно то, что нужно! :)
На стене - не принт, как могло бы показаться, а гигантское панно размером 120х120 см, которое заказчики привезли из Таиланда вместе с другими элементами декора - вазами и статуэтками. Использование ориентальных элементов делает колониальный интерьер по-настоящему самобытным!


Что ещё можно посоветовать тем, кто захочет повторить у себя колониальный стиль в интерьере? Используйте сочетание светлых стен и тёмной массивной мебели. Эффект состаренной древесины очень круто смотрится именно в таких интерьерах! Уделите внимание мелочам, но не злоупотребляйте декором: достаточно композиции из нескольких похожих тарелок на стене или одной крупной статуэтки на стеллаже. В этом стиле отлично смотрятся крупные пальмообразные растения в массивных горшках - в нашем случае от них пришлось отказаться, потому что заказчики не любят зелень.
Совет: обратите внимание на то, как оформлен стык стен и потолка. Широкий потолочный карниз смотрится бесподобно, особенно в колониальном стиле. Высота потолков в квартире заказчиков 260 см, при этом эффекта «давления на голову» нет и в помине.




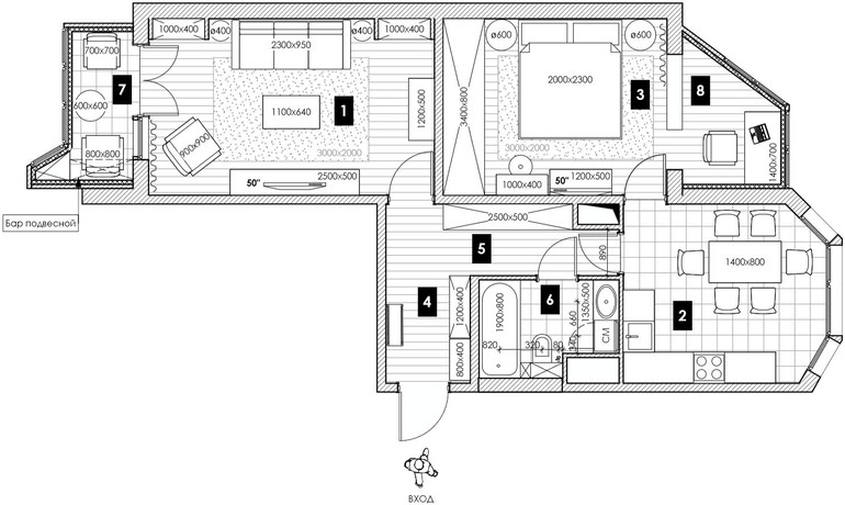
На плане двухкомнатной квартиры можно подробнее изучить перепланировку. Как раз там, где стоит шкаф в коридоре под цифрой 5, раньше был вход в спальню. А теперь он ведёт из кухни: поели - можно и поспать! ;)
Напомню, площадь квартиры 69 кв. м, высота потолков 2,6 м.