Прошу помощи в расстановки мебели в прихожей
Интерьерное решение жилых помещений.Помогите расставить мебель в прихожей. Хочется большое зеркало, пуфик или банкетку, обувницу, вешалку напольную или шкаф.Если посоветуете куда поставить. Вообщем что хочу-знаю, как расставить-не знаю.
Слева от двери вот такой закуток

Напротив входной двери санузел и ванная комната.

Справа от двери комната с лестницей ведущей на второй этаж

Datura
а я бы пожертвовала обувницей ради банкетки с тумбой под ней) чтоб и посидеть можно было, и спрятать что-нибудь.
04.02.2019
Ответить
Алена
Дверь заказывала в местном небольшом магазинчике, бренд не помню, знаю только что производитель Йошкар-Ола, заказывали прошлой весной около 30 тыс. вышла, без установки.
03.02.2019
Ответить
Дарья
все просто, на 1,5 м стену делаете шкаф купе, где можно повесить вещи как на плечики так и крючетки если вам это необходима, вообщем любой каприз для вещей внутрию затем на метровой стороне остается 50 см. туда вешаете обувницу, которая открывается как дверь, зеркальная или нет на ваш вкус.
а на стене которая 1,4 м возле ступеней ставити банкетку, т до 70-80 см в длину, чтоб дверь спокойно открывалась. если шкаф с обувницей без зеркала, то над банкеткой или за ней вешается большое зеркало, хоть от пола до потолка, но опять же до 80 см чтоб дверь не доставала при открытии, как то так.
а на стене которая 1,4 м возле ступеней ставити банкетку, т до 70-80 см в длину, чтоб дверь спокойно открывалась. если шкаф с обувницей без зеркала, то над банкеткой или за ней вешается большое зеркало, хоть от пола до потолка, но опять же до 80 см чтоб дверь не доставала при открытии, как то так.
03.02.2019
Ответить
Дарья
обувница достаточно тонкая, мешать шкафу не будет, ее почти не видно и она висит на стене, когда ее открываете то за ней остается ваша стена а вся обувь в этой дверке стоит. у меня такая, очень функциональна
03.02.2019
Ответить
Алена
Почти ) только справа ( вернее слева, у Вас план зеркальный получился)) сразу же идет проем в комнату и напротив входной двери еще одна дверь в санузел.
02.02.2019
Ответить
selena1002
Неважно, что зеркальный). И дверь в су тоже есть.) Главное, теперь видно, что войдет шкаф и обувница с зеркалом. А пуфик, нет.
02.02.2019
Ответить
Алена
У Вас там где стоит обувница у меня находится дверь в туалет ) Там две двери рядом получаются.
03.02.2019
Ответить
selena1002
Алена, добрый день!
Ну, хорошо хоть сейчас сказали)). Т.е. у Вас на таком пятачке 4 двери и один проем? И Вы хотели все то еще здесь поставить?))
03.02.2019
Ответить
Алена
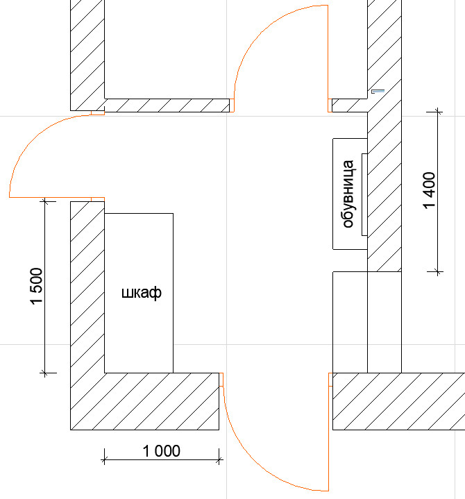
У меня в прихожей три двери- входная, туалет, ванная и два проема. Один как заходишь в прихожую сразу слева, а второй где заканчивается стена 150см. Я уже думала, что шкаф поставлю в комнате где лестница, а вот зеркало и обувницу куда -бы поставить чтобы было и удобно и красиво не могу сообразить.
03.02.2019
Ответить
selena1002
Алена, надеюсь, теперь все правильно)). Что ж Вы меня путали с зеркальностью, первый план был правильным, в нем просто не хватало одной двери в туалет, т.к. на фото не было видно сколько их.
Но пуфик, увы, поставить некуда, если только в ванную). И, если нужно зеркало в рост, то можно повесить его справа от обувницы.
Но пуфик, увы, поставить некуда, если только в ванную). И, если нужно зеркало в рост, то можно повесить его справа от обувницы.
03.02.2019
Ответить

Вот вид прям от входной двери