Современная трёшка для пятерых
Авторские проекты дизайнеров.(Посты не по теме будут удаляться!)Скажите честно, каким вы себе представляете дизайн современной трёхкомнатной квартиры для многодетной семейной пары с тремя девочками? Ставлю сто фишек на чёрное, что не таким, как на этих картинках! :) Тёмные стены, дерево и камень, неожиданно "мужская" кухня и далёкая от сладких розовых традиций детская - это реальный интерьер, в котором живут реальные люди. И им тут комфортно!)

Тёмная стена, жёлтый диван - кому-то покажется, что логичнее было бы сделать всё наоборот. Как заказчики решились на такое? Всё просто: им это понравилось! :) На этапе согласования мы предлагали разные варианты цветового оформления, в том числе и с белой стеной. С жёлтым диваном получилась забавная история. Супруги сфотографировали его во время субботней экскурсии в мебельный салон: очень уж он им понравился, сразу захотелось "примерить" модель в интерьере. Так и остался! Цветовые акценты изменены ради этого конкретного дивана - бледно-жёлтый цвет достаточно легко прижился практически в каждом помещении.

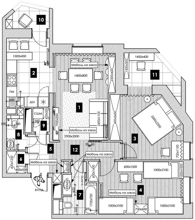
Если в обеденный стол стоит в гостиной, может показаться логичным объединить помещение с кухней: мы часто так делаем, если нас об этом просят заказчики. Если бы мы оформляли дизайн-проект трехкомнатной квартиры для другой семьи, техническое задание наверняка было бы другим. В данном случае изолированная кухня была принципиальна, а без обеденного стола в гостиной устраивать семейные ужины было бы просто негде. :)
Совет: Зрительно увеличить высоту потолка помогут вертикальные линии: фасады, большие прямоугольные принты на стене, рейки. В этом проекте эффекту содействуют более высокие дверные проёмы - 220 см, что немногим больше стандартной двери.

Вам тоже кажется, что интерьер кухни выглядит "мужским"? Можно было бы предположить, что мужчина в семье очень любит готовить, но мы не знаем этого наверняка. По факту мы сделали кухню, ориентируясь на вкусовые предпочтения и референсы заказчиков - и, что примечательно, 3D-проект они согласовали с первого раза без единого замечания.

Впихнуть сюда стол так, чтобы за ним с удобством уместились все члены семьи, не получалось. В приоритете стояли места для хранения и посудомойка - это пожелание мы выполнили. Барная стойка тоже была давней мечтой владельцев квартиры, так что они только обрадовались, когда их кухня обогатилась на такой уютный уголок. :)

Скошенная стена в изголовье кровати - это оригинальная постройка дома. Трёхкомнатная квартира, к слову, не балует владельцев грандиозными размерами: спальня, например, получилась площадью 15 кв. м. По просьбе супругов мы ещё добавили сюда рабочий уголок, а ниже на плане можно посмотреть, как разместился шкаф в комнате и на балконе-лоджии.

Непростая задача - разместить на 16 кв. м детской столько всего: систему хранения игрушек, уголок для школьных принадлежностей, гардероб, рабочий стол на двоих. Но самое главное - продумать три полноценных спальных места! Заказчики были настроены против двухуровневых и двухэтажных кроватей, так что нам пришлось искать альтернативные варианты размещения. Конечно, детям было бы комфортнее, будь у каждой своя комната. Но что ж поделать, придётся втроем располагаться в одной детской - главное, жить дружно)
Совет: Обычно ящики под кроватями используют для хранения постельных принадлежностей, но в нашем случае будет место для игрушек - что немаловажно, своё для каждой из сестёр.

В маленькой ванной по утрам настоящее столпотворение - наверное, так во всех больших семьях. :) Поэтому в квартире предусмотрен ещё один мини-санузел - там вместился унитаз и небольшая раковина. Кстати, здесь внимания заслуживает оформление: мало кто из заказчиков решается на смелые цвета, большинство всё же предпочитает более сдержанные ванные.

Общая площадь квартиры 86 кв. м, основная идея перепланировки принадлежит главе семейства: заказчики пришли с готовой идеей, как разместить межкомнатные перегородки в квартире. В процессе работы мы слегка её "причесали": подвинули стены, чтобы встроить шкафы, и незначительно увеличили ванную за счёт коридора.
Индивидуальный, как это и должно быть, спроектирован с учетом пожеланий, и совершенно не обязан нравиться всем!:)
Всем добра!:)