Проблемы планировки гостиной 19м
Интерьерное решение гостинойВсем добрый день!
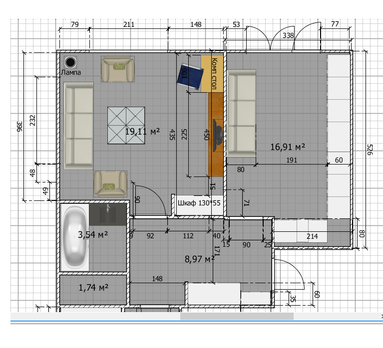
Дорогие девочки, стою перед планировкой гостиной, которая по совместительству будет нашей с мужем спальней. Планировка вроде простая, квадратная комната 19м, ставь где нравится, но столкнулась с кучей вопросов. Прошу Вас дать совет, как расположить мебель. Я накидала несколько вариантов, но во всех есть какие-то недостатки, может у Вас будут свежие идеи, я с удовольствием послушаю.
Стиль комнаты предполагается приблизительно такой:
Не знаю что конечно получится в итоге, но пока так. Сейчас нужно хотя бы определиться с расстановкой мебели, чтобы начать делать проводку. Ну так вот:
Разместить нужно большой диван, кресло, журнальный столик, напольную лампу, встроенный шкаф для одежды, компьютерный стол и мебель для ТВ.
А проблемы такие: комната с большим дверным проемом в 1200мм, рассчитанным видимо на двойную дверь, вопрос в том стоит ли его закладывать и делать обычную дверь на 900мм? Если закладывать, то в какую сторону его сдвигать? Или для такой большой комнаты лучше оставить двойную дверь? Я конечно склоняюсь к обычной двери в 900мм, расположенной приблизительно по середине комнаты. Вопрос конечно в какую сторону ее открывать, налево или направо? Или может вообще сделать раздвижную дверь?
Вторая проблема такая: Все время пока дом строился, была уверена в том, что встроенный шкаф и диван будут располагаться слева от входа. Вопрос вот в чем: стена ванной комнаты выступает в сторону гостиной на 470мм+шкаф500-600мм и того на метр сокращается длинна стены слева по отношению к правой, не будет ли это в реальности смотреться ну не гармонично что ли? И получается какой-то непонятный закуток справа от входа.

Может поменять все местами? Слева зона ТВ и комп.стол, а справа диван и встроенный шкаф? Так геометрия комнаты кажется более симметричной? Или я слишком загоняюсь на эту тему?

Или диван все-таки слева, а шкаф встроить справа от двери?

Какой бы вариант вы выбрали? или какие бы внесли изменения? Буду рада услышать любые советы. Заранее спасибо.