Скандинавский стиль с... амбарной дверью!
Авторские проекты дизайнеров.(Посты не по теме будут удаляться!)Заказчиками выступала молодая семейная пара с симпатичной собакой. В своей еврооднушке площадью 40,5 кв. м ребята просили предусмотреть спальню, кухню-гостиную с полноценной рабочей зоной и обеденным столом, кладовую и гардеробную. Благодаря так называемой свободной планировке мы могли ставить стены как угодно - посмотрите, какой интересной и уютной в итоге получилась квартира в скандинавском стиле.

Интересная идея с оформлением стены! Это одна из изюминок проекта. При заполнении технического задания семейная пара акцентировала внимание на некоторых важных моментах. Например, обязательно следовало предусмотреть свободную стену для размещения сувенирных металлических табличек, которые заказчики привозят из путешествий и вписать в интерьер амбарную дверь (об этом - ниже). Кроме того, кухню требовалось сделать максимально удобной для приготовления пищи - с необходимой техникой и просторной рабочей зоной.
Совет: обратите внимание на идею с деревянными потолочными балками: делить пространство на тематические зоны можно не только по линии пола - коврами или напольным покрытием, но также и по потолку.

Для экономии места в кухне духовку и холодильник вынесли в коридор. Предвижу комментарии: «Не будет ли тянуть запахи в спальню?» Замечание верное: такое расположение колонны с бытовой техникой вряд ли понравится тем, кто чувствителен к запахам готовящейся пищи. Для заказчиков кухонные ароматы не казались проблемой, гораздо больше тревожила нехватка места в рабочей зоне и гостиной. Поэтому для конкретной семьи такое решение стало находкой!
Совет: гладкую стену в интерьере можно декорировать объёмными природными элементами - например, ракушками, которые вы привезли из отпуска. Правда, за таким украшением придётся дополнительно ухаживать - в частности, следить за их чистотой и вычищать пыль из углублений антистатической кисточкой-дастером.
В комнатах нет потолочного освещения, мы использовали по большей части локальные и подвесные светильники, чтобы сделать помещения более уютными. Такой приём особенно хорош, если в доме большие окна и много естественного света.

Как вам идея сделать асимметричную цветную вставку на белой стене? Эти яркие деревянные панели классно вписываются в скандинавский стиль и, что важно, поддерживают решение с амбарной дверью. Как вы помните, её обязательно следовало разместить в квартире - это была мечта заказчицы! :)

Да-да, одна дверь на два проёма. Опять предвкушаю, как кто-то скажет: о, ужас, будет зиять "дыра" - открыт или вход в спальню, или вход в гардеробную! :)
Всё верно, только конкретно эта семейная пара не видит такой проблемы. Хотя лично меня тоже напрягал бы открытый проём, особенно в "шкаф", где не всегда может быть порядок. Поэтому от себя лично советую изнутри завесить гардеробную плотной занавеской в тон стены.

Ещё кое-что интересное: в анкете с пожеланиями заказчики указали, что хотят сделать прихожую по корейскому типу - с опущенным уровнем пола на входе. Идея в том, чтобы оставлять там уличную обувь и не разносить песок и грязь по квартире дальше. Здесь же предусмотрена розетка для сушилки.
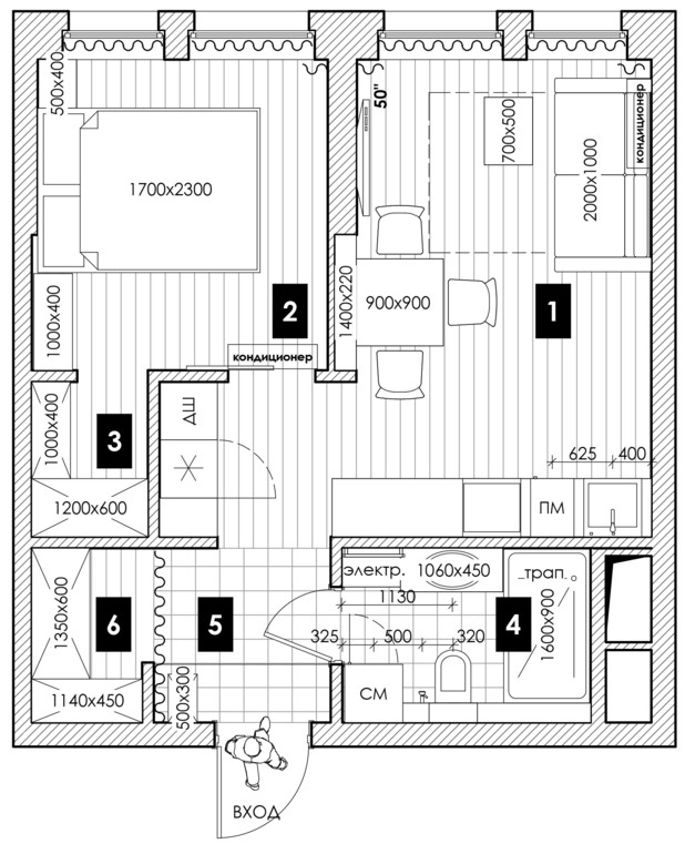
Ну и немного цифр напоследок: площадь кухни-гостиной (1) - 18,5 кв. м, спальни (2) - 9,7 кв. м, гардеробной (3) - 2 кв. м, ванной (4) - 4,62 кв. м, прихожей (5) - 3,47 кв. м и кладовки (6) - 2,2 кв. м.