Кухня для квартиры с ремонтом от застройщика
Авторские проекты дизайнеров.(Посты не по теме будут удаляться!)Всем доброго дня.
Давно ничего тут не показывала, но работа идет и пора делиться.

Этим постом начинаю серию рассказов о проекте в доме Грин Парк с ремонтом от застройщика ПИК. В целом, довольно достойный ремонт, неплохая плитка, двери, ламинат, но не все продумано, много задач, которые нужно было решать декораторскими методами.
Сегодня рассмотрим некоторые вопросы, связанные с кухней-гостиной.
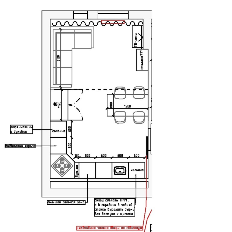
Что мы имели:
- отвратительные уродские лючки. Не понятно, как вообще застройщик предполагал в доме бизнес-класса это оставить, да даже не важно какой это класс, в 21 веке в "парадной" комнате этому не место
- неудобное расположение розеток
- отсутствие вывода под посудомойку
- неудобно открывающаяся дверь внутрь комнаты

⠀
Что я предложила и смогла реализовать.
- тк было необходимо разместить много техники, стало очевидно, что в линейную кухню не удастся поместиться и нужно делать угловую;
- изначально заказчики думали поставить с левой стороны, где лючки, холодильник и убить 2х зайцев - и лючки прикрыть, и оставить возможность доступа к лючкам, но мне этот вариант был не близок;
- я предложила свою любимую угловую планировку на текущий момент, когда плита помещается в углу (такую планировку я уже реализовывала в проекте в Красногорске). На мой взгляд, при такой планировке появляется большее количество рабочей зоны. Ну, и вообще это чертовски красиво ))

- лючки же я предложила прикрыть пеналом. В нем сделаны съемные полки для доступа, которые очевидно отодвинуть проще, чем двойной холодильник;

- также заказчики сделали выдвигающиеся розетки, интересное решение, для тех, кто любит технологии;


- в зоне приема пищи поставили большой стол со стульями, гостям тут рады, покажу отдельно, там красиво :).
Это зона с правой стороны. Там большой холодильник, техника.

Производитель кухни - стильные кухни. Вот их эскиз.

А это коллаж, на котором я предлагала идею.

⠀
Единственная идея, которая не была принята и реализована - это замена двери на сдвижную. Я по-прежнему считаю, что это было бы эргономично и удобно. Но заказчики волновались, что сдвижная дверь займет слишком много места, да и вообще не хотели на тот момент с этим связываться. Из последнего общения, как я поняла, есть планы со временем просто поменять открытие двери, то есть чтобы она открывалась не внутрь комнаты, а наружу, в коридор. Там на самом деле тесновато, но в любом случае, будет лучше, чем сейчас.
⠀
Плитка на полу и ламинат остались от застройщика. Их не меняли.
Планировку, в частности расположение плиты, можно встретить редко. Но заказчики очень довольны. И я считаю, что самый оптимальный вариант. Сейчас делаем по такому же принципу проект в ЖК Маяковский, так бедные заказчики в шоке - в салонах кухонь, куда они приходят за расчетом, делают страшные глаза и говорят, что они так не умеют и это слишком нестандартно )))
А вы что скажете? да? нет?
также напоминаю, что этот и другие мои проекты можно увидеть в инстаграмм
, делали в углу варочную с духовым шкафом)
Кухня красивая и удобная!
Белая кухня-моя любовь!)