Нежненько и бежевенько :)
Авторские проекты дизайнеров.(Посты не по теме будут удаляться!)О работе с этим проектом остались очень необычные - в добром смысле - воспоминания. Заказчицей стала эмоциональная молодая девушка с тонким вкусом, для которой ощущения от интерьера были важны в первую очередь. Она хотела, чтобы в новом доме ей было тепло, уютно и "воздушно". Оставалось лишь найти подходящие современные решения для создания квартирки её мечты, и в конечном итоге нам это удалось! :)


Оттенки беж - прекрасная база, как и серые или белые цвета. Но, в отличие от них, бежевый, как ни один другой, создаёт атмосферу тепла и уюта. Заказчица обращала особое внимание на гамму, в частности на очень близкие и нюансные сочетания текстур и цветов. А чтобы интерьер не был скучным и монотонным, мы добавили в него акценты с бирюзой и несколько чёрных контрастных линий - так сразу появилась глубина, пространство перестало быть "плоским".

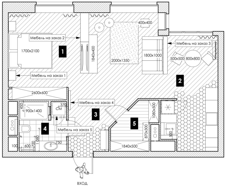
Если мы используем бежевый цвет в интерьере, пол можно делать и более контрастным. Но тогда не будет эффекта такой воздушности, который достигается именно благодаря светлому, как стены и мебель, ламинату. Кроме того, здесь играет роль непривычное расположение досок - укладка под 45 градусов используется не так часто, как прямая, перпендикулярная окнам. В данном случае приём оправдан тем, что помогает ориентироваться в открытом пространстве квартиры, определяет основное направление от коридора к гостиной.

Говоря про открытое пространство квартиры, я имею в виду именно то, что заказчица решилась на приём, который многие не смогут понять: отказалась от стен между спальней и кухней-гостиной. Получилось единое пространство, разделенное мебельной перегородкой - так и воздуха больше, и света.

Слышу вопросы: "Неужели кухню нельзя было сделать больше?")) Можно, но для заказчицы, которая живёт одна, такой было достаточно. Если вы любите оригинальную плитку, присмотритесь к той, что в форме сотов-шестигранников. Особенно стильно смотрится неровный, как бы оборванный край - причём как на полу, так и на стенах.

Мало того, что в спальне нет двери, так ещё и стеллаж сквозной, без стенки! Очевидно, у многих такое решение вызывает вопросы. Каждый мерит по себе: семья, дети, ароматы кухни - где личное пространство? Как спрятаться от шума-гама? Но для человека, который живёт один, или даже для спокойной семейной пары в гармоничных отношениях, такая планировка вовсе не обязательно сопряжена с дискомфортом. Особенно если учесть, что наша студия никогда не навязывает заказчикам какие-то решения.

Санузел c картиной, каково, а! Для помещений с повышенной влажностью можно использовать принты на стекле - смотрится очень стильно. Зеркало над раковиной тоже не обязательно должно быть частью навесного шкафчика)) Всю косметику и баночки косметики лучше прятать в выдвижных ящиках, а бытовую химию - в шкафу над стиралкой.

Чтобы дизайн смотрелся целостно, необходимо минимизировать разнообразие оттенков мебели. Если с белым цветом проще, то бежевый цвет в интерьере чуть усложняет задачу - следует заранее подготовиться к позициям на заказ. Благо, сейчас не станет проблемой заказать в одном месте и кухню, и декоративную перегородку-стеллаж, и шкаф, чтобы оттенок дерева был везде одинаковым. Однако и к этому вопросу стоит подходить без фанатизма: всё-таки дерево - живой материал, так что небольшие градации в тоне и текстуре будут только оживлять помещение.
Изначально квартира была без стен, поэтому мы могли ставить перегородки в жилой зоне, как хотелось. По просьбе заказчицы предусмотрели гардеробную у входа (под номером 5 на плане). Общая площадь квартиры - 60 кв. м.