маленькая гостиная в стиле прованс
Авторские проекты дизайнеров.(Посты не по теме будут удаляться!)Позвольте представить Вам проект гостиной. Гостиная, о которой идет речь, находится в трехэтажном подмосковном доме на Пятницком шоссе. Площадь каждого этажа 76,6 квадратных метра. Планировка свободная, бюджет, как это чаще всего и случается, сильно ограничен. Владельцы - молодая пара без детей.
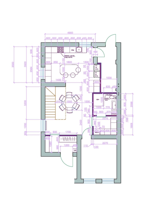
Мне была поставлена задача выполнить проект в целом для первого этажа, а в рамках этого проекта выполнялась и гостиная, т.к. ремонтные работы будут выполняться поэтапно, начиная с первого этажа. На рисунке ниже планировочное решение для первого этажа в целом (гостиную отразим отдельно):

Итак, рассмотрим планировочное решение для гостиной, площадь 13,5 квадратных метра. Пожелания заказчиков были следующие:
«комната, в которой будет собираться семья, также гости (отдых, прием гостей, чтение, просмотр телевизора, уголок для чашечки кофе и приятных бесед). Желательно предусмотреть запасное спальное место для гостей. В идеале вместить буфет и столовую зону»
Было разработано 4 варианта расстановки мебели:

В результате от идеи столовой зоны и с буфетом отказались в пользу полноценной зоны отдыха с большим раскладывающимся диваном и приличных размеров кофейным столиком. Также было предусмотрено удобное кресло, о котором так мечтала хозяйка, с небольшим столиком у окна, за которым так приятно выпить чашечку кофе и уединиться с книжкой.
Выбранный вариант планировки:

Заказчики выбрали стиль прованс с довольно необычной цветовой гаммой. Дизайн-борд:

Для окна были выбраны легкие шторы и также плотные рулонные шторы, т.к. окна на первом этаже выходят на главную улицу поселка, а одна из функций комнаты - спальня для гостей, к тому же гостиная - единственная на этаже комната, расположенная на южной стороне. Мебель, декор и отделочные материалы, все подбиралась одновременно с выполнением работы над проектом и исходя из жестко определенного заказчиком бюджета. Единственное, что имелось на данный момент - это телевизор. Развертки стен:

Из-за небольших размеров комнаты, каждый предмет выполняет свою практическую функцию. В результате, как мне кажется, получилась уютная зона для семейного времяпрепровождения и встречи гостей. Забегая вперед, отмечу, что весь первый этаж, кроме санузла, выполнен в том же стиле и цветовой гамме.
Визуализация:


Готова за бесплатно помочь Вам с дизайн-проектом комнаты или небольшого жилого помещения. Очень нужно наработать портфолио и отзывы, т.к. до этого выполняла проекты не для себя, а сейчас начинаю работать самостоятельно. Кроме дизайна интерьера работала организатором пространства. Отправлю Вам небольшую презентацию с перечнем основных моих услуг. Пишите, пожалуйста, с радостью помогу всем, чем смогу!
Ссылка на объявление: https://bazar.babyblog.ru/item/987127