Современная классика. Интерьер как в дорогом отеле
Авторские проекты дизайнеров.(Посты не по теме будут удаляться!)Как думаете, в какой очерёдности создаётся проект квартиры? Логично предположить, что всё начинается с плана, но только не в этот раз! Мы с заказчиками так долго разрабатывали планировку квартиры, что даже начали желать визуализацию до того, как определились с финальным вариантом расположения стен и мебели. В конечном варианте, к слову, ни на минуту не пожалели, что потратили столько времени, потому что пришли к варианту, который до мелочи устроил всех.


Интерьер оформили в стиле современная классика. В начале проекта заказчики, видимо, ещё сами не до конца понимали, какой хотят сделать квартиру, потому что в качестве ориентира показывали картинки то с современным дизайном, то с классическим. В итоге мы остановились где-то посерединке. :)
Обратили внимание на два одинаковых дивана в центре комнаты? Заказчикам, которые ценят живое общение, такое решение пришлось по душе. Когда приходят гости, можно уютно разместиться с компанией на диванах. Обычным вечером можно смотреть телевизор лёжа, не кидая жребий, кому сегодня принадлежит диван. :) И вообще, почему бы не использовать пространство, если хочется? В другой квартире можно было бы выбрать яркие цвета обивки или разные модели мебели, но в данном случае симметрию, простоту линий и цветов диктовала современная классика в интерьере гостиной.
Совет: Если вам захочется воспроизвести подобный стиль дома, запомните основные черты современной классики: нейтральные цвета, симметрия, лепной декор, большие люстры и современная мебель.


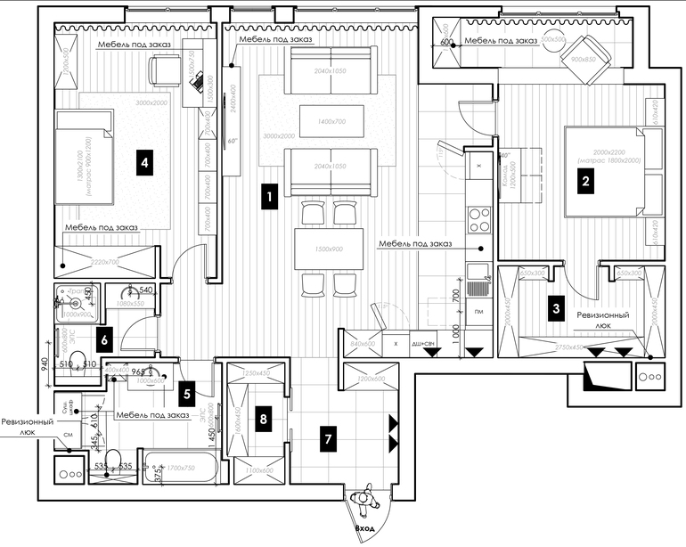
Прежде всего, заказчикам хотелось ощущения простора. В конечном варианте планировки центральную часть квартиры отдали под гостиную и кухню, благодаря чему избавились от коридоров и сохранили ощущение большого пространства, которое открывается сразу из прихожей. Для понимания масштабов жилища уточним, что площадь кухни-гостиной 43,5 кв. м :)

Спальня тоже выглядит немаленькой! Здесь 20 кв. м площади вместе с лоджией, но и светлые цвета визуально как бы раздвигают стены. Возле кровати видна дверь - она ведёт в гардеробную, которой выкроили 7 кв. м площади. В качестве ненавязчивого декора, который никогда не выйдет из моды, лучше выбрать молдинги - и особенно, если вы оформляете интерьер в стиле современная классика. Фото, к сожалению, не передаёт всей их прелести, живьём молдинги выглядят гораздо круче!


Подбирать двери в цвет стен нужно, если хочется "растворить" их в пространстве. В нашем случае мимикрируют не только двери - в светло-серый покрашены и молдинги, и плинтусы. Только широкие потолочные карнизы мы оставили белыми, чтобы они воспринимались как часть потолка - высокого, кстати, аж 3,5 м!


Насколько вы готовы учитывать интересы ребёнка, когда речь идёт об оформлении детской? По нашему опыту всё сильно зависит от родителей-заказчиков и возраста ребёнка, но всё же не советую на 100% ориентироваться на "хотелки" младшего члена семьи. И особенно когда стоит задача выдержать интерьер в одном стиле. :) У семейной пары, с которой мы работали в этот раз, сын дошкольного возраста. В плане ТЗ это значило, что нужно предусмотреть рабочее место, ящики и полки для хранения канцелярских принадлежностей, место для игр и место в шкафу, где можно было бы прятать игрушки и одежду.
Совет: Пробковые канцелярские доски уже не так актуальны, а вот пробковая стена возле стола и смотрится стильно, и функциональна. К тому же, она позволит ребёнку проявить индивидуальность: приколоть булавками любимые фотографии и картинки, рисунки, вырезки из журналов или распечатки мемчиков из интернета. :)


Всё же стилистика детской комнаты отличается от общего стиля в квартире. У нас не было цели сделать все комнаты одинаковыми, может быть и такой, с мебелью из ИКЕА :) Для нас было важным выдержать общее настроение, цветовую гамму, но в то же время оставить детскую детской. Очень советую не пренебрегать коврами в комнатах, потому что они добавляют уюта. Сюда, например, мы положили практичную и недорогую циновку - износостойкую и удобную в уборке.


Подобная шторка-стеночка в ванной считается хорошей альтернативой душевой кабине. Хотя в этой квартире два санузла - в том, что меньшего размера, как раз установлена душевая кабина. Конечно, такая шторка гораздо изящнее, чем подвесные с рисунком! Однако и уход за ней требуется особенный - если лениться протирать каждый раз капли воды, то известковый налёт не заставит себя ждать. Кстати, очень хорошо справляются с уборкой брызг специальные резиновые щётки с ручкой - так называемые сквиджи, сгоны для окон.

А вот та самая выстраданная планировка, которую мы делали-делали, переделывали-переделывали, и наконец согласовали. :) Общая площадь квартиры 114 кв. м, львиная доля отведена кухне-гостиной. Интересное пожелание заказчиков касалось входной двери: она не должна была просматриваться из гостиной. Мы разместили напротив входа шкаф в дополнение к гардеробной слева.