Зайдите, пожалуйста. Вышел спор с мужем)
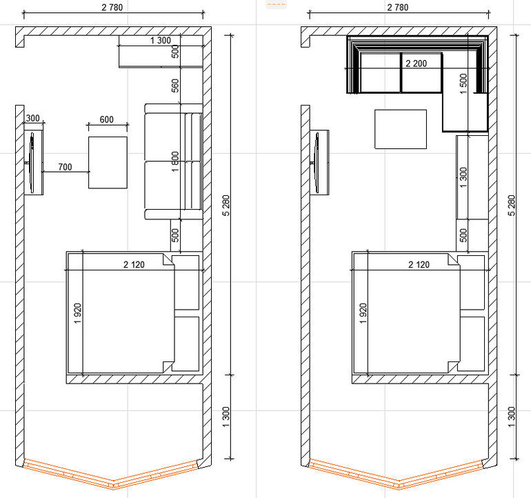
Вопросы и ответыПланировка квартиры с гипотетической мебелью. Мой вариант на фото. Муж предлагает диван и шкаф поменять местами и диван угловой. Но я не хочу шкаф в центре комнаты с основным спальным местом. Да и еще мы собираемся крепить телевизор на кронштейн (а у нас такого пока не было) и я сомневаюсь что так мы сможем смотреть его и с дивана и с кровати. И какой вообще угол поворота можно обеспечить кронштейном ( тв метр в диагонали). 
selena1002
Лена, добрый день! Угол поворота в большей мере зависит от кронштейна. Например, здесь угол 180 градусов. https://www.sebevdom.ru/products/126919-onkron-m4-chernyi/?utm_source=ya_market&utm_medium=click&utm_campaign=s420-c054-msk&utm_c>Только дело не в этом. Угловой диван ставить таким образом не стоит, т.к. он получается небольших размеров.
22.07.2019
Ответить
Вероника
А если мебель гипотетическая, то может вообще иначе рассмотреть все?))) и кровать трнасформер, например?
20.07.2019
Ответить
Вероника
У вас комната длинная, как вагон, такие помещения лучше смотрятся, если все-таки сгладить эту вытянутость.
Я бы рассмотрела вариант размещения кровати ближе к двери. Если смущает близость к двери, можно небольшую шторку возле изголовья чётко напротив двери..
А шкаф (дверцами в сторону кровати) довести до потолка, встроить его, чтобы воспринималось как часть комнаты. С обратной стороны обоями оклеить)))
И в светлой части комнаты будет гостиная.
Телевизор логичнее напротив дивана, сейчас кронштейны поворотные можно широкий угол разворота задать.
20.07.2019
Ответить
venz
Я не очень поняла, где стол с полками, это балкон? При вашей ширине комнаты кровать перекроет половину входа на балкон.
19.07.2019
Ответить
venz
Думайте. У нас 280 ширина, проход всего 65см. На балкон через кровать перелезать будете и ногами биться.
19.07.2019
Ответить
odri86_(меня зовут Тийна)
а если развернуть изголовьем или изножьем к окну? единственное, тумбочку не поставить тогда. Но выбирать тогда, чем жертвовать,тумбочкой или проходом.
19.07.2019
Ответить
odri86_(меня зовут Тийна)
Так предполагается, что это- спальня-гостиная, где могут проводить время другие члены семьи или посторонние или чисто ваша с мужем комната? если первое, то я за то, чтобы кровать обособить как-то, но шкаф в этом месте сильно радикально поделит помещение, а площадь гостиной зоны совсем не большая. Может какую-то декоративную ширму/перегородку, а планировку при этому вашу. А если это комната только ваша, то точно нечего делить шкафом.
19.07.2019
Ответить
odri86_(меня зовут Тийна)
просто, если шкаф поставите, как хочет муж, то он как раз и поделит, особенно, если высокий, и пол кровати видно при этом. В вашем же варианте, никакой приватности спального места, это, конечно, индивидуально, но многие предпочитают, чтобы кровать была не на виду. Я бы оставила планировку вашу, наверное, но кровать, все-таки обособила, чем-то минимально громоздким, не стеллажом, а японскими шторами-панелями, или нитяной шторой или матовой перегородкой.
19.07.2019
Ответить
Natusya
Я бы комод с ТВ поставила на место шкафа, перед ним стол, за столом диван (лицом к тв естественно), а за диваном кровать...паровозиком. А шкаф в тот угол где книжный шкаф, через перегородку. Кровать и диван можно текстилем "отгородить", если муж хочет уединения. Хотя стол мне кажется лишний, и так слишком много предметов мебели. Может что то поменьше размерами, раздвижную консоль...
19.07.2019
Ответить
Оставшиеся комментарии доступны после регистрации
Зарегистрируйтесь и получите полный доступ ко всем функциям сайта.
Угловой диван тоже красиво и уютно)