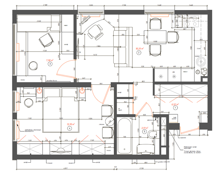
Однушка 50 м. кв. для троих (ЖК "Испанские Кварталы")

5 окон это круто. Посоветовала бы сделать двери скрытого монтажа, а то гостиная вся в дверях.
18.09.2019
На первых визуализациях предлагала. И под покраску предлагала. Но заказчики хотели только белые двери, а от скрытых отказались из-за цены и сложности монтажа
19.09.2019
очень интересно расположение мебели в детской - за кроватью 2 шкафа? мелко очень написано, не разглядеть..
18.09.2019
В детской кроватка-домик. Она очень низкая При входе шкаф для одежды, а рядом планируется ниша с частично открытыми и частично закрытыми полками. Внизу ниши будут закрытые коробки стоять
18.09.2019
Я от себя на скорую руку набросала эскиз по детской. Хотели желтый цвет добавить и рисунок на стене. Вот так планировалось, на выбор
18.09.2019
Клево получилось. Очень приятное сочетание цветов и грамотная планировка.
18.09.2019
Спасибо Вам!
18.09.2019
Здорово вышло, Вы таки ухитрились выкроить семь шапок из овцы, если не больших, то по крайней мере нормальных ))) Правда, и по площади, и по количеству окон там исходно никак не однушка :) Фартук тут, по-моему, красиво будет смотреться не серый, а пэтчворк или не слишком яркий цветной, иначе выйдет совсем глухая серость. Но выбирать должны заказчики, а не комментаторы.
18.09.2019
Очень меня увлекают такие задачи с "шапками"))) Чем сложнее планировка, тем лучше думается. Насчет фартука согласна, спасибо!
18.09.2019
У меня примерно такая же кухня и я счастлива, что не послушалась родных и не сделала пэтчворк. И цвета у меня примерно такие же, как в этом проекте. Белый, серый и мятный. Все очень органично смотрится, пэтчворк простит такие кухни
21.09.2019
Согласна! Глазу нужен отдых)
22.09.2019
Ну как бэ 50 квадратов - стандартная хрущевская трешка
18.09.2019
Да, однушкой обозвали условно)
18.09.2019
Здорово! Но тут изначально удачное помещение с большим количеством окон. Единственное, что я сделала бы спальню в 8-метровой комнате, а детскую - в 14-метровой.
18.09.2019
В нашем случае, заказчица в приоритете на свой личный комфорт) Вариант с маленькой спальней сразу отклонила
18.09.2019
Конечно необдуманно, на мой взгляд, если учесть что ипотека на всю жизнь. Через пятилетку может захотеться/ нечаянно получиться еще один ребёнок , и детская 8 кВ на двоих детей очень тесная. А вот спальню для супругов на 8 кВ можно сделать вполне уютную ☺️
23.09.2019
Если так вдруг случится, тогда комнаты поменяют местами и сделают косметический ремонт :)
23.09.2019
Так да, впрочем.
23.09.2019
вот это я понимаю: 5 окон на однокомнатную квартиру! Компактно, конечно, все, но отлично получилось!
18.09.2019
сейчас обратила внимание - а как тянули коммуникации к кухне?
18.09.2019
5 окон для однушки?! Не встречала такого)
17.09.2019
Осознанный и долгий выбор заказчиков. Тоже нравится изначальная планировка👍🏻
18.09.2019
Как Вам это удается?? Я бы не сообразила вот так все спланировать 👏Восхищение!
17.09.2019
минимализм - моя мечта))) Я за светло-серый фартук! А в санузле какую плитку положили?
17.09.2019
Название поищу, если актуально. Она на акцентной стене, а фоновая белая матовая 60*60
17.09.2019
Спасибо! пришлите пожалуйста название в личку
17.09.2019
Ничего себе санузел для однушки!)
18.09.2019
это другой проект, окна в текущем нет ;)
18.09.2019
Это картинка с сайта-производителя)))
18.09.2019
Какая классная плитка ? А можно название ?
18.09.2019
Пожалуйста https://luxury-plitka.ru/aparici_outre/7695.html
20.09.2019
Спасибо большое 🤗
02.10.2019
Пространство, в котором работа в кайф Дизайн интерьера теплой гостиной 20 м2