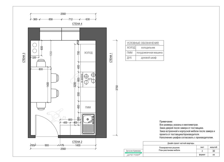
Дизайн проект светлой уютной кухни
Авторские проекты дизайнеров.(Посты не по теме будут удаляться!)Светлая кухня - мечта хозяйки! На данной площади максимально рабочего пространства.
Вместительные шкафы в сочетании с воздушными открытыми полками.
Текстура дерева- тепло, оттенки голубого и светло серого - небо и воздух.
Камень - прохлада и легкость.
P.S. в углу около окна тумба с мисками для собак.

приглашаю под кат:)



вариант с мозаикой на фартуке



ссылка на объявление https://bazar.babyblog.ru/item/980811
