Однушка плюс двушка равно четырёшка :)
Авторские проекты дизайнеров.(Посты не по теме будут удаляться!)Не проект, а мечта! Заказчики купили две квартиры на одной площадке и пришли к нам с просьбой сделать из них одну большую. В итоге вышла четырёхкомнатная площадью 134 кв. м - с двумя детскими, симпатичными санузлами, небольшой прачечной и прекрасно расставленными акцентами в спальне и кухне-гостиной. Для супругов было важно разделение площади на функциональные зоны - рабочие, игровые, для отдыха и уединения. Современная классика в интерьере показалась им беспроигрышным вариантом, а прохладная гамма - олицетворением уюта. Приглашаю прогуляться по квартире!

Насколько у вас вяжутся с уютом холодные цвета - голубой и серый? «Тепла» здесь добавляют бежевые стены и электрокамин, вид гостиной получается очень свежий. К тому же голубого здесь не так уж и много - кресла да подушки на диване. Но вообще, цветовое оформление - дело вкуса. Здесь уют складывается из мелочей, стиля, мягких округлых форм мебели и очаровательных завитушек.

Несмотря на размеры гостиной (26 кв. м) и кухни (21 кв. м) заказчикам захотелось объединить кухню с гостиной. Дело не в желании визуально расширить пространство, просто так уютнее. :) При этом мы всё равно предусмотрели раздвижные двери-перегородки, чтобы можно было уединиться в кухне - они воздушные и даже поддерживают стиль в интерьере.

Смотрите, в каком необычном месте стоит барная стойка! Привычнее было бы видеть её поперёк кухни, но здесь заказчикам очень нравится идея созерцания видов за окном. Поэтому барный столик и два стула стоят у подоконника - и не мешают передвижениям по кухне к холодильнику и духовке.

Здесь мы объединили спальню с балконом. Заказчик пошёл на это сознательно не только в спальне, но и в детских тоже. Стена между комнатами и балконом не несущая. Мы увеличили площадь всех комнат, а на бывшем балконе в спальне сделали просторную гардеробную. Так она скрыта от глаз - удобно. Небольшой шкаф возле кровати оставили для самого необходимого.

Хозяйке этой комнаты около 4 лет. Для заказчиков было важно сделать детям одинаковые комнаты, решили остановиться на общей стилистике проекта, поэтому здесь тоже дизайн интерьера - современная классика. Объединив детскую с балконом, получили пространство площадью 20 кв. м
Совет: Вместо картин в детской можно использовать крупные настенные фигуры-панно. Их можно заказать из пластика, толстого картона, дерева, пенопласта или сделать самостоятельно и покрасить в акцентный цвет.


Комнаты девочек одинаковые, за исключением небольших деталей. Правда, младшая на момент создания проекта даже ещё не родилась, так что она не очень скоро оценит свой уголок :) Если посмотреть на план, видно, что детские отражены зеркально и повторяют друг друга. Так молодые родители решили сделать, чтобы предотвратить конкуренцию между сёстрами.

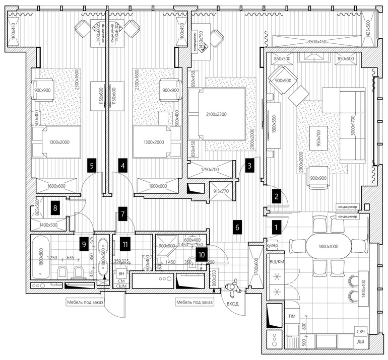
По планировке видно, где раньше находился вход в однокомнатную квартиру - сейчас там находится большой санузел (9) и прачечная (11). Сложность планировки заключалась в том, что комнаты вырисовывались не самой удачной формы - узкие, так называемые «пенальчики». Но благодаря светлым стенам и молдингам, которыми как раз славится современная классика в интерьере, жилые помещения получились светлыми и удобными.