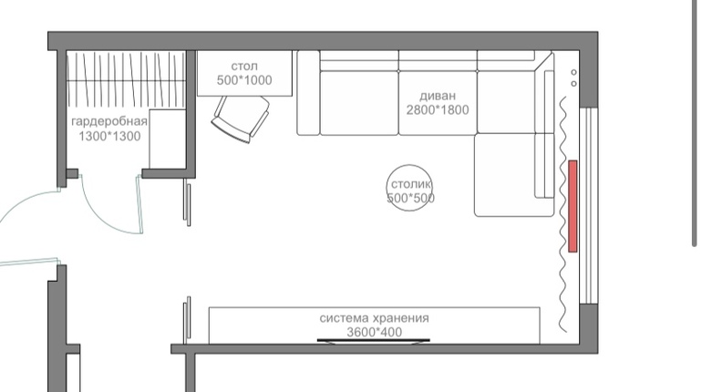
Планировка гостиной
Интерьерное решение гостинойКак думаете, диван слева или справа ставить? Мне больше вариант нравится слева, но придётся на противоположную стену переносить всю электронку, интернет. Думаю на сколько критично справа, т к заходишь и диван. Гостиную будем изолировать. 

В данной планировке не жили, в прошлом году поменяли электрику и до ремонта этой комнаты не дошли.
Elena
Еще вот такой вариант возможен:
Если у вас кто-то останется ночевать, то им будет комфортнее на диване. И красиво елку можно поставить у окна. И с дивана любоваться. И рабочий стол у окна.
Если у вас кто-то останется ночевать, то им будет комфортнее на диване. И красиво елку можно поставить у окна. И с дивана любоваться. И рабочий стол у окна.
09.12.2019
Ответить
Юлия S
Если диван ещё не куплен, то брать без подлокотника со стороны двери и нормально, или короткий подлокотник. Тогда визуально будет меньше преграда, наоборот все будут заходить и сразу на диван присаживаться)
09.12.2019
Ответить
Fabiana
Логичнее первый, т.к. линия до окна свободная, прямая. Это зрительно увеличивает пространство.
Но
Как я понимаю через тонкую стенку (вниз) еще комната? Что это за комната? У нас это детская, поэтому при всем удобстве тв на этой стене, перенесли на противоположную, чтобы телек не орал в стену детской. У нас еще и выпирающая часть дивана у двери (диван новый не осилили). Но в целом терпимо.
09.12.2019
Ответить
Cherry
Да, справа за стеной детская, поэтому летом на ту сторону и планировали тв. Но как звук будет идти, домашний кинотеатр ?!!
09.12.2019
Ответить
Fabiana
Как раз таки на ту стену вешать не надо, и мы не стали. На противоположной звук рассеивается, т.к. есть расстояние.
09.12.2019
Ответить
Fabiana
Вот так у нас, вход еще не с торца как у вас, а с этой стены у дивана. За диваном стена смежная с детской.

10.12.2019
Ответить
Cherry
Спасибо. какой фирмы у вас диван? Ещё вопрос с дверьми, раздвижной стеклянные непрактично, а обычные непонятно куда открываться будут ((
11.12.2019
Ответить
Fabiana
Я за распашные, судя по плану мешать не должны. Купе съедают место у стены 20-25 см. Потом проблемы с мебелью.
У нас лиарум икеевский, с продажи снят.
11.12.2019
Ответить