Расстановка в кухне
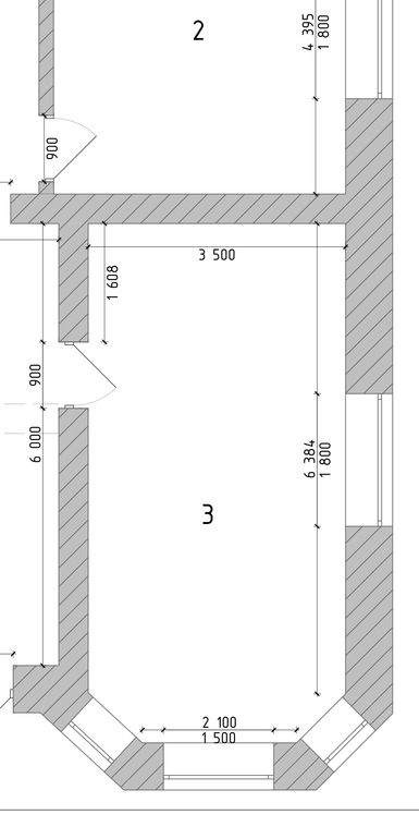
Вопросы и ответыЕсть кухня 24 кв.м. Не могу сообразить, как умнее расставить мебель и технику..... Вид из окна на небольшой дворик и забор. Как обыграть зону у окон?



Светлана
Очень красивая у Вас кухня ! Люблю когда много окон .
А гостиная есть ? Если есть , диван с ТВ не ставьте , слишком зажато будет , мало места для дивана .
Первый вариант лучше , входит больше кухонных шкафчиков и мебели
Можно сделать под "заказ" в столярной мастерской диванчик в эркер , помудрив с темой конвекции теплого воздуха от радиаторов .
Тогда напротив эркера вдоль глухой стены можно отлично высокие кухонные шкафы с техникой в ряд выстроить .
Или вариант с большим овальным столом и стульями-полукреслами в эркере , очень уютный реально в жизни )))
не знаю в каком стиле Вы все делаете .....
Можно сделать под "заказ" в столярной мастерской диванчик в эркер , помудрив с темой конвекции теплого воздуха от радиаторов .
Тогда напротив эркера вдоль глухой стены можно отлично высокие кухонные шкафы с техникой в ряд выстроить .
Или вариант с большим овальным столом и стульями-полукреслами в эркере , очень уютный реально в жизни )))
не знаю в каком стиле Вы все делаете .....
07.01.2020
Ответить
TanaBerko
ох, мне первое фото капец как нравится!!!
а вот варианты, где прям диван с кучей подушек установлен - не очень. прям вижу, как на подушки попадает жир, они засаленные, грязные.
я еще тут смотрела варианты https://mega-kuhni.ru/
17.01.2020
Ответить
Та еще стерва
я бы в эркере сделала обеденую зону. а зону готовки - слева от двери. имхо, лучше кушать при дневном свете, а столешница и так точечно подсвечивается!
04.01.2020
Ответить
beauty_lisha
Мне видится так:
Схематично, как умею нарисовала)) но смысл понятен.
Логичнее, чтобы стол оказался в зоне эркера, а кухня шла по глухой стене.
Что касается вытяжки - ставите вытяжку на угольном фильтре, и нет никакой привязанности к вентиляционному выходу 👍🏻
04.01.2020
Ответить
Светлана
отличный вариант !
большой стол и кухня тоже не маленькая , много техники уместится.
За этим столом будет очень приятно сидеть - уютно
07.01.2020
Ответить
Rinika
Ни один из ваших вариантов не нравится, причем очень сильно.
В эркер большой обеденный стол просится или диван/кресла, а кухонная мебель - в прямоугольный простенок без окон слева от двери.
04.01.2020
Ответить
Nana
Полуостров лучше функциональный с шкафом внутри вместо буфета, очень удобно и красиво. И будет больше места для стола побольше, кухня вместе с столовой, будет куда усадить гостей. Посудомойку обязательно рядом с мойкой и не рядом с плитой.
03.01.2020
Ответить
Ларёк
Смотря как Вам больше нравится время проводить: за столом за чашкой чая у окна или за мытьем посуды?..
Мне видится абсолютно иная планировка, где стол в торце у "эркера", барная стойка или полуостров примерно посередине, напротив большого окна, зона приготовления у глухой стены. Наверное, нет смысла тянуть кухню вдоль стены, превращая посещение в чулок...
Стол со стульями не может быть 800.
03.01.2020
Ответить
Анна
Посуда в основном в посудомойке, но отверстие вытяжки примерно там, где плита на планах. Вот кручу верчу...
03.01.2020
Ответить
selena1002
Анна, добрый вечер! Вы можете не привязываться к отверстию, до него можно пройти пластиковым коробами, если хотите вывести вытяжку в него. Или зашить все гипсокартоном.
08.01.2020
Ответить