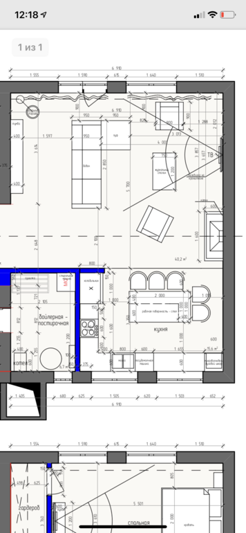
кухня-гостиная расстановка мебели 50кв
Вопросы и ответыДобрый день!
Помогите с расстановкой Мебели!
Хочется и зону столовой с кухней, Полноценную гостиную просторную.
Кухню хочу оборудовать островом где будет варка.
В середине между гостиной и кухней камин, разделяющий две зоны. Но что то не могу додумать как лучше сделать. На плане пример, но такой не нравится.
Варианты ещё были такие:
1. К острову, который будет 1.6 или 1.8м. стол к нему примкнуть. Диван сдвинут к стене где вход.
2. Вместо камина поставить полноценную обеденную группу. Диван так же сдвинуть к стене у входа.

Сергей Аристов
У нас тоже кухня довольно большая. Хорошие кухонные гарнитуры https://mebel169.ru/kukhni/ на такие кухню есть в Mebel 169. Мы там кухню и делали на заказ, всё отлично сделали и недорого.
22.02.2021
Ответить
Андрей Ремизов
Ирина, добрый вечер! Если Вам нужна будет помощь в изготовлении кухни обращайтесь, Сделаем кухню любой сложности по нормальной цене.https://kuhnirona.ru
09.01.2020
Ответить
Светлана
а зачем Вы разрываете камин и ТВ на две части ? так не очень красиво , будет "понатыкано" на стене
объединяйте , как на фото ниже ..
а стол муж просит ?
по "жизни" стол будет намного удобнее острова , потому что за остров много народу не посадишь , и на барных стульях бочком придется сидеть .
Если с такой посадкой смирится будет сложно - вместо острова ставьте стол размером с остров , а над ним красивую большую хрустальную люстру ))
а стол муж просит ?
по "жизни" стол будет намного удобнее острова , потому что за остров много народу не посадишь , и на барных стульях бочком придется сидеть .
Если с такой посадкой смирится будет сложно - вместо острова ставьте стол размером с остров , а над ним красивую большую хрустальную люстру ))
07.01.2020
Ответить
Ирина Иванова
Уже так и сделала, вместо камина полноценная обеденная группа. Только ещё никак не определюсь со стороны входа в гостинец с какой стороны ТВ и под ним камин а на какой диван.
08.01.2020
Ответить
ирина
У меня так - может натолкнёт ещё на варианты
Кухня с островом позади дивана
Остров 1,80 в длину, в нем из встройки только духовка
Кухня с островом позади дивана
Остров 1,80 в длину, в нем из встройки только духовка
06.01.2020
Ответить
Ирина Иванова
Спасибо! Буду думать.
А удобно носить еду в зону столовой? Недалёко от самой кухни? Я ещё думала стол перенести в зону гостиной но тогда для дивана остаётся мало места , хотелось больше простора
06.01.2020
Ответить