Дизайн-проект "Тонкий стиль"
Авторские проекты дизайнеров.(Посты не по теме будут удаляться!)Всем доброго дня!
Хочу представить вам один из последних наших проектов.
Небольшая двушка в новостройке на Западе Москвы.
Жить будет молодая пара, с мамой и, в будущем, с ребенком.
Лаконичность, эргономичность, цвета на острие моды (это не одежда, актуально будет еще лет 10 как минимум).
Нужно было обеспечить достаточно зон хранения вещей. Также сделать удобную гостиную, чтобы для мамы там было достаточно уютно ночевать, а днем эта была полноценная общая зона гостиной. Приоритет, чтобы ТВ было видно из кухни.
В спальне есть лоджия, которая сейчас используется чисто под хранение, а в будущем, там можно будет организовать мини-детскую.
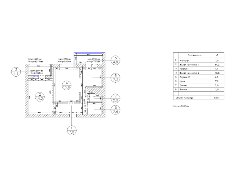
Обмерочный план 

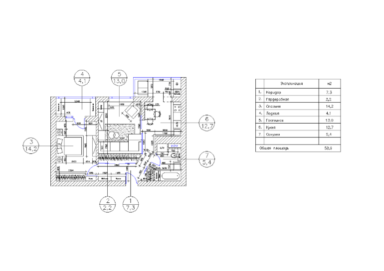
Планировочное решение

Коридор


Санузел

Кухня



Гостиная

Спальня

Наш сайт:
Инстаграм:
Пишите комментарии, а также личку и на вотсап. Всем отвечу!
8-905-767-13-32
Наши расценки:
до 30 м2 - 50 000 руб.
от 30 - 60 м2 - 2200 м2 руб.
от 60 - 90 м2- 2000 м2 руб.
от 90 - 120 м2- 1800 м2 руб.
от 120 - 150 м2- 1600 м2 руб.
от 150 - 180 м2- 1400 м2 руб.
от 180 м2 - индивидуально
AlenaK
М-даа... ДизайнЁры.. 👎 Рассчитано на тех, кто ни чего не понимает?)) Слушайте, ну уж раз рекламу свою тут выкладываете, ну хоть постарались бы!! Что за топорные визуализации?! Как в ИКЕЯ, на бегу слеплено..
Вот смотрите, нормальное качество визуализации! И скажите потом, что это визуализация, а не фото)))
Это наше будущее кафе в офисе))
Вот такие - "живые" картинки у меня визуализатор делает))!
P.s. Мы Вам не конкуренты, если что)) Мы огромный строительный концерн, жильё строим))
Это наше будущее кафе в офисе))
Вот такие - "живые" картинки у меня визуализатор делает))!
P.s. Мы Вам не конкуренты, если что)) Мы огромный строительный концерн, жильё строим))
07.03.2020
Ответить
С495
Я думаю и порядок цен совсем другой. И главное это всё мало влияет на результат.
07.03.2020
Ответить
Йож Теребонька Недалеких
Влияет,конечно. Нарисуют технически неграмотный проект,или такой формальный,как вон тигр с Индонезии,с ляпами и косяками,а потом заказчик удивляется,почему окончательный вариант не совсем такой,как нарисовано. Это если исполнители грамотные будут и за дизайнером подотрут. А то и вообще ничего не получится
07.03.2020
Ответить
С495
Причем тут визуализация и безграмотность. На крупных фирмах один человек делает проект, а другой занимается его визуализацией.
07.03.2020
Ответить
С495
Или не человек, а отдел, отдельно техническая часть, электрическая часть и т.д., но разговор шел о визуализации. Кто-то вообще за визуализацией обращается в стороннюю компанию.
07.03.2020
Ответить
Йож Теребонька Недалеких
При том. Очень часто она не соответствует тому,что возможно сделать на практике
07.03.2020
Ответить
С495
У нас получается: я про Фому, вы про Ерёму. Качество проекта, не зависит от качества визуализации, зато несёт дополнительные затраты.
07.03.2020
Ответить
Йож Теребонька Недалеких
Зависит. Это и есть «на бегу сделано»,о чем в том числе писал автор коммента
07.03.2020
Ответить
С495
Визуализация - это красивая картинка, красиво нарисовать можно и то, что реализовать нельзя.
07.03.2020
Ответить
Йож Теребонька Недалеких
Автор поста не визуализатор. И пытается продавать именно проект с визуализацией.
07.03.2020
Ответить
С495
Это дизайн проект, и данной визуализации вполне достаточно для понимания результата.
07.03.2020
Ответить
Йож Теребонька Недалеких
Да,понятно,что результат будет так себе,особенно опытному человеку
07.03.2020
Ответить
AlenaK
Вооот!))) Задача как раз в том, чтоб отрисовать ТАК, чтоб показать то что будет! А не то, что хочется и видится... Именно для этого и нужна визуализация (НОРМАЛЬНАЯ!). Чтоб клиенту было понятно, что будет/не будет/возможно/не возможно!
09.03.2020
Ответить
AlenaK
И шкрябали раньше на бересте и пергаменте... И что? Автор претендует на уровень Гауди?! 😃
18.03.2020
Ответить
С495
А мы автора здесь и не обсуждали. Вам как хочется, так вы и крутите. Больше сказать не чего.
19.03.2020
Ответить
С495
)))) С русским у меня беда, редактирование не работает. Специально для вас "нечего". Я очень рада, что на моей стороне выступил красноречивый оппонент и раскрыл тему полностью.
19.03.2020
Ответить
AlenaK
Ну! Уж на это - точно не обижайтесь! Я даже и не заметила! У меня старая школа - русский начитанный, а не зазубренный... Да и не обращают сейчас внимание в чатах на правописание(..
19.03.2020
Ответить
Йож Теребонька Недалеких
Я поняла,вы пытаетесь мне сказать,что есть дизайнеры,а есть визуализаторы,которые только картинку по чужим тех.требованиям бацают. Но пост вообще-то называется дизайн-проект,который включает в себя все,в норме. И качество исполнения как в любой работе,должно быть на первом месте
07.03.2020
Ответить
AlenaK
Более того! Есть дизайнер (креативщик), есть тот, кто делает рабочку (всё расчерчивает = рабочая документация. Это сам дизайн-проект). Есть тот, кто должен этот ДП утрясать со всеми смежниками (электрика, сантехника). И есть визуализатор - который всё отрисовывает для клиента. Только ни кому, кроме проектной мастерской, это знать не надо)) Они просто должны на выходе выдавать клиенту готовый и качественный продукт!...
09.03.2020
Ответить
Алена
Позвольте поинтересоваться, а согласовывается ли проект с практической точки зрения? Поясню. Здесь одна тетя предложила заказчику на выбор 3 проекта, два из которых существенно снижали ликвидность недвижимости. Доносятся ли заказчику такая информация?
09.03.2020
Ответить
Анна дизайнер интерьера
Конечно я ничего не утаиваю. Если в чем-то может быть сложность, так и говорю. Иногда (часто) человек намеренно идет на то, что согласовать нельзя. Если это не несет реальной опасности я делаю такой проект, если заказчик хочет нафиг снести несущую стену, я его отговариваю, если он не сдается, я его покидаю))
10.03.2020
Ответить
AlenaK
Бедааа с тётей... Это как раз её задача - уберечь Заказчика от всевозможных проблем. Ликвидности, эксплуатации, эргономики, "красивости"... Это, скорее всего - "картиночница"...
18.03.2020
Ответить
AlenaK
Вот мне интересно - какие?! Ну какие дополнительные затраты? Комп нормальный? Это не какая-то ахринеть какая супер-пупер станция, это обычный Комп для архитектора! Затраты на покупку нормальных 3d моделей на 3dd? По 150 р за штуку?! Или что? 150тыс в месяц за работу шикарного визуализатора/дизайнера/инженера?!...)) Ну так "товар - лицом"! Как же можно продавать фигню?! Как клиенту можно впаривать то, что "не видно"?! Мои и сплинкера встроят, и системы оповещения и кондеи и всё, что наложится на дизайн по факту! А тут даже ручек на шкафах нет! 🙈
Ну ё-моё... Ну стыдно так экономить! Деньги за м2 не снижают-же! Очень приличные по Москве расценки пишут!...
08.03.2020
Ответить
С495
Вы не поверите, но это достаточно большие затраты и комп, чтоб всё это тянул. И покупка программного обеспечения. Одна фигня 150 рублей, это выгодно когда много и больших проектов, для мелких проектов, где всё не повторяется - это не нужно и несёт затраты. Вы большая контора, не стоит сравнивать. Я думаю у вас и порядок цен другой.
09.03.2020
Ответить
AlenaK
Не думайте, не другой. Хорошие Визы сами себе постоянно базы пополняют, даже не работая в крупных концерна (или работая, но всё равно подрабатывая на"лево") То что слеплено для нашей кафешки в офисе ни как не финансировалось. Это отсебятина нашего отдела)) Просто за з/п свояли в свободное от проектов жилья (входные группы и типовые этажи) время. Я НЕ понимаю людей, у которых бизнес - продавать свои услуги по проектированию, но нет желания делать это качественно!... Зачем в это лезть, если рассуждать о ценах на приличный комп?! 🙄
18.03.2020
Ответить
AlenaK
И так, конечно, бывает. То, что я показала, делал человек с зарплатой в 150к. Он таких визуализашек делает для нашей, крупной компании по 30-40 в месяц. 3-5 объектов строительства. Только он ещё носится параллельно по архитекторам и инженерам, и выпытывает подробности и нюансы!
А наш обычный дизайнер, сидящий на рабочке, и делающий, заодно, в разы лучшие визуализации, получает гораздо меньшие деньги! И не рассказывайте мне про экономию! Можно и за 90к в месяц нанять отличного спеца! Который, вот так☝️ не опозорит контору...
08.03.2020
Ответить
С495
У вас человек делает проект за день, а то и два? И три крупных проекта за месяц? Так на вас работает человек скорость.
09.03.2020
Ответить
AlenaK
Вы слово "проект" от слова "визуализация" отличаете? А то я даже затрудняюсь Вам ответить... Это.. эммм... "немножко" разные вещи...
18.03.2020
Ответить
AlenaK
Если проект делают не иностранцы, но НИКОГДА нет финансовой разницы в проектах с хорошей визуализацией и с плохой! Это просто говорит об уровне мастерской, которая делает проект! Если уровень достойный, то и виз будет отличным, и планировка правильной, и инженерия на месте)) К сожалению, у нас чаще всего - картиночноки((( И воплотить в жизнь это потом маловероятно без серьёзных проблем в эксплуатации и с большим расхождение от ожидания заказчика...
08.03.2020
Ответить
С495
Да, все проекты стоят одинаково, конечно вы правы. И абсолютно не влияет наличие отдельного человека с зарплатой 150000, и покупка элементов, и дорогостоящей техники.
09.03.2020
Ответить
AlenaK
В смысле - "не влияет" и стоит "одинаково"?))) В Москве есть дизайнеры , которые стоят 2к за м2 и те, которые соглашаются работать за 15к. Всё зависит от того, сколько Заказчик готов заплатить и почему готов...)))
18.03.2020
Ответить
ID project - дизайн интерьеров
При чем тут качество визуализаций? Визуализация лишь помогает легче продать проект - маркетинговый ход, вовсе не влияет на качество проекта и его реализацию. Если вы работаете в крупной компании в B2B, естественно, конечный заказчик захочет увидеть проект в деталях, с учетом того, что согласовывает проект обычно не один человек, а целый совет (учредители и пр.). И не у всех одинаково хорошее восприятие пространства, кому-то будет достаточно простого рендера, а кто-то будет тупить. Визуализация появилась относительно недавно и с каждым годом развивается вместе с техническим прогрессом как сфера услуг. Дизайнеру она особа не нужна. Профессионал сможет разработать концепт, реализовать его без доп средств. А если концепт и наполнение не айс, то фотореалистичные картинки (по ним все равно видно, что это 3d, кстати!) не помогут. Многие дизайнеры (весьма именитые) до сих пор подают проект в скетче или простом рендере, если уж необходимо, и это никак не сказывается негативно на их профессионализме и высшем уровне проектах, даже наоборот, многим заказчикам нравится, что концепт их интерьера делается вручную - это индивидуальный продукт, дизайнер/архитектор, должен уметь держать в руке карандаш и изъяснить свою мысль. По вашему комментарию можно подумать, что с простой визуализацией проекты ужасны... Раньше справлялись вовсе без них, и великие работы архитекторов до сих пор производят wow-эффект. Скажите Френку Ллойду Райту, Оскару Нимейеру или Норману Фостеру, например, что у них подача на букву Г и проекты так себе))
И на стоимость проекта визуализация влияет + затраты временные, так как в большинстве бюро - это доп услуга, она может быть автоматически включена в стоимость, но затраты на исполнение (в том числе з/п визуализатора) уже заложены, никто даром работать не будет.
Так что, поднятая вами "значимость" ваших визуализаций - лукавство и самолюбование! А автора каждый зацепить или обидеть может, вопрос зачем вам это?
И на стоимость проекта визуализация влияет + затраты временные, так как в большинстве бюро - это доп услуга, она может быть автоматически включена в стоимость, но затраты на исполнение (в том числе з/п визуализатора) уже заложены, никто даром работать не будет.
Так что, поднятая вами "значимость" ваших визуализаций - лукавство и самолюбование! А автора каждый зацепить или обидеть может, вопрос зачем вам это?
13.03.2020
Ответить
AlenaK
Демагогия))) Вообще ни о чём... Вы Нормана Фостера зачем сюда приплели? Какое отношение имеют Мэтры к тому, что выложено в посте в качестве "дизайна"? Штаны на лямках... С Фостером лично не встречалась, к сожалению. Рэма Кулхааса, Данте О'Бенини, Поля Де Врома, Улле Тильманса, Йоргана Канневишера, Михаэля Прохински и многих других знаю лично, с многими приятельствую)) В большом количестве грандиозных архитектурных и дизайнерских мастерских, включая Гримшоу, Хопкинс, Заха Хадид и т.д. была и бываю. Поэтому постить "фотки" их руки и творений совершенно не обязательно))
Я НЕ дизайнер и ни когда им НЕ была. Но у меня очень большой опыт в службе Заказчика. Поэтому в финансах, кадрах, качестве проектов на всех стадиях от АК, ДК до РД и АН, в инженерии, эргономике, строительстве и эксплуатации, я разбираюсь совсем даже не плохо)) Я часто веду проекты от идеи до запуска и (на первых порах) контроля бизнес-процессов. Мои проекты - НЕ квартирки))
То, что выложено - плохо, которое преподносится, как "хорошо". И качество визуализатора/визуализаций тут говорит о сильной экономии. А это = нет хороших заказов. Почему нет? Нууу... Такой "дизайнЁр"...
И... Да. Визуализация не маркетинговый ход. Она нужна для того, чтоб Заказчик, не обладающий, в отличии от дизайнера, пространственным мышлением, понял - что же он заказывает и как это будет!
Ну хотя бы, что на ящиках шкафов у него будут ручки! Хоть какие-то...)))
18.03.2020
Ответить
С495
Вам так прекрасно ответила девушка. Во всем вашем ответе, аргумент только один "демагогия".
19.03.2020
Ответить
ID project - дизайн интерьеров
Аналогично, можем ответить на ваш комментарий - демагогия! Опять же, визуализация и ее фотореалистичность не связаны с качеством проекта и его реализации. С тем же успехом вы могли бы под проектами большинства успешных и признанных дизайнеров/архитекторов Москвы, которые работают и в других странах написать, что визуализация у них ужасна и они дизайнЁры (что уже настоящее оскорбление для профессионала), но вряд ли бы решились. Они как раз отмечают, что нет смысла тратить время на детализацию в 3D, "расставлять чашечки и журнальчики". А заказчики к ним и так прут толпой, видя реализованные работы. По факту получается, что вы пытаетесь сформировать у пользователей (в частности, данного форума) ложное впечатление о прямой связи профессионализма дизайнера (сейчас не о конкретном авторе, а в целом) и качества визуализации, а не заложенной идеи формирования пространства. Хорошая визуализация, конечно, как отдельный вид профессионализма визуализатора (не дизайнера) некий плюс, но об экономии и наличии/отсутствии крупных проектов и заказчиков не говорит. Дизайн может нравиться или не нравиться из-за личных предпочтений, но это уже другой вопрос! Ручки шкафов - push to open, например, то есть их отсутствие)) Можно написать - "не нравится то или иное решение, если по-честному! Хотя, автор опрос не делал)
19.03.2020
Ответить
Анна дизайнер интерьера
Дать Вам номер заказчика? Спросите почему они так маму не ценят)
10.03.2020
Ответить
Анна дизайнер интерьера
Вы знаете, я общалась со всей семьей и не единожды. И знаете, скажу Вам, там всем мама и заправляет. Отношения не всегда так очевидны как кажется стороннему наблюдателю)
10.03.2020
Ответить
Анна
Картиночки, как обычно, красивые. Для жизни... ой, не знаю. Диван на них - без нормального спального места, "уютно ночевать" на нём будет разве что такой же воображаемой нарисованной маме, а не реальному немолодому человеку. И селить в гостиной без малейшего собственного угла - офигеть любовь к члену семьи. Куда потом с такой планировкой девать "будущего ребёнка", непонятно, но это ещё ладно, проблемы решаются по мере поступления. Прочее тоже спорно - и размещение телевизора, который невозможно смотреть с основной части дивана (надо либо сидеть на одном его маленьком уголке и кому-то - в кресле поодаль, либо в шкафу :) ), и единственный совмещённый санузел на 3, а в будущем - 4 человек.
Про предыдущий ответ: из кухни за много метров и через фрагмент входного проёма смотреть будет очень увлекательно... для тех, кто ценит трудности, закаляющие характер :)
Но поскольку жить там не мне, охотно любуюсь на милые картиночки.
06.03.2020
Ответить
Анна дизайнер интерьера
Нет, почему Вы так пишите?
В планировании проекта сама бабушка принимала активное участие и организовать так гостиную с ее спальной зоной - была ее решением!
И почему Вы так пишите про ребенка? Ну нет у родителей возможности сейчас сделать детскую отдельную. Не у всех есть возможность в молодом возрасте разъехаться с мамой, а может и желания нет, я не знаю. Я думаю, что судя по тому, как бабушка активно принимала участие в проекте, она наверно и спонсировала это все. А значит - ее слова главное.
10.03.2020
Ответить
AlenaK
Главное - это слово Профессионала☝️, которому доверились Заказчики! И если он не может отстоять, переубедить, направить - то... Вот в этом-то у проблема о которой Вам тут говорят... А Вы ждали диферамбов? 😏
18.03.2020
Ответить
Анна
Увы, нет. Цитирую, сохраняя авторское написание: "Жить будет молодая пара, с мамой и, в будущем, с ребенком".
09.03.2020
Ответить
Анна дизайнер интерьера
Мамино решение было так организовать пространство. Она была активным участников в деле разработки этого проекта.
10.03.2020
Ответить
Анна дизайнер интерьера
Милая Анна, давайте я Вам видеосвязь с заказчицей организую. У Вас все вопросы к ней. Не хочу становится помехой для вашего жаркого диалога!
10.03.2020
Ответить
Анна
Уважаемая дама, у меня нет вопросов ни к Вам, ни к заказчице. У меня есть лишь впечатления от её выбора и от Вашей работы с этим выбором, которой Вы так гордо похвастались.
Странно, конечно, что тут Вы так скромненько отказываетесь от собственной до того расхваленной роли - даже от своего выбора деталей визуализации типа негодного для жизни дивана на картинке, однако поведение чужих людей - не моё дело.
10.03.2020
Ответить
Анна дизайнер интерьера
А знаете, мне сейчас правда стало интересно. Простите, а правда создается впечатление, что я хвастаюсь? Я, честно говоря, искренне в полном шоке. Я на ББ 11 лет и никогда на меня не обрушивалось столько нападок. Я первый раз вижу эти никнеймы и точно ничего плохого никому из этих людей не сделала. Работу выложила примерно как обычно. Ничего особенного ни в плюс, ни в минус в ней нет.
За что на меня выливают этот ушат??
10.03.2020
Ответить
Анна
Есть очень старая народная пословица про зеркало, на которое нечего пенять, коли...
Если Вам множество зрителей дружно высказало "ФЕ" на картиночки, которые Вы тут вывесили с хвалебными заявлениями про "лаконичность, эргономичность, цвета на острие моды" - таки, может, что-то с проектом не то, а не со зрителями? ))))) Хотя зеркало-то обвинять проще, ага.
10.03.2020
Ответить
Анна дизайнер интерьера
Я искренне удивлена. И не пеняю, а мне действительно хочется понять, что не так. Заказчик довольный, в инстаграмме тоже спокойно все. А тут вдруг взрыв. А что плохого в том чтобы в позитивном ключе рассказать немного о своем проекте? Мне он нравится, цвета таки да, на острие моды (можно статьи с трендами промониторить). Я даже посмотрела несколько страниц до моего поста, нууу, все как обычно. Архитектурных и дизайнерских шедевров тут как не было, так и не появилось. Так что, мой (да,- эргономичный, да-лаконичный, да-модный) проект не выбивается.
10.03.2020
Ответить
Анна
Ну если Вы и в сотый раз после сотого ФЕ от сотого зрителя искренне не понимаете, что не так, и искренне не отличаете "довольство" неискушённого заказчика миленькой картиночкой от довольства жизнью в реализованном интерьере спустя определённое время, то тут "хоть пнём по сове, хоть совой об пень".
И миллион долларов против плюшки: Вы не спрашивали маму Ваших чудо-заказчиков, как ей нравится чудо-идея поселить её на неудобном диванчике в гостиной без сантиметра собственного угла.
10.03.2020
Ответить
Анна дизайнер интерьера
Нуу, я с этой мамой как бы проект делала. Она там в семье рулевой. Это здоровая активная 50-ти летняя женщина, мнение которой для ее дочери и зятя очевидно имеет огромное значение. Почему они решили жить так как решили, ни мне ни Вам не понять и не стоит. Мы не их психологи.
У меня было очень много заказчиков за 12 лет опыта. И многие люди обращаются ко мне по второму разу и советуют друзьям.
Так что я все еще не понимаю, за что на меня так ополчились здесь в этот раз. Как снежный ком, один начал и все навалились. Синдром толпы наверно.
10.03.2020
Ответить
Анна
ОК, у меня вопрос один. Вот эти Ваши заказчики были реально довольны после как минимум года жизни в реализованном точно по этой картинке проекте? Со всеми его странностями, включая отсутствие адекватного для здоровья спального места?
10.03.2020
Ответить
Анна дизайнер интерьера
Проект же новый. Пока не известно. Но они кстати, друзья моих заказчиков которые были год назад. Вот те очень довольны реализацией проекта.
А у меня вопрос, что не адекватного для здоровья в раскладном диване? Так-то диван хороший, с прекрасными отзывами. Я не на шхонке предлагаю человеку спать. Откуда такая агрессивная позиция??
И что еще странного в проекте?
ТВ в гостиной, если что, абсолютно точно расположено так по требованию заказчиков (могу поискать прям это письмо и прикрепить скрин в комментарий).
Санузел здесь никак не разделишь. И не продублируешь. Это незаконно.
Какие еще могут быть претензии?
10.03.2020
Ответить
Анна
Я не удивлена, что Вы искренне не видите, что не так в том конкретном диване, который нарисовали на картиночке. Диваны бывают разные, включая отличные по удобству, но Ваш миленький и красивенький имеет отвратительную для сна поверхность, что дизайнеру вроде как положено знать... однако Вашего предыдущего непонимания не ждала ничего и тут :)
Разделить санузел можно совершенно законно... особенно если он изначально по плану раздельный (см. пункты 7 и 8 Вашей же схемы) :) Если почему-то не получается у некоего конкретного специалиста - это характеризует данного конкретного специалиста и ничего более.
И не удивлена, что удивительные люди, заказавшие чудесатый проект и довольные им на картиночке, пока ни секунды не прожили в построенной по нему реальности - иначе у них было бы много ярких эмоций несколько другого плана.
10.03.2020
Ответить
Анна дизайнер интерьера
Что значит отвратительная для сна поверхность? Я изучила характеристики раскладного механизма, ткани, прочла отзывы. Вы же этого не делали, откуда выводы?
Санузел нельзя было оставить раздельным исходя из требований ТЗ. А сделать два невозможно и незаконно.
Я обратила внимание, что Вы с большим чувством, с толком, а главное с ярко выраженным удовольствием занимаетесь обесцениваем чужого труда. Судя по всему, в Вас накопилась желчь и яд, который просто необходимо куда-то деть, иначе в этом можно захлебнуться. Поэтому в Вас просыпается потребность втаптывать в грязь другого человека. Вы ищите такую возможность в интернете, так как тут это проще, чем офлайн.
Я Вам сочувствую. Надеюсь, Вы избавитесь от этой саморазрушительной привычки. Удачи! (Я с Вами сейчас искренна, без сарказма и злости)
11.03.2020
Ответить
Анна
Отвратительная для сна - это значит неровная и с бороздами в неподходящих местах. Вы можете "изучить" хоть ткань, хоть рекламу, хоть модный каталог но если не видите основу основ... Да что тут говорить, если дружное ФЕ зрителей Вас ничему не научило, только обидки вызвало?
Впрочем, на фоне некоторых своих коллег из этого же раздела Вы ещё ничего, а ляпы меркнут до незаметности :) По сравнению, скажем, с дивной барышней, страстно доказывавшей, что объединение кухни с комнатой и снос пары стен с возведением новых в других местах НЕ является перепланировкой. Всё познаётся в сравнении )))
11.03.2020
Ответить
Анна дизайнер интерьера
Ммм, вот так выглядит спальное место у дивана с таким механизмом раскладывания. Борозды не при чем.
Вам не кажется, что у Вас не осталось аргументов против меня и надо просто принять тот факт, что я хороший дизайнер и хороший человек. И накидываться на меня не стоило) В этом же нет ничего обидного?


12.03.2020
Ответить
Анна
Анна, я не знаю, какой Вы дизайнер и какой человек. Верю, что человек хороший, что до профессиональных качеств, оценить не могу, ибо слишком гордо демонстрируете слишком спорные решения - значит, они не только заказчику, но и Вам самой милы безотносительно пригодности для жизни. Но при этом у Вас есть и более удачные проекты, так что в сумме судить не берусь.
Насчёт дивана, который Вы хвалите, не зная его в деле: складная кровать с таким механизмом раскладывания у нас есть дома. Икеевская Ликселе, с достойным Икеи качеством, отличная как вариант для временных ночёвок, но вовсе не фонтан для постоянной жизни. Хотя, конечно, лучше так, чем обычная неровная поверхность с бороздами - всё познаётся в сравнении.
12.03.2020
Ответить
Йож Теребонька Недалеких
А можно узнать,как почти все верхние двери открываются в санузле,если светильники сделаны слишком близко?
12.03.2020
Ответить
Ирина (Архитектор-дизайнер в Москве)
Не обращайте внимание на троллей. Они ж только этого и добиваются: питаются вашей обидой .. пропускайте мимо
19.03.2020
Ответить
Юлия
Мне все понравилось, и холодильник на балконе вполне удобно, а поворот телевизора от кронштейна зависит )
06.03.2020
Ответить
Юлия
Мы все прекрасно поняли. Чем то приходится жертвовать ради другого. Значит собственников это устраивает. Компромисс )
06.03.2020
Ответить
Анна
То, что изначально устраивает в воображении, далеко не всегда потом устраивает в жизни. Впрочем, ошибки людям тоже нужны, лучше чем на них, не научишься ни на чём )))
06.03.2020
Ответить
Кама
Холодильник на балконе - очень неудобно.
А ТВ смотреть только с кресла? 🤷🏼♀️
06.03.2020
Ответить
Анна дизайнер интерьера
Почему же неудобно? Я даже у себе дома поставила холодильник на балконе и ооочень довольна! Ходить лишние 4 шага совсем не утомляет, а просторнее ощутимо.
Я написала в посте, что был приоритет (то есть то, на что надо ориентироваться в первую очередь) чтобы ТВ было удобно смотреть именно из кухни.
06.03.2020
Ответить
Алена
Да ладно, весь ремонт ради того, чтобы ТВ было удобно смотреть именно из кухни.
06.03.2020
Ответить
Анна дизайнер интерьера
"Нам принципиально смотреть ТВ с кухни. У нас так в этой квартире. Нам супер. Сделайте нам прям так, Анна!" Такие слова от заказчика я прочитала.
10.03.2020
Ответить