Дизайн-проект в ЖК "Царицыно"
Авторские проекты дизайнеров.(Посты не по теме будут удаляться!)Добрый день, дорогие читатели.
⠀
⠀⠀⠀⠀⠀⠀⠀⠀⠀
⠀⠀⠀⠀⠀⠀⠀⠀⠀⠀
Осенью закрыли один из проектов, которым хочется с вами поделиться. У этой квартиры должна была получиться совсем другая история. С мини кофебаром на кухне, большой семейной гостиной, где все собирались бы на праздники и просторной спальней для хозяев. Но жизнь очень часто меняет планы, под которые приходится подстраиваться.
Наша история получилась точно не хуже! Разработка дизайн-проекта заняла, конечно, не мало времени. Но мы получили нужный результат, а это главное! Все эскизы одобрены. Вся рабочая документация собрана. Все сметы подсчитаны. А что у нас вышло, смотрите сами!
Надеюсь и вам понравится.
В этот раз не хочется много слов. Их и так всегда достаточно. Поэтому, кратко про объект и концептуальные решения для каждого помещения. И приятный бонус в конце.
Площадь квартиры:
70,00 кв.м.
Место нахождение:
Город Москва
Для кого:
Для молодой семьи: мама, папа и сын 6 лет. Планируется, в будущем, пополнение. Поэтому, необходимо было предусмотреть место для кроватки, а также, место для бабушки, которая может иногда остаться переночевать.
Какой видите будущую квартиру:
«Светлую, в спокойных постельных тонах. Но чтобы не была полностью белой. Можно в интерьер добавить бирюзовые цвет, коричневый»

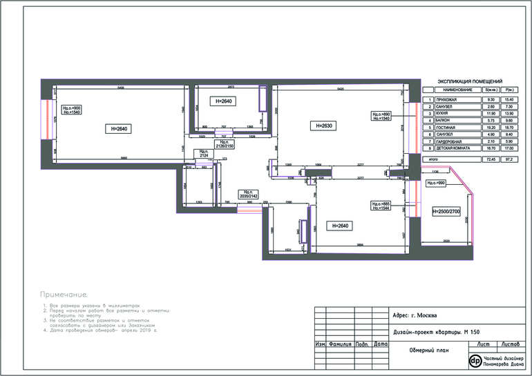
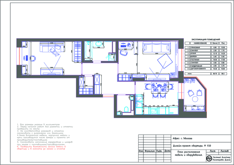
Обмерный план
Планировочное решение:

Основная зона хранение в гардеробной. Так же, в каждой комнате предусмотрено личное хранение. При входе обувница и небольшой комод. Угловой кухонный гарнитур, с большим отдельностоящим холодильником. Спальня объединена с гостиной, где выделено место для рабочей зоны, под хранение и место для отдыха. В ванной предусмотрено место под стиральную машинку и сушку. Есть отдельный санузел, со скрытой системой хранения. В детской большая рабочая зона, диван-кровать и платяной шкаф.
Эскизы прихожей

⠀⠀⠀⠀⠀
⠀⠀⠀⠀⠀⠀⠀⠀
Для отделки стен использовали декоративную штукатурку под шелк. Внутри декоративных молдингов матовую краску. На полу сочетали плитку под мрамор с декоративными, контрастными вставками. Двери белые, с матовыми стеклянными вставками.
Кухня

Балкон
⠀⠀⠀⠀
⠀⠀⠀⠀⠀⠀
Балкон решили утеплить, а там разместить небольшой диван с раскладным спальным местом и небольшой кофейной зоной.
Ванная комната и санузел
⠀⠀⠀
⠀⠀⠀⠀⠀
⠀⠀⠀
⠀⠀⠀ 
Спальня-гостиная

Гостиная выступает также в роли спальни. Поэтому, для зонирования пространства предусмотрели невысокую перегородку, с дополнительным местом под хранение. Встроенная система выполнена в едином стиле и плавно переходит от шкафа в тумбу под телевизор.
Детская комната

У окна большая рабочая зона, где в будущем будут заниматься два ребенка. Диван-кровать, с ТВ зоной напротив и место под хранение рядом с входом.
В целом, проект получился простым, светлым со своими цветовыми акцентами. Надеюсь, реализация будет с минимальными расхождениями.
И обещанный сюрприз, про который писала в начале поста. В связи с не легким периодом, происходящим во всем мире, мне бы хотелось сделать для всех своих будущих Заказчиков приятный бонус.
Для всех будущих Заказчиков специальная скидка 40%. За подробностями пишите в личные сообщения. Обсудим все детали.
А так же, я ввела дополнительные услуги по приятным ценам, которые помогут вам решить рабочие и концептуальные проблемы в строительном процессе:
- удаленная консультация;
- концептуальные решения в виде коллажей;
- экспресс планировка;
- онлайн декорирование
***
Друзья, я не хочу здесь в комментариях обсуждать, какчтопочему по поводу личной жизни моих Заказчиков! Мне это не интересно. Меня интересует лишь проектная жизнь, которую я адаптирую под пожелания Заказчиков. Поэтому, давайте ценить наше время, которое дорого всем. На подобные вопросы, я даже не стану отвечать!
И по старой, доброй традиции: если такой проект создан и реализован, значит кому-то нравится данное решение, и он готов в этом и с этим жить.
--
С уважением,
Пономарёва Диана.
http://www.dianaponomareva.com/