Помогите с планировкой пожалуйста)
Вопросы и ответыДевочки всем приветик, помогите пожалуйста, дана такая планировка, хотели бы сделать кухню гостиную побольше, оставить так же ещё 3 спальни и два санузла. Но вот вопрос, можно ли переносить кухню в другую комнату или нет, читала и поняла что все таки нельзя. Тогда встает вопрос как сделать так чтобы был большой вместительный кухонный гарнитур и достаточное место для принятия гостей если оставить как есть? И помогите пожалуйста как в данной площади разместить отдельностоящую ванну и душ?Большое спасибо всем за помощь)))
Виктория (дизайнер)
если законно, то один вариант - кухня на месте кухни (если у вас не 1 эт). Ну и мало приятного,если над твоей спальней у соседей кухня
например так - часть соседней комнаты отхватить - сделать там нуш для дивана. Или наоборот, для ТВ
например так - часть соседней комнаты отхватить - сделать там нуш для дивана. Или наоборот, для ТВ
12.10.2020
Ответить
Виктория (дизайнер)
А если незаконно, тогда ваш вариант. Но повторюсь, ничего хорошо нет, если у соседей сверху над вашей спальней кухня.
А вообще, у вас площадь большая, окон много, стояк не в одном месте. Варианты хорошие получатся, но надо над ними поработать.
12.10.2020
Ответить
Ксюнька (Kescha)
Ну мне вот ваш вариант понравился, и девушка ниже предложила, но там небольшая загвоздка с трубами. И больше как то мыслей нет:(((неужели можно еще варианты придумать?
12.10.2020
Ответить
Ксюнька (Kescha)
А не подскажите как разместить в ванной отдельностоящую ванну и душ?
12.10.2020
Ответить
Виктория (дизайнер)
На вашей идеи во-пераых, унитаз стоит не верно и ванна тоже. Унитаз надо ставить как можно ближе к стояку. Если его тянуть на такое расстояние от канализации, вы на троне сидеть будете.
Так же с ванной - нельзя её туда, там тех люк должен же быть.
12.10.2020
Ответить
Ксюнька (Kescha)
Да, я знаю что я там неправильно расположила, вот и не знаю как лучше, если обычную ванну можно придумать воткнуть как, то вот с душем отдельным и отдельноатоящей ванной как то мысли вообще нет:(((
12.10.2020
Ответить
Виктория (дизайнер)
Именно в вашей планировке? Так то можно санузел на 2 разделить: один из спальни сделать (хозяйский), второй общий.
Например, в хозяйкой ванну поставить, в общем душ или наоборот
12.10.2020
Ответить
Ксюнька (Kescha)
А там итак два санузла от застройщика, но один большой тот что я красным выделила, а второй малюсенький туда как то душ не влазит:( он слева
12.10.2020
Ответить
Irylen
У застройщика вполне хорошее расположение кухни. Продлить ее под подоконник и сделать полуостров (как бы буквой "п") - вообще огонь будет. Можно даже без верхних шкафов обойтись
12.10.2020
Ответить
Ксюнька (Kescha)
Да, тоже есть такая мысль, спасибо, но вот думаю полуостров стационарный на большое количество гостей не хватит, и как тогда в таком случае быть?!
12.10.2020
Ответить
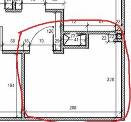
Ксюнька (Kescha)
Вот такой план изначально позиционирует застройщик, и вот как бы хотела сделать я
12.10.2020
Ответить
Александра
У застройщика планировка гораздо лучше того, что хотите Вы. Не придумывайте ерунду.
12.10.2020
Ответить
Юлия
в верхнем закутке кухню буквой П, остальное в нижней части.
кухня останется на кухне
12.10.2020
Ответить
Юлия
Ксюнька (Kescha), если только так. Зеленая кухня. Она остается территориально в кухне, не нарушая законов. Но подводка воды и слив канализации это красная линия. Все это можно было бы пустить в стене, учитывая уклон, но дверь на пути...
12.10.2020
Ответить
Ксюнька (Kescha)
Аааа, хм, интересная идея. Спасибо большое. Но получается из за двери это невозможно?
12.10.2020
Ответить
Юлия
Ксюнька (Kescha),
ну можно еще так попробовать. Но раковина и пмм под окном слева
ну можно еще так попробовать. Но раковина и пмм под окном слева
12.10.2020
Ответить
Ксюнька (Kescha)
Ясненько спасибо большое😘 а что подскажите насчет санузла, возможно ли там разместить отдельностоящую ванну и душ?
12.10.2020
Ответить
Юлия
Ксюнька (Kescha),
Попробуйте так в масштабе нарисовать. Унитаза тут 2, на выбор куда влезет
Попробуйте так в масштабе нарисовать. Унитаза тут 2, на выбор куда влезет
13.10.2020
Ответить
Ксюнька (Kescha)
Здорово, спасибо, но смущает что раковина маленькая получается, хотелось бы накладную на столешнице хотя бы метр, это наверно нереально:(
13.10.2020
Ответить
Юлия
Ксюнька (Kescha), у вас там стена 194, ванна 80, 14 см на штукатурка и плитку. Остается как раз метр, если вы проследите
Заглубитесь в гардероб на глубину раковины.
13.10.2020
Ответить
Ксюнька (Kescha)
А не подскажите идею как еще сделать, вроде как на таком плане остановились, но вот не получается сделать домашний кинотеатр:(
А поменять местами диван и стол как то жалко площадь
А поменять местами диван и стол как то жалко площадь
14.10.2020
Ответить
Инна Дизайнер Частного дома
У Вас очень хорошая квартира, тут можно варианты рисовать, если прямо сесть и продумать. Кухню оставить на своем месте, но поискать варианты - в две линии, например. Вдоль одной стены когда, не очень удобно. На вашем варианте в маленьком санузле - унитаз неудачно стоит, от его центра до стир. машины или стены 38-40 см оптимально. В большой ванной тоже нерационально - не будет такая расстановка и визуально смотреться и подход к душу неудобный, не говоря уже про то, что тянуть канализации далеко.
В спальне шкаф не откроете, мешает кровать. Я бы рекомендовала заказать планировочное решение - это не так уж дорого стоит, но будет все продумано под вашу семью. Мы же сейчас не знаем всех данных - какие увлечения у членов семьи, что нужно крупногабаритного хранить, стол на сколько человек и т.д. У меня для выяснения всех деталей несколько анкет. И от полученной информации и варианты планировки будут меняться. Стиральную машину, возможно вынести и сделать постирочную зону, что очень удобно. Большой санузел действительно можно разделить и сделать мастер спальню - с собственным санузлом. Опять же от числа проживающих зависит.
13.10.2020
Ответить
Ксюнька (Kescha)
Да, знаю, тут так наброски только. А сколько стоит планировочное решение не подскажите на нашу площадь?!
13.10.2020
Ответить
Инна Дизайнер Частного дома
У меня несколько пакетов услуг - минимально - 200 руб за кв.м.
13.10.2020
Ответить
Ксюнька (Kescha)
Ну вот по советам девочек и примерно по нашим предпочтениям получилось вот так, единственное не получается сделать домашний кинотеатр как муж мой хочет в кухне гостиной.
А каким образом можно в нашей планировке сделать мастер спальню? 🤗это конечно моя мечта, но как то не понимаю как это возможно. Проживающих у нас 4,два мальчика и я с мужем. На данном этапе хотим одну детскую, спальню и кабинета будущем детская. Вот примерно что получилось. Что скажите?
А каким образом можно в нашей планировке сделать мастер спальню? 🤗это конечно моя мечта, но как то не понимаю как это возможно. Проживающих у нас 4,два мальчика и я с мужем. На данном этапе хотим одну детскую, спальню и кабинета будущем детская. Вот примерно что получилось. Что скажите?
13.10.2020
Ответить
Инна Дизайнер Частного дома
А Вам телевизор совсем не нужен в гостиной?
Не очень нравится два одинаковых по размеру стола на кухне рядом. И для меня мало мест хранения в спальнях, да, гардеробная есть, но достаточно ли ее будет?
Санузел маленький стал удобнее. В большом не нравится выступ для короба инсталляции и не забывайте про доступ к трубам. И можно разделить - в маленьком сделать душевую, а в большом ванную - тогда каждый будет полноценным - за счет коридора санузлы можно расширять. Или даже выделить третий, разделив большой на два. Если делаете просто туалет, то добавьте гигиенический душ.
Подумайте заранее,где будет пылесос, гладильная доска, ведро и прочий инвентарь.
Когда делаю планировки - убираю сразу все перегородки и ставлю их так, как мне удобно (с учетом мокрых зон). Если не видеть старый план, то идеи рождаются уже совсем другие. Может быть, я бы сократила длину коридора - но нужно пробовать. Вход в санузел из спальни, как раз где сейчас душ - но тогда менять конфигурацию гардеробной. Тут получается целая цепочка - одно изменение тянет за собой ряд других.
Я сейчас не из вредности не говорю как именно, а потому что перед тем, как предложить клиенту расстановку, я сама перепробую массу вариантов, из них выберу лучшие - и это не 20 минут времени.Тем более, нужны размеры по всем стенам.
В спальне, которая напротив гардеробной - глубина шкафа какая? Если менее 55, то плечики не уместятся, только на поперечную штангу. Места свободного много, но хочется переставить. Если думать сразу о результате, то пусто. И для чего эта спальня - мальчишки же не будут учиться в одной комнате - где тогда стол для второго ребенка? Получается, что кроме сна здесь нечем заняться. Не кресла, стула, да хоть бы кресла-мешка, чтобы посидеть, пригласить друзей.
14.10.2020
Ответить
Инна Дизайнер Частного дома
И про домашний кинотеатр. Попробуйте докрутить, может диван переставить или попробовать два меньшего размера, даже если к окнам. Планировка - это залог хорошего настроения, на самом деле. Когда вы живете и кайфуете от того, что реализовали максимально хотелки каждого, от того, что каждый уголок удобный и продуманный. Не спешите, тут сто раз отмерь... Потом ни одним цветом стен и никаким декором не исправить то, что не предусмотрели. Это самый важный этап. На правильную планировку интерьер придумать просто, потому что там уже есть логика. За два дня план не делают. Это же потом и основа под электрику, сантехнику, а ее переделать дорого по чистовой отделке.
Идеально прожить интерьер. Окунитесь в детство, представьте полностью свой день в этой квартире. От того, как проснулись, в какую ванную зашли, где взяли одежду, как готовите на кухне - путь буквально от холодильника до раковины, плиты и т.д. Как встречаете мужа с работы или сами заходите в дом, где раздеваетесь, куда можно поставить сумку или посадить ребенка, чтобы обуть. Где зеркало, куда можно посмотреться, а куда положить ключи. Понимаете, все до мелочей. Где обувь будет стоять. Может, нужно дверь в гардеробную развернуть в сторону прихожей. Как встречаете гостей и как проходят праздники. Что видите в первую очередь, входя в каждую комнату (вот стол на кухне некрасиво смещен относительно окна). Как этот день проживают сыновья. А когда оба будут в школу ходить, а не сейчас, когда еще не занимают полноценно ванную самостоятельно. Вот когда в этом прожитом дне все будет так, как хочется, а не так, как "ладно, с этим смирюсь и с этим", тогда планировка готова. Конечно, может, не на 100% получится все-все мечты воплотить, но нужно к этому стремиться.
И, кстати, а на кухне будут шкафы пеналы? Где холодильник? И посудомойка - нужна ли?
Надеюсь, моя простынь текста будет полезна.
14.10.2020
Ответить
Ксюнька (Kescha)
Инна_Дизайн_Раскладка_плитки, Просто с мужем еще очень сложно договорится, он считает нужно сделать все так не снося стены и не строя новые, но на мой взгляд чтобы все предусмотреть это нереально. Да разумеется шкафы пеналы хочу, холодильник встроенный, в идеале плюс еще встроеная морозильная камера и посудомойка на 45. Согласна с вами что это не дело пяти минут, ну у меня еще год (время есть) просто пока и планирую заранее. На старой квартире ттт сделали все отлично были кое какие недочеты недоработки но в общей получилось неплохо. Все кто был в гостях всем нравилось, да и продали моментально, буквально за неделю.
Спасибо вам большое вы мне очень помогли, буду дальше крутить вертеть, думать.
14.10.2020
Ответить
Инна Дизайнер Частного дома
Смотрите, если вы уберете все перегородки и начнете отталкиваться от мебели, то очень даже вероятно, что новый вариант можно будет наложить на планировку от застройщика с минимальными изменениями, но это поможет мыслить глобальнее. Попробуйте. И рада, что была полезна)
14.10.2020
Ответить
Ксюнька (Kescha)
Инна_Дизайн_Раскладка_плитки, телевизор нужен в этом и загвоздка вся. Насчет столов согласна рядом слишком много, но тот что примыкает к гарнитуру это полубар (для завтраков +место для хранения). Стол отдельный нам нужен, потому что часто приходят гости. По поводу мест хранения тоже сомневаюсь что их достаточно. Гигиенический дущ обязательно, а лучше даже два в разных санузлах. В спальне напротив гардеробной глубина шкафа 60. Насчет мелкого дополнения (кресло-мешок и тд) еще в процессе доработки.
14.10.2020
Ответить
Инна Дизайнер Частного дома
Тогда пробуйте диваны к окну. Я люблю ставить два - общаться так удобнее.
14.10.2020
Ответить
Инна Дизайнер Частного дома
Попробуйте буквой Г, и можно один поменьше. Стол можно к простенку, который у вас выступает, как Виктория выше показывала.
14.10.2020
Ответить
Nata
У Вас выход только один.... объединять кухню с соседней комнатой и делить большую на 2.... можно от соседней с кухней отрезать 40 см.
12.10.2020
Ответить