Городской уют
Авторские проекты дизайнеров.(Посты не по теме будут удаляться!)
Всем привет!
Не виделись с марта.
Много всего сделано за это время.
Сейчас хочу показать вам проект для моих, можно сказать, постоянных заказчиков. Несколько лет назад сделали им чудесный дом в Подмосковье, а сейчас очередь дошла до квартиры в Москве.
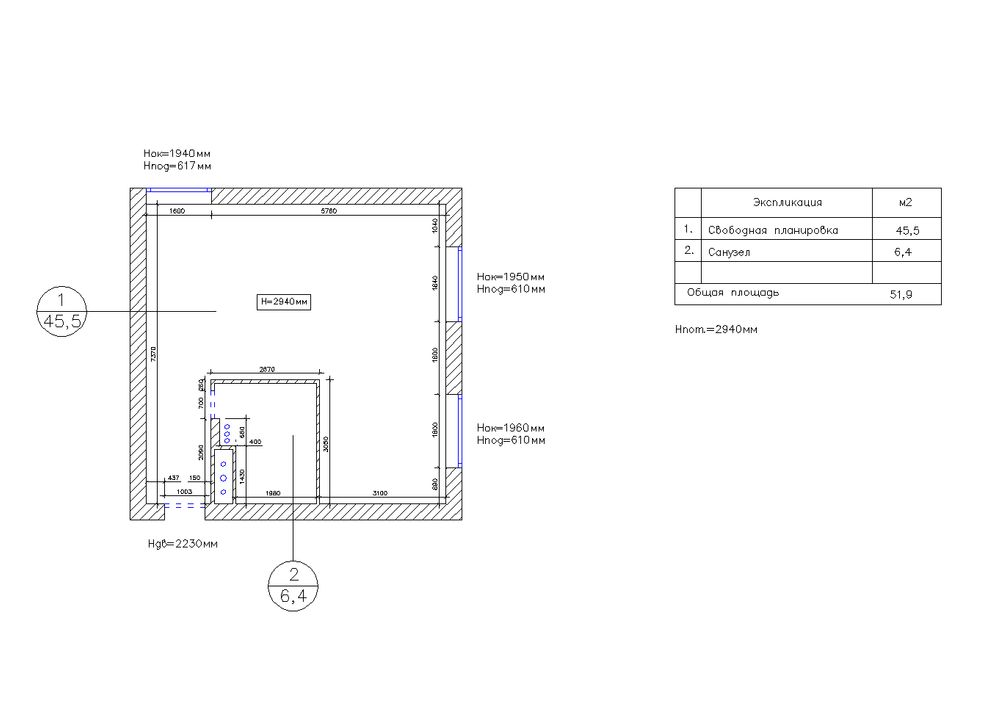
Квартира небольшая, 52м2. Нужно было разместить кухню-гостиную, спальню, детскую, совмещенный санузел. В данном случае, это квартира не для круглогодичного проживания. А скорее, место, где можно отдыхать от загородного дома. Родители работают всегда удаленно, дочка тоже учится онлайн.
Красный кирпич, отсутствие обоев и максимально спокойная цветовая гамма, это то, что заказчики попросили меня взять за базу.


























Комменируйте. Пишите в личку, на вотсап, звоните.
Сайт: https://www.ananasdesign.ru/
Инстаграм: https://www.instagram.com/_ananasdesign_/
8-905-767-13-32
Стоимость дизайн-проекта:
до 30 м2 - 50 000 руб.
от 30 - 70 м2 - 2200 м2 руб.
от 70 - 110 м2- 2000 м2 руб.
от 110 - 150 м2- 1800 м2 руб.
от 150 м2 - индивидуально
2 строка снизу