Дизайн детской для мальчиков 3-х и 6 лет. До/После
Авторские проекты дизайнеров.(Посты не по теме будут удаляться!)Делюсь с вами проектом детской комнаты.
Ранее в комнате проживал старший мальчик.
Но младший продрос и его решили подселить к брату.
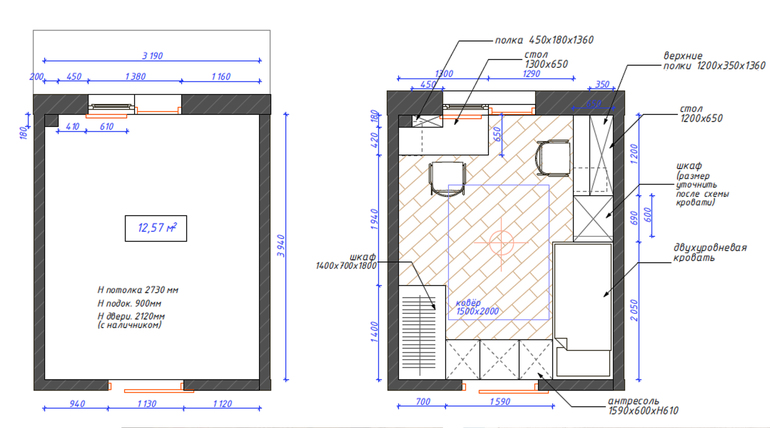
Комната 12,5 м2, с выходом на балкон.
Заказчики просили сохранить дверь и не штробить стены под новые розетки.
Что нужно было сделать:
- разделить комнату на функциональные зоны (учебы, сна и игр)
- продумать максимум мест для хранения вещей и игрушек
- рассадить детей, т.к. старший сын - школьник
- создать атмосферу детства. Мальчики просили динозавров и космос :)
Что получилось:
- я задействовала каждый сантиметр в этой комнате и зонировала комнату.
Теперь все на своих местах и полный порядок
- изначально предложила белый вариант фасадов, но закзачики попросили
больше цвета.
Ждем реализации.
___________________
Если вам нужен дизайн-проект комнаты или квартиры, пишите.
Даже в небольших пространствах можно создать стильный
и функциональный дизайн!










