Проект евро-двушки в пастэльных тонах
Авторские проекты дизайнеров.(Посты не по теме будут удаляться!)
Данный проект разработан для семейной пары.
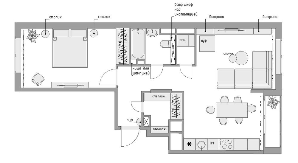
Площадь квартиры составляет 56 м2. Изначально застройщиком предполагалась стандартная двухкомнатная квартира: кухня, две изолированные комнаты, в квартире имелась гардеробная и два санузла.
В ходе проектирования было принято решение сделать пространство более современным. Так кухня и совмещенная с ней комната были объединены в просторную кухню-гостиную, большая комната отошла под спальню. Гардеробная при входе осталась на прежнем месте, но была расширена за счет кухни. Один из санузлов был отдан под хозблок и постирочную. Второй санузел- совмещенный.
Очень узкую прихожую (всего 110 см в ширину) трансформировали таким образом: за счет гардеробной устроили нишу со встроенными закрытыми полками, под них задвигается небольшой пуфик, чтобы можно было присесть, когда обуваешься. Стена напротив оформлена зеркалами во всю высоту. Пространство стало визуально шире и светлее.
Планировка до
Планировка после
Заказать проект: +79166441289, Ирина Грамматчикова, г. Москва