Интерьер на минималках.
Авторские проекты дизайнеров.(Посты не по теме будут удаляться!)Квартира евродвушка, площадью 50 квадратов для семейной пары.
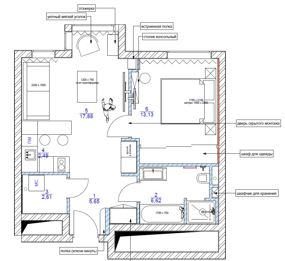
Заказчикам хотели стиль "лофт" и уложиться в небольшой бюджет - 3 млн за все. Лофт нельзя сделать с небольшим бюджетом, поэтому мы планво перекочевали в минимализм (а возможно и сканди).
Это первая собственная квартира и в ней, конечно, хотелось реализовать все свои мечты: и отдельностоящую ванну на ножках и гардеробную комнату и барную стойку с диваном за ней и еще бы кабинет сделать (который в будущем будет детской). Однако, разместилось только все необходимое, без излишков.
Из нестандартного для такой небольшой площади - это наличии ванны и душа. Это было прям обязательное условие заказчиков.
В общем и целом, интерьер получился легким, светлым и незагроможденным. И самое главное - мы уложилилсь в бюджет. Из дорого тут только сантехника и кухня. Все остальные материалы дешевые: ламинат из ОБИ, плитка Керама Маррацци, обои всем известный Марбург, мебель (как многие догадались) из ИКЕИ. Некоторые светильники тоже из ИКЕИ. Двери Профиль Дорс

Тут отмечу решение тумбы для ТВ. Чтобы выиграть место и не спотыкаться об нее, я вынесла всю технику для ТВ в нишу слева от телевизора. За самим телеком розетки только для него, а вот в нише выводы под интернет, hdmi шнур для эпл тв и еще пара розеток. К телевизору техника подключается через кабель-канал, спрятанный в стене. Таким образом, осталась чистая стена с подвесным телевизором, но весь функционал сохранен.





Картина тут спорная деталь интерьера, но меня никто не спрашивал) Она прячет розетки для телевизора. Заказчикам он не нужен в спальне, но т к квартиру надо будет продавать, сразу сделали их для будущих хозяев. Надеюсь, со временем поменяют.
Это шпон на мдф. Либо верхний, либо нижний
Это инж доска. Но она просто хамелеон какой-то, если честно. Косвик шамборд не поддаётся цветопередаче абсолютно.
Ну по фото бесполезно подбирать конечно.
Типа такой должен быть толстый, я и строителям отдала этот образец, а в итоге он оказался на 5 мм тоньше!