Вытяжной вентилятор
Вопросы и ответыДевочки, подскажите, какой ставили для принудительной вытяжки? Ванная/туалет. Желательно не сильно громкий
Лучший ответ
Татьяна Специалист по недвижимости
у нас silent у него есть разные мощности, работает давно, проблем нет

17.05.2022
Ответить
selena1002
Татьяна, добрый день! Меня интересует посадочное место этой модели. Не подскажете, какое оно?
19.05.2022
Ответить
selena1002
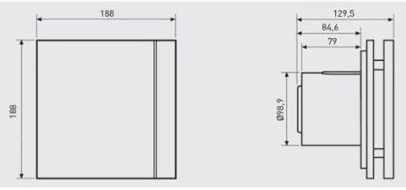
Татьяна, вот чертеж этого вентилятора:
Одна часть уходит за стену, вторая остается снаружи. Место, по которому вентилятор крепится к стене, и называется посадочным. Просто я читала на форуме, что посадка у него не круглая, а квадратная. Но нигде не указаны размеры и форма, а выясняется это только при установке. И, если плитка уже положена, то сами понимаете... Нужно учесть это до укладки плитки.
Одна часть уходит за стену, вторая остается снаружи. Место, по которому вентилятор крепится к стене, и называется посадочным. Просто я читала на форуме, что посадка у него не круглая, а квадратная. Но нигде не указаны размеры и форма, а выясняется это только при установке. И, если плитка уже положена, то сами понимаете... Нужно учесть это до укладки плитки.
19.05.2022
Ответить
Татьяна Специалист по недвижимости
selena1002, эм, мы его много лет назад ставили, и я уже и не помню и могло поменяться. вроде круглое было, лучше спросить у продавца или самим проверить при покупке
19.05.2022
Ответить
Татьяна Специалист по недвижимости
selena1002, кстати, на чертеже написано диаметр 98,9
19.05.2022
Ответить
selena1002
Татьяна, спасибо, это диаметр мотора, а за мотор вентилятор не устанавливают)). Я думаю, следующая ступенька, без размера которая, это посадка как раз.
19.05.2022
Ответить
Татьяна Специалист по недвижимости
selena1002, а, поняла, на сколько я помню у нас всегда были круглые отверстия, но лучше при покупке уточнить
19.05.2022
Ответить