Проект Люберцы
Авторские проекты дизайнеров.(Посты не по теме будут удаляться!)
Ванная



Прихожая

Реализация

Гостиная



Спальня





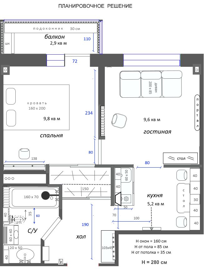
Планировка
Лучший ответ
Катя Самохина
На сколько Вы Оцениваете эту квартиру ?
13.11.2022
Ответить
В ж и к
Я б за такую планировку убила бы🙈 по-другому никак нельзя было сделать? Хоть так
14.11.2022
Ответить
Катя Самохина
В_ж_и_к, Доброе утро! Нет, там трубы проходят ( Это про проём в спальне. А про ванну, уменьшила чтобы место в коридоре было раздеватья, полоска для ключей, и мелочи.
15.11.2022
Ответить
Катя Самохина
В_ж_и_к, у Вас глубина шкафа получается 45 см, не для верхней одежды. И спальню сокращаете без того маленькую .
15.11.2022
Ответить
Катя Самохина
В_ж_и_к, коридор получается длинной сосикой шириной метр. Это по- моему не целесообразно: отнимать место у спальни, чтобы удленить коридор. Человек в коридоре проводит малую часть времени.
15.11.2022
Ответить
В ж и к
Катя Самохина, удлиннить)
Мне лучше большой санузел, чем большой коридор. Хотя здесь вполне себе коридорчик получается для такой небольшой квартиры.
15.11.2022
Ответить
Катя Самохина
В_ж_и_к, С Вами могу согласиться по поводу санузла )) Конечно хочется большего. Но по-моему получилось ничего , посмотрите видео. Это последние ссылка по последнем 2 словам - КВАРТИРА ЛЮБЕРЦЫ.
15.11.2022
Ответить
В ж и к
Катя Самохина, мне спальня большая не нужна. Что в ней делать то? Только спать. А вот санузел 🚾 для меня важнее всего. У меня лично в семье не бывает такого, чтобы санузел был свободен.
15.11.2022
Ответить
Вера
Может это и красиво - сложно оценить. У вас какие то странные фотки, посмотрите тут и другие дизайнеры выставляют работы. Это же визуализация, может вы неправильный угол выбрали для обзора, мне не понравилась именно подача вашей работы.
14.11.2022
Ответить
Катя Самохина
Вера , Добрый день ! Есть видео , последнее словосочетание : Квартира Люберцы. Это не визуализация , а реальные фото ))) И здесь , я , к сожалению, не мастер . Но Вас поняла, Спасибо за отзыв !
14.11.2022
Ответить
Катя Самохина
Мне было очень приятно , если бы Вы посмотрели видео самой квартиры, и написали отзыв, Спасибо !
14.11.2022
Ответить
Олеся
Так много фактур намешано, мельтешит в глазах. Стыковка плитки разного размера и цвета не понравилась. В дверном проёме та же мешанина. Ламинат на стене, очень активная штукатурка, кисти на шторах, яркий диван и все это на 10 м2!
14.11.2022
Ответить
Катя Самохина
Ирина, Добрый вечер ! Если поставить кровать с изголовьем , и повесить картину ( желательно с белым изображением), перебор ламината растворится в приятно теплой атмосфере)))
В любом случае , СПАСИБО за Ваше мнение! Буду совершенствоваться , прислушиваясь к Вашим отзывам и советам ))
13.11.2022
Ответить
Жанна
Квартира с такими убогими метражом и локацией не нуждается в дизайнере и хорошем ремонте. Еще понравился путь из спальни в туалет через всю квартиру. В итоге либо в шкафу ход прогрызать, либо в спальню горшок поставят.
14.11.2022
Ответить
Катя Самохина
Жанна, Добрый вечер ! С Вами в корне не согласна. Что ж , теперь дизайн только для богатых ? А у кого маленькие квартиры , пусть как-нибудь живут. А в плане прогрызания в шкафу к туалету проема - это сугубо личное мировоззрение. Квартира маленькая , и понятно , что рассчитана только на супружескую пару, как , в прочем , и студия.
Спасибо за отзыв , но это больше Ваши отрицательные эмоции к маленьким габаритам.
14.11.2022
Ответить
Жанна
Катя Самохина, Ну что поделать, путь в туалет - ошибка дизайнера, а остальное... Вижу, как глупенькие понаехи вкладываются в ремонт, в штукатурку венецианскую, а не в ликвидную локацию, хороший этаж, в ликвидную планировку или метраж. Скорее всего, молодежь. Поумнеют потихоньку.
Хорошо отношусь к маленьким габаритам. Им нужна простая отделка, как говорится, как в отеле 2зв.
14.11.2022
Ответить
Катя Самохина
Жанна, Вас поняла , Спасибо , у нас с Вами разные взгляды , простите , спорить не вижу смысла .
14.11.2022
Ответить