Расстановка мебели в детской
Интерьерное решение детской комнаты




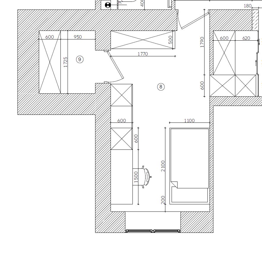
Здравствуйте, нужно выбрать расстановку мебели для детской комнаты. Выбирем между двумя вариантами. На левой стене будет ещё нарост шумоизоляция длиной 2.5 метра. Нужно также обыграть этот момент
Лучший ответ
Виктория (дизайнер)
не знаю комната для мальчика или девочки и на какой возраст. Судя по количество шкафов - для девочки.
А если так - увеличить гардеробную. Так, вы избавитесь от шкафов.
Кровать получится в своеобразной нише. Под окно стеллаж для хранения (может быть и не нужен будет книжный шкаф: стеллаж и полки). На стеллаж подушек кинуть - и будет доп посадочное место (с подружками поболтать).
А входную группу декорировать: поставить зеркало с лампочками, пуфик мягкий (если девочка)
20.02.2023
Ответить
Наталия Замковец
Виктория (дизайнер),
да, правильно поняли, детская для девочки, возраст 8 лет. спасибо, подумаем над этим вариантом
20.02.2023
Ответить
Наталия Замковец
Екатерина, по визуальной части это был бы идеальный вариант, но боюсь будет неудобно сидеть за рабочим местом из-за контрастного света
18.02.2023
Ответить
Екатерина
Наталия Замковец, римская штора, проработать освещение в рабочей зоне,плюс за столом ребенок не сидит целый день. И самый главный плюс для меня) будет хоть какое то но место, а не проход между столом и кроватью 1м. Но это просто мои мысли)
18.02.2023
Ответить
Наталия Замковец
маТРЁХа, спасибо, смущает что в этом варианте при входе сразу взгляд падает на кровать
18.02.2023
Ответить
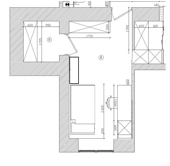
selena1002
Наталия, добрый день! А может быть хватит одной гардеробной? Не надо так ставить шкафы в длинном и узком помещении, а то похоже на ущелье. Девочке всего 8 лет, ей нужно место для игр еще). Можно сделать, как я у меня в одном из проектов: стол идет вдоль окна, с одной стороны ставим кровать, а с другой он переходит в стеллаж:
Здесь ширина помещения 295 см.
У кровати можно поставить стеллаж или что-то декоративное, отгородив ее от двери. В изножье кровати была запланирована тумба с откидной дверцей для постельных принадлежностей, но на фото ее нет:
И колористика оставляет желать лучшего), но идея понятна, я думаю. Таким образом, зрительно расширится помещение и будет место для игр.
Здесь ширина помещения 295 см.
У кровати можно поставить стеллаж или что-то декоративное, отгородив ее от двери. В изножье кровати была запланирована тумба с откидной дверцей для постельных принадлежностей, но на фото ее нет:
И колористика оставляет желать лучшего), но идея понятна, я думаю. Таким образом, зрительно расширится помещение и будет место для игр.
21.02.2023
Ответить
Пользователь
Я за первый вариант, т.к. мне не нравится, когда вся мебель стоит одной полосой. И, кроме того, удобно будет читать, лежа на кровати. Единственное, я бы не делала навесные шкафчики над столом - не люблю, когда что-то висит над головой. Прочитала, что хочется закрыть кровать. Можно использовать ширму - они есть всяких форм и материалов, так что подходят под разный интерьер.
.
Насчет шумоизоляции, разные варианты. Например, можно наклеить фреску или просто акцентные обои, можно покрасить и расписать или повесить картину.
18.02.2023
Ответить
Катя
Мне второй вариант кажется более удобным. Подскажите, в какой программе вы это делаете? Хотелось бы тоже попробовать посмотреть на свою комнату с другой расстановкой
18.02.2023
Ответить
Наталия Замковец
Катя,
это дизайнер нам проектирует, но мы не можем принять решение. Все как то не так
18.02.2023
Ответить
selena1002
Катя, добрый день! Дизайнер пользуется программой Архикад. Это профессиональная программа.
21.02.2023
Ответить
selena1002
Катя, ее можно скачать в Инете), и существует же множество программ попроще.
21.02.2023
Ответить
Катя
selena1002, извините за глупый вопрос - можете мне самую простую посоветовать? Заранее огромное спасибо!
21.02.2023
Ответить
selena1002
Катя, попробуйте вот эту:
«Планоплан» - 3D планировщик квартир, бесплатная онлайн программа для создания интерьера помещений, расстановки мебели и создания виртуальных туров (planoplan.com)
21.02.2023
Ответить
Кама
"нарост" можно сделать акцентной стеной, по краю сделать подсветку.
Во втором варианте меньше мест хранения, зато больше свободная игровая площадь. Что лучше - надо понимать возраст ребёнка, его потребности
18.02.2023
Ответить
Кама
Наталия Замковец, тогда определиться хватит ли ей тех трех шкафов. На мой взгляд, достаточно, тк гардеробная же отдельно. Если хватит, то точно второй вариант.
18.02.2023
Ответить
Наталия Замковец
Кама, там ещё шкаф возле гардеробной, треть для вещей места хватает
18.02.2023
Ответить
Наталия Замковец
Кама, был вариант гипсовых реек
Или под дерево
По типу такого
Но оба этих варианта кажутся не очень как для детской. Тяжело представить как это впишется в детскую комнату
Или под дерево
По типу такого
Но оба этих варианта кажутся не очень как для детской. Тяжело представить как это впишется в детскую комнату
18.02.2023
Ответить
Mary V
я бы в 1 варианте зеркально отразила - кровать налево, стол направо+освещение рабочей зоны, тк сидя за столом ребенку легко повернуть голову налево и посмотреть, кто в комнату заходит, и кровать напрямую из коридора не просматривается
18.02.2023
Ответить
Наталия Замковец
Mary V, хотелось бы оставить правильное расположение стола по отношению к окну. Что бы свет падал правильно
18.02.2023
Ответить