Проект квартиры в Питере 60 м2
Авторские проекты дизайнеров.(Посты не по теме будут удаляться!)Всем доброго дня !Хочу показать квартиру 60 м2 г. Санкт-Петербург для молодой пары .
Запрос был на создание минималистичный интерьер с акцентами. Деталями, добавляющие уют. Практичность, лаконичность и эргономичность.
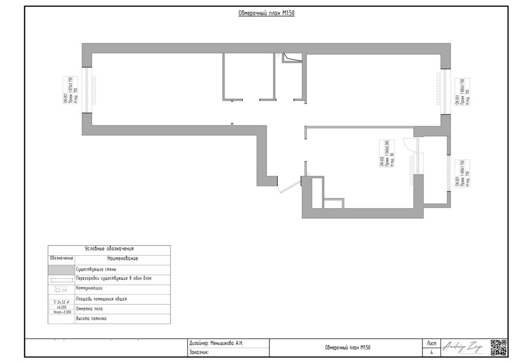
Планировка от застройщика дано:
-самой проблемной частью тут являются короба на кухне
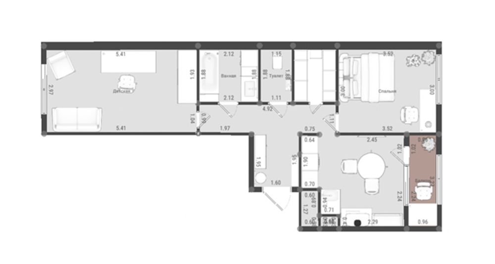
Такое предложение планировки было от заказчиков:
-так как нет полных знаний они ставят раковину ближе к стояку , с одной стороны верно, но это усугубляет обстановку с коробами ,делая лесенку из мебельного гарнитура
-нет полных знаний какие решение по перепланировке , какие есть возможности, чтобы решить нюансы и вписать все необходимое
Что предложили мы:
-сдвинули перегородку между прихожей и кухней и вписали полноценный шкаф, и дальше за счет мебели скрываем эти короба
-остальные моменты сделали учитывая пожелания
Итак перейдем к визуализациям)
У нас получилась очень интересная контрастная прихожая , с одной стороны может показаться что она вся такая насыщенная по цвету , а с другой светлые стены создают контраст и балансируют насыщенный цвет .

Просторная кухня :
Спальня:
Гостиная.

Ванная:
Заказчики не хотели ставить стеклянную перегородку , мы предложили решение как встроить однорядный карниз и сшить шторку из водоотталкивающей ткани .

Санузел:
Данные обои были пожеланием от заказчицы и мы их вписали )
Спасибо за внимание,заходите ко мне на страничку в инстаграм 👉 Анастасия Заря и конечно заказывайте проект своего дома)