Бежевая евротрёшка в стиле минимализм
Авторские проекты дизайнеров.(Посты не по теме будут удаляться!)
Сегодня предлагаем прогуляться по новой квартире, которую студия дизайна «Печёный» оформляла для семейной пары с дочкой. Заказчики хотели видеть интерьер двухкомнатной квартиры в стиле современный минимализм, причём, муж представлял себе тёмный интерьер, а жена - светлый. И угадайте, какой в итоге получился проект? Естественно, прекрасный пол победил, и квартира вышла в очень светлых и нежных оттенках. :) И хоть все комнаты плюс-минус в одном цвете, каждая из них имеет свой характер и свою горстку изюма. В общем, давайте скорее смотреть, что у нас получилось!

Интерьер в современном стиле минимализм вполне допускает фотообои на стенах. Лаконичность и простота обстановки, игра фактур и текстур, минимум вещей, каждый предмет функционален и на своём месте - всё это свойственно современному стилю в целом и минимализму в частности. И всё это есть в нашем интерьере гостиной. Что касается акцентной стены за диваном, то нам не хотелось использовать в качестве украшения ни рейки, которые есть теперь почти в каждом доме, ни другие виды объёмных стеновых панелей. А вот фреска со спокойным рисунком отлично и, что важно, гармонично вписалась в этот спокойный по цветовой гамме интерьер.
Стена с телевизором тоже по-своему интересна. Подсветка за панелью создаёт нарядный вид при минимальных затратах, так что дарим идею. :)

Отсутствие фурнитуры, красивый мраморный фартук, столешница из искусственного камня, изысканная цветовая гамма - всё в лучших традициях стиля минимализм. Мы умышленно отказались от встроенного холодильника, чтобы максимально увеличить его вместимость. Нижний ярус шкафов сделали очень светлым, так кухня смотрится более интересной.
Полуостров возле столовой зоны отделяет кухню от гостиной и является дополнительным местом для хранения. К тому же его можно задействовать как барную стойку, что тоже очень удобно.


Нашей паре настолько понравилась идея с дизайнерскими фотообоями, что они решили повторить её и в своей спальне. :) Рисунок, понятное дело, мы выбрали другой. Цветовая гамма в спальне похожа, но всё же отличается от гостиной - более тёплая и светлая.
Заказчики хотели сделать гардеробную в спальне, но без наращивания стен, а просто поделив пространство шкафом. Нам получилось осуществить эту такую задумку. Причём шкаф здесь не совсем обычный: створка под нишей возле кровати открывается, а все остальные панели фальшивые. Зато с другой стороны…

Зато с другой стороны - это настоящая гардеробная с массой мест для хранения. Никаких шторок или раздвижных дверок мы не делали, чтобы не добавлять лишних элементов в наш лаконичный и минималистичный дизайн интерьера в современном стиле.
При недостаточной освещённости любой, даже самый прекрасный дизайн может показаться плоским и неинтересным. Если вы делаете ремонт сами, без помощи дизайнеров, мы советуем задуматься о различных сценариях освещения заранее. Рабочая точечная подсветка на потолке, люстры, различные торшеры, бра и настольные лампы помогут создать множество сценариев освещения, которые выгодно подчеркнут идеи интерьера, помогут создавать различное настроение. Кстати, если вам не нравятся точечные светильники, то можно их заменить на встроенную линейную подсветку, заодно, она очень в духе современной лаконичной стилистики.




Оформление стен фресками в каждой комнате стало настоящей фишкой нашего минималистичного дизайна в современном стиле. И так как в каждой комнате у обоев свой рисунок и своё настроение, то это не смотрится перебором и не надоедает. Комнату для дочки заказчики тоже решили оформить в светлой бежевой гамме, разбавив её нежным розовым оттенком.
Шкафы в комнате изготавливались под заказ. Мы старались максимально продумать места под хранение: в ТВ-зоне тумба и шкаф с открытыми полками предназначен для хранения игрушек, а шкаф с зеркалом возле кровати - для одежды.


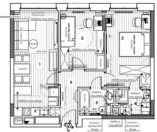
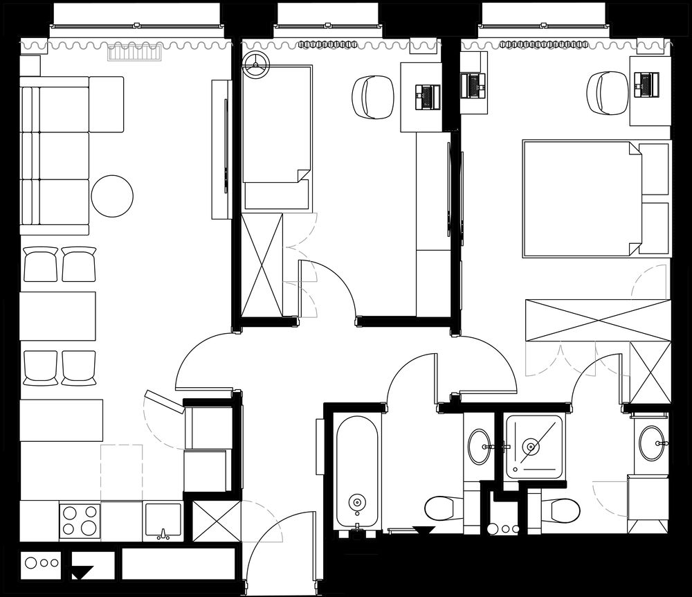
Изначально по плану здесь был только один санузел. Однако мы «захватили» часть прихожей и получили два полноценных санузла: в одном из них душ, а во втором ванна.
Здесь выдержан не столько стиль современный минимализм, сколько просто более уютная и спокойная современная версия: вроде бы те же лаконичные формы, но за счёт цвета и деревянных фактур всё смотрится мягче.


Здесь в большей степени выражен современный минимализм в интерьере, и этому способствуют более холодный оттенок глянцевой плитки и чёрная графичная окантовка у дверок душевой кабины. Площадь здесь, как и у ванной комнаты, примерно четыре квадрата. Возле раковины в большом шкафу прячутся стиральная и сушильная машинки. Ну и, конечно, масса полочек, на которых можно прятать запасы бытовой химии и всяких других нужностей. :)



Пример компромисса в небольших дозах - муж был услышан и часть стены покрасили в чёрный цвет. :) Кстати, на мой взгляд, смотрится чёрный цвет в коридоре очень классно! Отлично вписывается в стилистику, и мне даже немного жаль, что тёмных оттенков нет в других комнатах. :)
Что касается обстановки в прихожей, то всё очень лаконично: огромное зеркало, распашной шкаф, комод, картина. Как уже упоминали, мы уменьшали прихожую, чтобы получить два санузла. Более того, в том месте, где расположено зеркало, на самом деле выступ, который получился из-за холодильника и духового шкафа на кухне. Так что возникшую рядом нишу мы превратили в шкаф для одежды.
Вот такой у нас получился минималистичный и светлый интерьер 2-комнатной квартиры в современном стиле для семьи с ребёнком. Общая площадь евротрёшки 65 квадратов. Мы немного изменили изначальную планировку: уменьшили прихожую, чтобы получить два санузла.
Что касается отделочных материалов, то полы во всём проекте - пробковое покрытие, а плитка уложена лишь в душевой. Потолки в квартире натяжные. Все стены оклеены обоями под покраску (мы использовали матовую водно-дисперсионную краску для стен и потолков Dulux Professional Bindo 7). В зоне гостиной, в спальне и в детской одну из стен оклеивали дизайнерскими обоями-панно - в каждой комнате со своим рисунком.
Как вам проект? Поделитесь впечатлениями!
Таша, думаю, что так будет понятнее