Перепланировка в трешке П44
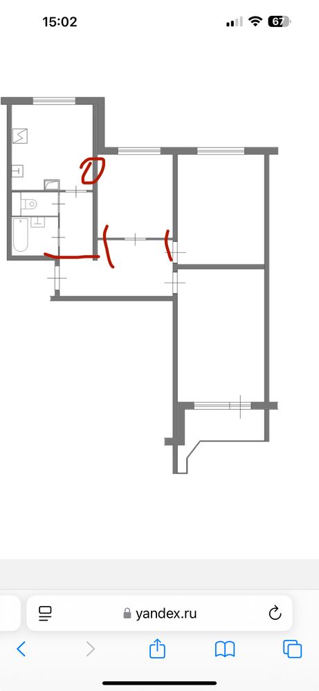
Интерьерное решение жилых помещений.Девочки ,кто делал перепланировку в п44 ? Хотим увеличить ванную за счет коридора ,убрать стену где маленькая комната (сделать там гостиную и вход на кухню
Лучший ответ
Елена Д
В этой планировке панель и стена такая несущая (между кухней и комнатой). Надо укреплять проем и согласовывать, так как ширина проема зависит от этажа даже (насколько я помню).
29.01.2025
Ответить
Ирис
Стена между кухней и комнатой несущая, если делать проем, то укреплять , и сначала согласовывать проект.
26.01.2025
Ответить
Ольга
Видела на циане именно такую перепланировку. Ну, на любителя . Всё-таки в условии ограниченных финансов люди ищут трешку для семьи из 3-4 человек, а значит, комнаты должны быть изолированные.
25.01.2025
Ответить
Анастасия
Если не будете переносить мокрые зоны(ванна,туалет) и стены не несущие,то можно так сделать. Согласование пройдёт. Можно и без согласования, но тогда,если захотите продавать квартиру,то будут проблемы, особенно с ипотекой. Банк завернет сделку, т.к. для ипотеки делается Отчет об оценке, в нем будет прописываться рыночная стоимость квартиры и полное её описание с фотографиями и документаними. Соответственно оценщик укажет,что у вас несогласованная перепланировка.Либо возвращать в исходное состояние ,либо согласовывать придётся официально. Пишу вам это на всякий случай,для информации. Работаю в этой сфере.
25.01.2025
Ответить
Странное чувство
Анастасия, не факт, я купила квартиру с перепланировкой, просто в техпаспорте была запись про неузаноненную перепланировку, в сбере ни слова не сказали.
25.01.2025
Ответить
Анастасия
Странное чувство, вам повезло, и Сбер может иногда пропустить такую сделку,а вот ВТБ, например, досконально проверяет такое и может "докапаться".
25.01.2025
Ответить
Татьяна Специалист по недвижимости
не во всех домах этой серии можно так проход сделать
25.01.2025
Ответить
Whiteeye
Мы сделалт почти так, т. Е снесли стенку маленбкой клмнаты и получили большую гостиную, ванную и туалет расширилт за счет коридооа, вход на кухню просто чуть пкренесли. Из комнаты вход получается неудобный, т. к в этой гостиной тогда сплошные проходы: на кухню, в коридор, в комнаты.
25.01.2025
Ответить
Наталья
Соседи сносили стену, где маленькая комната и делали большую гостиную. Классно получилось у них
25.01.2025
Ответить
Королева мать
Стенку в маленькую комнату очень много кто сносит, у моих родителей так. Ванну за счет коридора тоже не проблема. А вот вход в кухню перенести геморрой. Там несущая. Можно конечно, если сильно надо, но дорого и сложно.
25.01.2025
Ответить
Диана
Ванную за счет коридора официально увеличить нельзя. Это изменение мокрой зоны. Любая жалоба - заставят переделывать обратно.
Ну и узаконить не сможете пкрепланировку, потом продать квартиру можно будет ток людям за наличку. Если кто-то захочет купить в ипотеку, не продадите, там всё строго
25.01.2025
Ответить
Королева мать
Диана, мокрую зону нельзя переносить. Двигать вокруг нее гипсокартонные стены никто не запрещает
25.01.2025
Ответить
Алла
Диана, почему нельзя? Су нельзя увеличивать за счет жилых помещений и кухни. За счет коридора возможно. И согласуемо. И на счет перепродажи квартиры: сама не пробовала, конечно, но люди только так продают квартиры с неузаконенными перепланировками ипотечникам. В группах во ВК пишут об этом.
25.01.2025
Ответить
Оставшиеся комментарии доступны после регистрации
Зарегистрируйтесь и получите полный доступ ко всем функциям сайта.