Расстановка мебели в детской
Добрый день, решили переделать комнату для 2 девочек 10 и 15 лет. Предложили такой дизайн , но смущает, что вторая кровать почти вплотную выходит к столу и сидеть будет неудобно. Можно ли как то изменить данную расстановку?Нужно 2 отдельные кровати, 2 шкафа, 2 рабочие зоны и обязательно ТВЗаранее все спасибо.



Лучший ответ
Алена
Мама девочки (1 год)
Уфа
А почему нельзя сделать так, и с противоположной стороны еще один шкаф, полку по середине эту можно не делать, а сделать прости типо перегородки
0
13.07.2025
Ответить
Мама девочки (1 год)
Уфа
Nata, если кровати по два метра хотите то да, но есть идеи интересней чем вам предложили, посмотрите лучше в интернете
0
13.07.2025
Ответить
Москва
Nata, добрый день! Надо же, как похоже на мою детскую, которую я здесь выкладывала в январе). Только там комната подлиннее в зоне кроватей и нет проблем с близостью стола:
Детская для двоих мальчиков. - 8 ответов | форум Babyblog
Зато здесь комната немного пошире.
Если шкаф сделать немного покороче, то второй стол можно поставить с другой его стороны. Под тв тогда лучше поставить комод повыше, чтобы в него больше уместилось. Вторую кровать можно вплотную к столу. И не кровати, а диванчики, как в моей детской).
Ящик для белья в красной рамке:
Был еще такой вариант:
И еще вариант: шкаф можно разделить на 2, а стол поставить между ними.
Ящик для белья в красной рамке:
Был еще такой вариант:
И еще вариант: шкаф можно разделить на 2, а стол поставить между ними.
0
14.07.2025
Ответить
Мама троих (15 лет, 8 лет, 1 год)
Подольск
selena1002, а какая ширина и длина комнаты у вас?
У меня комната 15м (ширина 4м, длинна 3,65) на двоих мальчиков сейчас. И так все несуразно стоит, мне не нравится.
0
19.07.2025
Ответить
Москва
Анна , добрый день! Вот такие размеры:
У Вас комната более квадратная. А стена с окном какого размера? Если нужна помощь с расстановкой, обращайтесь).
У Вас комната более квадратная. А стена с окном какого размера? Если нужна помощь с расстановкой, обращайтесь).
0
19.07.2025
Ответить
Мама девочки (16 лет)
Москва
ТВ на поворотном кронштейне, кресла бескаркасные (кресло-мешок) при просмотре ТВ выносятся в центр комнаты.
Как вам?
0
14.07.2025
Ответить
Ольга
Юля, однозначно надо так расставлять и шкаф сделать не единым полотном , а единым целым со столом и там около кровати интересно можно сделать. Но это все исключительно на заказ.
0
14.07.2025
Ответить
Мама девочки (16 лет)
Москва
В_ж_и_к, Конечно, на заказ. В таких условиях когда надо использовать каждый см, и нужно делать на заказ. Если человек обращается к дизайнеру, то чаще всего заказывают мебель по инд размерам.
0
14.07.2025
Ответить
Мама двоих (15 лет, 13 лет)
Руза
В_ж_и_к, в вашем варианте детям будет тесно вдвоем за столом.
0
15.07.2025
Ответить
Санкт-Петербург
Nata, у вас на картинке в верхнем левом углу шкаф. Вместо него кровать. То есть одна кровать будет у окна.
0
13.07.2025
Ответить
Анастасия, ещё девочки вечерами смотрят ТВ, куда его поставить при такой расстановке
0
13.07.2025
Ответить
Санкт-Петербург
Nata, эта проблема мне совсем не понятна. 10 и 15 лет - это разные интересы. Проще каждому на своем планшете смотреть, что хочет.
0
13.07.2025
Ответить
Ольга
Nata, какое сейчас тв? У меня до сих пор места под тв пустые в комнатах. Все они в гаджетах и компах
0
14.07.2025
Ответить
Мама девочки (3 года)
Москва
Комната у вас очень большая, но выглядит тесно с мебелью. Шкаф надо от окна убирать в другой угол или делать меньше, нужен детям двухметровый шкаф в потолок? Я бы плясала от шкафа . у нас большая комната ваших размеров, но другой формы, влезла большая кровать, комод, диван, тумба с ТВ , шкаф большой во всю стену, типа встройки и рабочий стол со стеллажем.
Используйте принцип расстановки, вся высокая мебель не должна быть видна от входа, те в вашем случае, это шкаф по стене справа от двери во всю стену , а дальше расставляете остальную нужную мебель. Кстати, тв они как смотрят? Надо какое то кресло или диванчик
0
13.07.2025
Ответить
Мама двоих (15 лет, 13 лет)
Руза
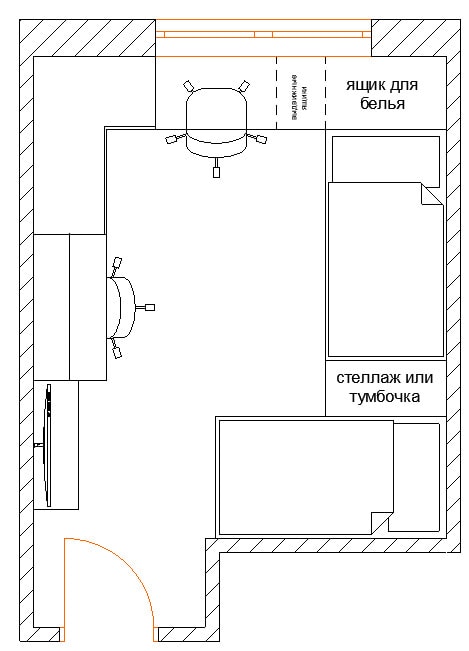
Или так:
У каждого ребенка образовалась своя зона, где есть кровать, шкаф, стол.
У каждого ребенка образовалась своя зона, где есть кровать, шкаф, стол.
0
13.07.2025
Ответить
Мама двоих (4 года, 2 года)
Рязань
Почему не использовать двухъярусную кровать? Места больше останется под какой-нибудь туалетный столик или под пуфики, чтобы сидеть читать/в телефоне зависать
0
13.07.2025
Ответить
если кровати по 1900 то можно их и по стене поставить