Планировка детской
Интерьерное решение детской комнатыКакая расстановка мебели в детской (мальчик подросток) лучше?
Я специально уменьшила размеры шкафов, потому что ему реально нечего там хранить (а платить за пустые шкафы не хочется)
У окна - мягкий подоконник и стеллажи, типа такого



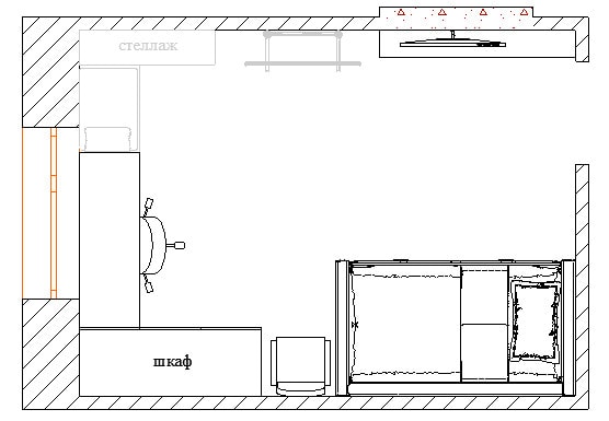
А вот сама комната (14 м), вопрос основной - как комфортнее расположить кровать.
1.

2.

Лучший ответ
коала
Я за второй вариант, где кровать подальше от окна. Не люблю спать головой в окно, от батареи жарко, откроешь - дует
29.07.2025
Ответить
selena1002
Добрый день! А какая высота подоконника в комнате? Если она больше, чем 50 см, то лучше взять вариант такого плана:
И подростку вряд ли нужна такая лежанка на подоконнике, на мой взгляд). У обеих планировок один недостаток: мало места для игр или творчества. Когда планируешь для детей комнату хорошо бы знать и их увлечения. Например:
Если скомпоновать мебель с одной стороны, то останется свободное место, например, для шведской стенки с турником, боксерской груши или баскетбольной корзины. Я сделала расстановку у окна так, как в одном моем проекте:
Детская для двоих мальчиков. - 8 ответов | форум Babyblog
(И советую взять не кровать, а диванчик-кровать с ортопедическим матрасом).
Серым цветом идет шведская стенка и вот такая инсталляция:
Только покороче и справа у нее стеллаж. Здесь много вариантов для расстановки).
И подростку вряд ли нужна такая лежанка на подоконнике, на мой взгляд). У обеих планировок один недостаток: мало места для игр или творчества. Когда планируешь для детей комнату хорошо бы знать и их увлечения. Например:
Если скомпоновать мебель с одной стороны, то останется свободное место, например, для шведской стенки с турником, боксерской груши или баскетбольной корзины. Я сделала расстановку у окна так, как в одном моем проекте:
Детская для двоих мальчиков. - 8 ответов | форум Babyblog
(И советую взять не кровать, а диванчик-кровать с ортопедическим матрасом).
Серым цветом идет шведская стенка и вот такая инсталляция:
Только покороче и справа у нее стеллаж. Здесь много вариантов для расстановки).
30.07.2025
Ответить
Zanna
Я терпеть не могу открытые полки, как не переставляй вещи в них, всемравно бардаком выглядит и пылища на раз два скапливается.
29.07.2025
Ответить
Water Lily
У нас как на 2-ом примере кровать расположена. Из соображений: приятнее просыпаться и видеть окно, чем стену 😃, визуально когда входишь, кровать сбоку, не сразу бросается в глаза, как в 1-м случае, ну и подальше от окна ( можно открывать проветривать и не бояться, что надует) и подальше от батареи ( зимой будет жарко рядом спать)
30.07.2025
Ответить
Ольга
Я за вариант 2. И мне кажется, стол нужен побольше. Комп поставит и тетрадку положить некуда.
30.07.2025
Ответить
Ольга
У моего сына кровать стоит как во втором варианте. У нас было 4 варианта расстановки, я дала выбрать ему самому
30.07.2025
Ответить
Анна
Вторая лучше. На первой - голова к батарее и вперед ногами к двери. Не очень то приятно так спать. И комната неопрятно смотреться будет.
А во втором варианте уютное располодение кровати. Просыпаешься или засыпаешь глядя в окно
29.07.2025
Ответить
Олеся
Я за вариант 2. Все таки визуально есть зонирование на спальную и рабочую зоны: спальня темнее, рабочая светлее. Стеллажи и чил зона у окна - отличное решение. Открытые полки - нормальная тема.
29.07.2025
Ответить