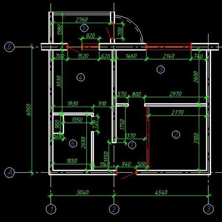
наша планировка из 1 комнаты сделали 2. Общая площадь квартиры 42 кв м.
Перепланировки стен. Согласование перепланировки квартир и нежилых помещений.

Получилась детская 12 кв м
и наша спальня с декоративными окнами в детскую 8,6 кв м
Спальня сейчас непосредственно часть коридора, но потом она будет отделена от него вот такой раздвижной дверью,и в таком же стиле будут вставлены окна в гпипсокартоновую стену между двумя комнатами.

Julisa
Аня, здравтсвуйте. Очень понравилась идея с вашей перепланировкой, дело в том, что у нас точно такая квартира и тоже 42 м2, думаю, взять ее на вооружение, если вы непротив).пож. выложите потом результаты ремонта. Очень интересно. Удачи вам и терпения, по себе знаю, что ремонт-непростое дело!!!!))))
29.03.2011
Ответить
анна
Здравствуйте,Спасибо! мы по сути 3 недели всего в ней живем. Очень много недоделок пока. Уже приехала перегородка,как на фото. Думаю ее установим на следующих выходных и фото выложу. Вообще,мне очень нравиться то,что мы сделали. ОООчень удобно получилось. Я весь день в детской провожу с ребенко( там где есть окно),а с мужем ночью спим уже у себя. Аринка с утра просыпается и зовет или ко мне приходит будить. Все друзья говорят,что смотриться гораздо лучше чем однушка. Я здесь на бб у двух девочек уже видела такой же вариант.
29.03.2011
Ответить
Варела
Аня, а детская же ближе к окну. смотрится больше. или на плане еще вместе с коридором ваша спальня. просто мы что то подобное планируем
13.09.2010
Ответить
Варела
ага, спасибо огромное, теперь все понятно. только у вас шкафов почти не будет, куда все вещи девать будите?
13.09.2010
Ответить
анна
один шкаф длиной 1,7 м шириной 43см будет напротив нашей комнаты, еще один не нарисован справа от входной двери 43сми на 40, и комбинация из шкафов слева от входной двери.+ в детской шкаф слева от двери. Думаю нам хватит. Еще возможно будет какой-то комод в спальне.
13.09.2010
Ответить
наталья
Аня,здравствуйте!Мне очень понравилась перегородка на последней фотографии!!!!! Мы планируем поделить длинную узкую комнату (сделать две детских-дочери и двойняшкам).Мне нужна перегородка типа вашей-полупрозрачная..Ума не приложу где искать...в салонах дверей у нас в Челябинске на меня смотрят как на ненормальную....может искать у производителей окон? Я знаю,что это не дешево,может сориентируете по ценам? Спасибо!
13.09.2010
Ответить
анна
Я вас понимаю, у меня мама тоже ремонт делает, только в Ростове, так я ей как чего-нибудь насоветую , на нее тоже как на ненормальную смотрят. Вот последний раз она искала широкий плинтус и ее уверяли что такого в природе нет!! Насчет двери,я тоже сначала в окнах хотела делать, тк хотела сделать и основную перегородку между комнатами не из гипсокартона делать,а стеклянными практически до пола. Но муж не одобрил. Попробуйте в окнах проконсультироваться, у них ведь есть раздвижные механизмы в окнах. Мы считали 2 окна в "окна veka" 1м на 40 см как раз с перегородочками, чтоб с дверью сочеталось, так вот 1 окно вышло 20 тр. 10 тр само окно и почему-то аж 10 тр перегородочки. Может в какой-нибудь менее разрекламированной фирме посчитать. Еще можно пластик подобрать максимально похожий внешне на дерево, и тогда перегородка более уютно будет смотреться. По цене может и недешево выйдет, но мне все равно кажется, что дешевле, чем из дерева заказывать и уж точно дешевле более большой квартиры, чтоб у всех была отдельная комната.
13.09.2010
Ответить