Дом для Елены готов. Фото строительтсва "от и "до"
Строительные компанииВводные данные
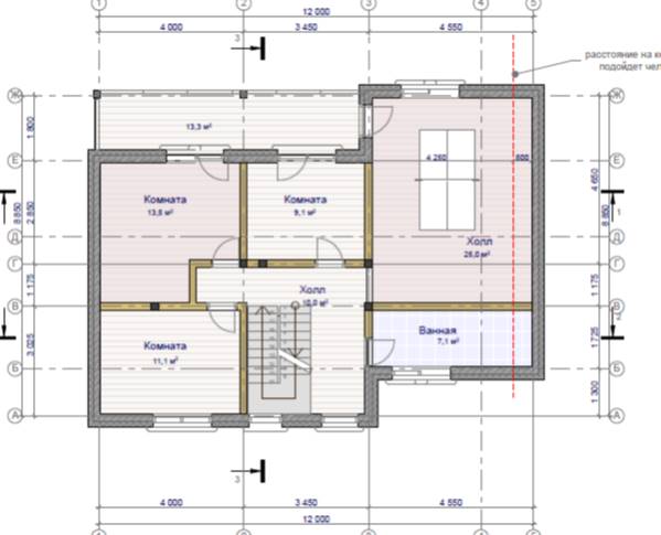
Дом 186 кв.м.
Построен из бетонных блоков в комплектации "под чистовую отделку"
Срок строительства 4 месяца
Итоговый бюджет стройки - 4 500 000
Проект индивидуальный, сделан на основе проекта "Швейцария" с учетом пожеланий клиентки. В доме предусмотрено размещение бильярда и теннисного стола.

*****
Добрый день! Хотим дом строить. Вы можете сориентировать по стоимости? Куда можно прислать проект?
06.08.2016
Ответить
Лена
Добрый день! Ольга, можно ли узнать приблизительную стоимость такого домика
дом 8/9 из клееного бруса 240/190 и 240/240
дом 8/9 из клееного бруса 240/190 и 240/240
24.05.2016
Ответить
Лена
Ольга, а вот такой дом? Без утепления. Каркас с террасой, несущие стены и крыша не утепленная.
25.05.2016
Ответить
Ольга. Строю дома www.kamen-dom.ru
Лена, мне тут не удобно смотреть, пришлите пж. на почту olubimova@bk.ru
25.05.2016
Ответить
Nata
Ой как хочууу!!!! Какую красоту делаете!!!! Очень хочу дом, но вы под ипотеку не подойдёте(((
05.02.2016
Ответить
Ольга. Строю дома www.kamen-dom.ru
Ипотека только на готовое жилье, есть кредит на строительство, но % высокие. Лучше строить этапами мелкими.
05.02.2016
Ответить
Nata
Было б где жить, строились бы...сьемная дорого, а так в Подольске строите, если что? На 2500 что можно соорудить?
05.02.2016
Ответить
Ольга. Строю дома www.kamen-dom.ru
Строим в приделах 300 км от МКАД, за 2,5 -100 м под чистовую отделку, как этот дом
05.02.2016
Ответить
Ольга. Строю дома www.kamen-dom.ru
Все точно так же как на фото в этом посте. Без коммуникаций
05.02.2016
Ответить
Nata
А примерно во сколько коммун-ии выйдут,по вашему опыту, на какую сумму расчитывать дополнителтьно
05.02.2016
Ответить
Ольга. Строю дома www.kamen-dom.ru
До 1 млн, в зависимости от оборудования и жадности местных властей.
05.02.2016
Ответить
Катюша
Ольга, очень красиво и здорово получилось!!! Мы хотим построить дом на месте старого. Вы занимаетесь? Бюджет 1500000 р. помогите советом, может у вас есть домик на наш бюджет и бригада?
23.12.2015
Ответить
Ольга. Строю дома www.kamen-dom.ru
У Вас будет еще снос и вывоз, спалить его не получится, на фото видно близко соседние дома. Один вывоз получится около 100-150 тыс. Один большой контейнер 10 тыс. на дом не меньше 10 штук их будет еще работа по разбору около 50 тыс. Если фундамент нормальный (что бывает редко) и на нем можно будет строить, то в 1,5 млн можно будет небольшой домик построить
23.12.2015
Ответить
Ольга. Строю дома www.kamen-dom.ru
Точно, ошиблась, не в тот проект посмотрела. Две заказчицы Лены, дома похожи, торопилась...
Общая площадь дома: 186,5 м2
Площадь 1-ого этажа 97,4 м2
Площадь 2-ого этажа 89,1 м2
07.10.2015
Ответить
Любовь
Просто это оказался дом друга моего мужа, Сергея. Все удивляюсь, как же тесен мир :)))
07.10.2015
Ответить
Ольга. Строю дома www.kamen-dom.ru
Как здорово! Значит можете оставить отзыв. Лену прошу это сделать, но ей регистрироваться тут не хочется.
07.10.2015
Ответить
Любовь
К сожалению, живьем его еще не видела, только на фотках. Все никак в Данилово не соберемся. Да и писать я не мастер (по моему дневнику заметно:) Но, если побываю , то может попробую написать.
07.10.2015
Ответить
Лапкатапка
здравствуйте.скажите-а что вошло в комплектацию...включены ли строительные работы в стоимость или это только за материалы...где посмотреть проэкты. в каких городах работаете
06.10.2015
Ответить
Ольга. Строю дома www.kamen-dom.ru
Все что Вы видите, все вошло в комплектацию, материалы и работа и доставка - все.
Подробно ее изучить можно у меня на сайте www.kamen-dom.ru в разделе комплектация "под отделку". Там же смотрите проекты, или можем сделать проект с "0" на основе Ваших пожеланий. Работаем в приделах 300 км от МКАД, для Воронежа исключение. У Вас тоже могу строить, у меня много родственников у Вас, проблем с организацией процесса не будет. Будет небольшое удорожание на доставку.
07.10.2015
Ответить
Ольга. Строю дома www.kamen-dom.ru
Вот такой, называется "Женева" 120 кв.м 2 750 000
04.10.2015
Ответить
Оставшиеся комментарии доступны после регистрации
Зарегистрируйтесь и получите полный доступ ко всем функциям сайта.