Продам по переуступке 1 комн кв на 12 и 15 этажах в ЖК Ривер-парк, г. Королев 15 км от МКАД цена 330
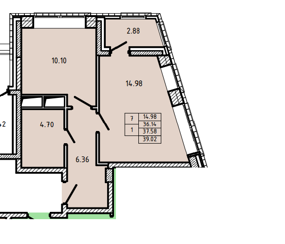
Продам1-комнатная квартира г. Королев (15 км от МКАД) ул. Советская дом 7. Сдача объекта в декабре на 2016 года. На берегу реки Клязма, парковая зона, в 4 км от центра, выезд на Ярославское шоссе, 10 мин пешком платформа "Фабрика 1 мая", огороженная территория, гостевая парковка, охрана, видеонаблюдение, консьерж, магазины, аптека, медицинский центр, стоматология. Общая площадь 39 кв.м, комната 14,98 кв.м, кухня 10,10 кв.м, 12/17 и 15\17, от застройщика все квартиры такого типа проданы, черновая отделка, электроразводка внутри квартиры, канализация, водоотведение, счетчики на воду, гидроизоляция, межкомнатные перегородки, домофон, системы телефонизации и телевидения, теплоснабжения). Возможна ипотека 89263889367 Татьяна.

