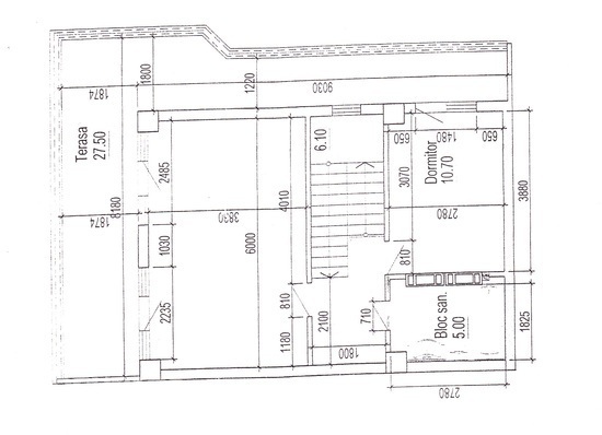
Вот такая необычная планировка...
Собираемся начинать ремонт, а у меня даже мыслишки никакой в голове по поводу дизайна, хотя как видите здесь есть где фантазии разгуляться. Из того, что не видно на проекте - на втором этаже купольный потолок. Планируем на первом этаже гостинную, а на втором спальни (одна наша, другая детская).
Вот сижу и думаю что с этим всем делать и ума не приложу.
Хотим переехать к маю.
Эххххх, хоть бы немножко фантазии во мне было...
Может подкинете какую-никакую идейку, чтоб хоть оттолкнуться можно было от чего-то...
И вообще, как вам квартирка?
Этаж 1:

Этаж 2:

Ритатуля
Я жила в двухуровневой квартире. Скажу одно для пожилых и маленьких это не самый лучший вариант. Особенно за малыми глаз да глаз. У нас была очень крутая лестница. В общем заградительные мероприятия будут очень к месту. А так квартирка очень милая.
29.05.2012
Ответить
Ириска
Ну, пожилых у нас в доме нету, а маленькие очень быстро вырастут. Просто это время - пока они ещё неуклюжие и бесстрашные, нужно больше присмотра за ними, а то лестница очень притягательна! ))))
29.05.2012
Ответить
Людмила
У меня есть мечта... Может она когда-нить и осуществится...
Хотим вообще дом...
На первом этаже хочу кухню перетекающую в столовую и гостиную... Кухня чтоб была на возвышенности, как бы на ступеньке. Комнату для гостей, душ и туалет.
На втором этаже хочу одну комнату нашу, побольше, и две детских, поменьше. Кабинет для мужа. Ванная с джакузи ну и туалет....
Эх... мечты....
03.02.2012
Ответить
Ириска
Ох, блин, джакуууууууузииии.... дааааааааа...........
Жаль, что у нас тут нет места.
И кухня с гостинной тоже мечта. А тут ну вообще никак!
03.02.2012
Ответить
Ириска
Санузлы вроде нормальные так, но на деле туда особо так ничё не всунешь.
А насчёт кухни-гостинной, то кухня там напротив гостинной через лестницу и туда никак не подведёшь газ и канализацию. Мы уже все варианты перевертели, тоже над этим думали.
04.02.2012
Ответить
lub@nya
Клевая квартира или это дом?!))) Поздравляю))) у меня проект дома тоже лежит, он уже выстроен, а что внутри делать ума не приложу! вот тоже надо найти человечка, с кем бы посоветоваться))))
03.02.2012
Ответить
lub@nya
ммм, мечта прям)))) да, надо все сделать так, чтоб аж ух!!! а не хотите с кем-нидь посоветоваться, с дизайнером например! посмотри журналы новые по дизайну, в инете много информации)))) у нас вот дом из оцилиндровки, внутри отделки не будет, вот и думаю чего да как сделать)))
03.02.2012
Ответить