Помогите с расстановкой мебели, пожалуйста!
Интерьерное решение детской комнатыДевочки всю голову сломала, может у кого идеи появятся, помогите в расстановке мебели в детской.


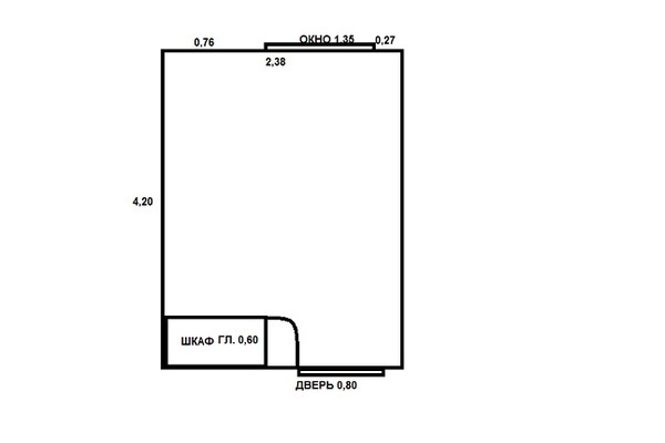
Нужно поставить две кровати 80х170 и большой стол, на нем будет компьютер и чтобы двое детишек могли рисовать и т.д. одновременно, небольшой стелаж для книг. У меня только такой вариант, может кто-нибудь свежим взглядом посмотрит и предложит поинтересней варианты. Мебель будет на заказ, поэтому можно и нестандарт

Lika
Я бы сделала почти, как у вас. Только шкаф уже нужен (45 см). Попробовала с вашими размерами разместить 2 кровати и шкаф, получается к шкафу не подойти. Я бы поставила угловой стол, в угол стола компьютер, по краям рабочее место. Стулья можно установить на колесиках))) У нас похожая комната с сестрой была. Еще можно одну кровать поставить вдоль окна. Фотки опять не грузятся сюда, поэтому выложила 2 плана по ссылкам:
http://s52.radikal.ru/i138/1301/a1/a8c214c8b96c.jpg
http://s16.radikal.ru/i190/1301/c2/90c69e2bf358.jpg
22.01.2013
Ответить
Евгения
Шкаф уже есть, он практически встроеный, но там двери купе, поэтому в принципе протиснуться можно, хотя и неудобно будет наверно, над вторым вариантом надо подумать. Спасибо!
22.01.2013
Ответить
Ирина
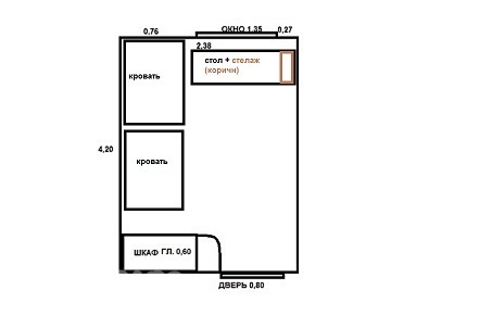
на ум только это пришло, может пригодится, но тут, как видите, размеры кроватей немного больше,чем у вас, но для наглядности сойдет,я думаю. Кровать № 1 ,около двери, головой к стене-ногами к столу, далее стол, потом шкаф. Кровать №2, головой к окну-ногами в стеллаж. Стеллаж. ТВ тут нет, если честно даже не имею представления куда его впихнуть, если только вешать над столом, но смысла большого в этом не вижу. удачи вам!

22.01.2013
Ответить
