Санузел
Интерьерное решение ванной комнатыДано: семья 4 человека: родители+ 2 дочери.
А вопрос вот в чем: что лучше сделать достаточно просторный совместный санузел (ну, относительно просторный 5 м), но совместный, или раздельный, но маленькую ванную и маленький туалетик.
В ванной будет жить еще полноценная стиральная машина.
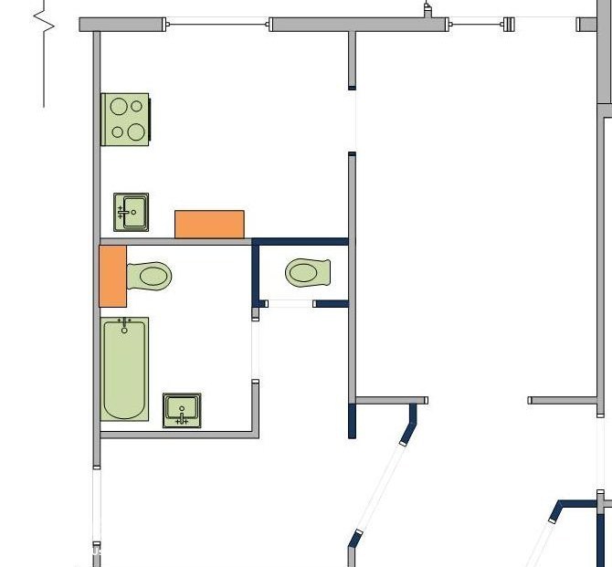
Примерные картинки получившегося:


Критика принимается любая, так же как и любые мысли)))
Камилла Лотманн, семейный фотограф
точно раздеьный иначе постоянная война за место под солнцем )) а в ванне в идеале 2 раковины, дочки подрастут и всем вместе надо на работу и в школу...
01.03.2013
Ответить
Таня
это все хорошо и правильно)))) но как-то не получается у нас все вместить, что хотелось бы(((
01.03.2013
Ответить
Камилла Лотманн, семейный фотограф
а на второй картинке мне кажется вообще все идеально
не думали про душ вместо ванны? и не обязательно кабину, сейчас многие делают стеклянную загородку без поддона, пол в этом месте слегка наклонен и вода стекает куда надо
01.03.2013
Ответить
Таня
нет, душ нам не подходит, все девочки (включая меня) очень водозависимые и любят поплескаться. На 2-й картинке получается небольшое растояние между ванной и машиной (а тут мы еще надумали взять сушильную машину, ибо балкона нет), ставить будем колонной
01.03.2013
Ответить
Катерина
я против совмещения. Вот весело кого-то из ванной выковыривать, когда в туалет другому приспичило или принюхиваться за шторкой. А вот так есть вариант сделать? У нас в планах подобное расширение СУ 

01.03.2013
Ответить
Ирина
а в какой программе картинки сделаны?
по теме - мне нравится второй вариант(но это же тоже раздельный....или я ошибаюсь?), я вообще против совместного су, нажилась - хватит), а на второй картинке от двери по стене можно поставить узкий шкафчик для бытовой химии и прочих прибамбасов
еще можно ванну повернуть по узкой стене, а на нынешнее место ванны поставить или раковину или стиралку-что проще
01.03.2013
Ответить
Таня
программа https://planner5d.com/
да, выложила оба варианта раздельного, совместный пока как-то не собирала, верхняя картинка вроде так и есть, как Вы сказали, или я как-то не так поняла?
01.03.2013
Ответить
Ирина
практически .....я имела ввиду - планировку как на 2 картинке, а расстановку ванна по узкой стене(как на первой), раковину оставить на месте(как на 2 картинке), а стиралку как на 1 картинке(рядом корзина для белья напрмиер, или вообще ничего)
01.03.2013
Ответить
Таня
да поняла теперь, кручу всяко-разно, ищу разные варианты, но что-то где-то не стыкуется(((
01.03.2013
Ответить
Таня
мне, теоретически тоже больше нра, но дети растут, девочки ванну любят принимать))
01.03.2013
Ответить
Юлия
будут составлять график посещений, у меня брат любит часами плескаться, проблема решается своевременным посещение сан. узла, перед его купанием =)
01.03.2013
Ответить
Таня
все, Юль, перекроила, вернула взад совместный, вставила туда стиралку и сушку, под раздельный будем через нное количество лет большую смотреть)))
01.03.2013
Ответить
Юлия
Я считаю, что совместный удобнее. У нас был изначально раздельный, крошечная ванная, и крошечный туалет, машинка ютилась на кухне. Потом раздолбили все стены и объединили, жить стало гораздо удобнее, и машинка переехала на законное место. А народу сама знаешь у нас сколько, не деремся =)
01.03.2013
Ответить
