Может кто то уже сталкивался?

У вас отличная площадь! Решений здесь может быть достаточно много, предлагаю рассмотреть такой вариант.
18.04.2013
Александра спасибо огромное за пример))) очень подробно))) очень вам признательна))) сегодня вашу красоту мужу покажу)))
19.04.2013
Обращайтесь, с удовольствием продолжу работу над вашей площадью!
19.04.2013
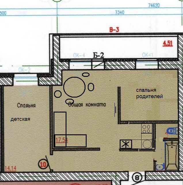
  может так, правда комнаты проходные и коридор маленький будет
16.04.2013
http://forum.homeideas.ru/thread21963.html  вот попалась тема. Может поможет
16.04.2013
о спасибо))) пойду юзать этот форум))
16.04.2013
и вот способы зонирования-
15.04.2013
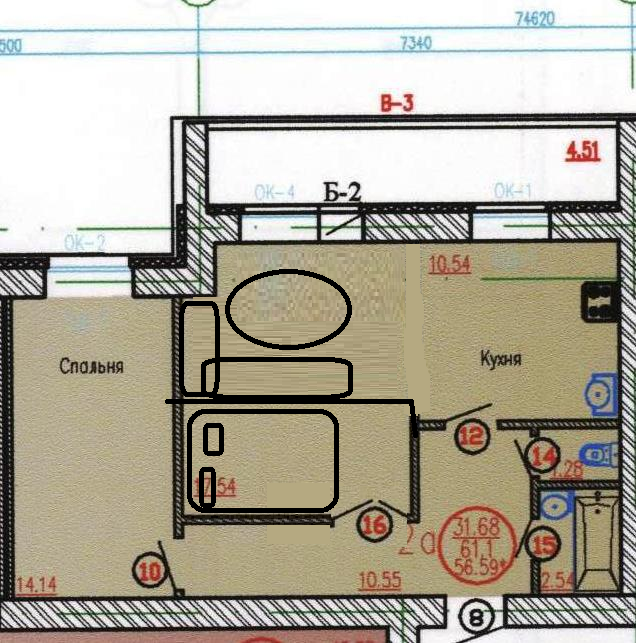
может как-то так
15.04.2013
спасибо огромное)))
16.04.2013
15.04.2013
если в доме нет газа и стены не несущие
15.04.2013
спасибо огромное за такую прелесть))) только у нас будет газ(((((( а так ваш проект супер ))))))  хотела спросить еще про зонирование комнат ?как думаете это вариант в нашем случае или совсем крохотная комната в детской получится, подскажите пожалуйста)))
15.04.2013
А у  вас там газ или электричество? Знакомые у меня протянули в зал все комуникации и сделали из неё кухню-гостинную а себе в кухне спаленку и ребетёнку соответственно комната досталась)) Я когда в гости первый раз пришла даже не поняла что это двушка))
15.04.2013
Хм... тоже имеем двушку и год, пока дом строился все спорили с мужем - нужна гостиная или нет)))) в итоге имеем - детскую, нашу спальню и кухню-гостиную)))) правда гостиной ее трудно назвать, тк нет пока ничего, зато у каждого свой уголок отдыха есть. Смотрите по ритму вашей семьи - нужно помещение для встречи гостей или нет. Мы за год поняли, что нет. Тк всегда сидим на кухне, а танцы-песни - в кафе или баре)))) собираемся на семейные обсуждения тоже на кухне. Как то так))))
15.04.2013
А стена между кухней и общей комнатой не несущая? Емли это просто перегородка, можно было бы ее сдвинуть левее к окну комнаты, тем самым уменьшив комнату и увеличив кухню. И еще можно объеденить санузел, оставив вход в него как сейчасв ванную. Т.о. кухня получится метров 15, если не больше и из нее делаетсякухня-гостинная с диваном, телеком и т.д. И остаютсядве полноценные спальни, имокрые зоны переносить не надо.
15.04.2013
ваша идея очень понравилась только стену намного не подвинешь наверное, там окно мешать будет)) или его тоже можно перенести?
15.04.2013
Я имела ввиду до окна подвинуть (до балконной двери). Судя по плану там где-то см 50.
15.04.2013
откидная кровать взрослая. будет тогда и полноценное спальное место вам и гостиная
15.04.2013
тоже о ней подумываю ))) если совсем никак)) еще понравилась идея с зонированием комнаты  что то типо этого)))
15.04.2013
ну да, или так
15.04.2013
Оставшиеся комментарии доступны после регистрации
Зарегистрируйтесь и получите полный доступ ко всем функциям сайта.
Двушку в трёшку, КАК? Программка для перепланировки