Какой вариант расстановки мебели в кухне выбрать?
Интерьерное решение кухниПрошу совета, девочки. Делаем мы ремонт в таунхаусе, с кухней вроде определились давно и даже в салоне уже прикунули что к чему. НО в процессе ремонта мне всё больше начинает не нравиться мой первый вариант. В результате родился новый план. Теперь не могу решить какой же выбрать? Хочу услышать мнение со стороны. Может какие-то советы. Какой вариант больше нравиться вам?

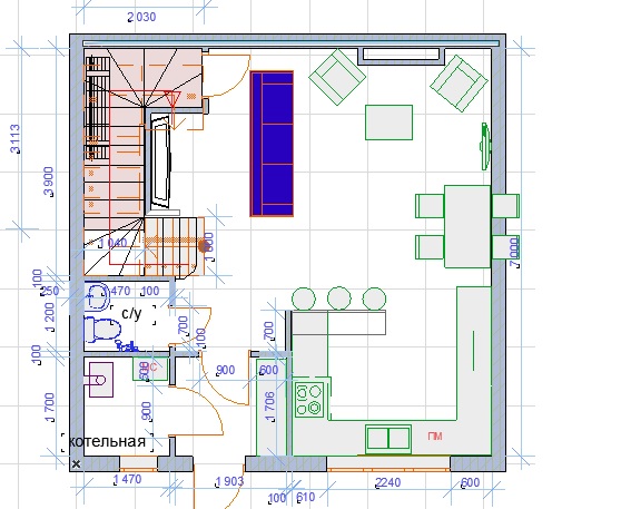
Выводы для мойки уже сделаны так что она полюбому остается у окна. Причем к первому варианту добавляется барная стойка справой стороны (видно на плане сверху) А так меня почему-то стали напрягать холодильник и колонка с духовкой, которые получаются посередине конаты, т.к. пространство кухни и гостинной у нас единое.
Второй вариант сделан мной лично в Архикаде, для наглядности.
1. План этажа с расстановкой мебели по 2 новому варианту.

Вид с коматы

вид с окна

А это первоначальный вариант (картинки из салона)



План первоначальный

Жду любых мнений, в ближайшие дни нужно определиться окончательно.

Я бы сделала барную стойку такую, она будет скрывать весь бардак во время готовки от посторонних глаз. И сделала бы кухню как во втором варианте, только стойку с другой стороны. Мы недавно были у друзей в коттедже и у них сделано именно так, очень удобно.