Квартира для Business People
Сейчас у меня идет активная работа над новым проектом.
Квартира на
севере Москвы, 120м2 свободной планировки. Проживать будет семья из 4
человек. Мама, папа, маленький сын и бабушка. Папа и мама как уже понятно по названию поста - люди серьезные. Занимаются бизнесом и как пошутила (а может и серьезно сказала) сама хозяйка: -"Нам с мужем много шкафов не надо, у нас вещей-то по 5 пар деловых костюмов у каждого".
Сразу было обговорено, что заказчики хотят получить просторную, современную, европейского плана квартиру с минимумом мебели. Для хранения решено было отвести гардеробную зону. А в каждой комнате поставить только по одному комоду для вещей первой необходимости.
Также меня попросили обойтись без витиеватых закруглений в общем дизайне и в потолках в частности. Так как в предыдущей квартиры они с этим наигрались.
Прошу под кат)
На данный момент утверждено 2 помещения: детская и большой с/у.
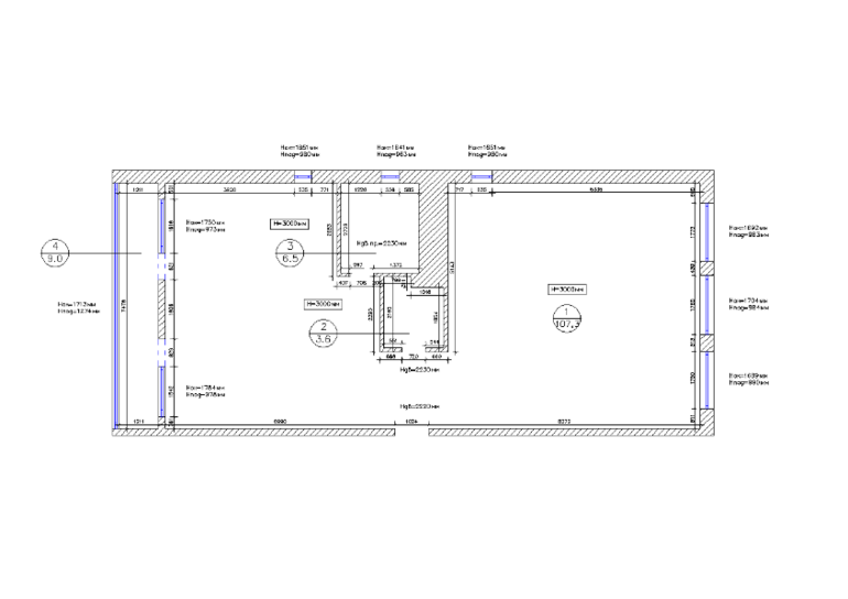
Изначальная планировка

Утвержденная планировка
Большой с/у



Детская



Мои контакты e-mail: Naamah1987@yandex.ru
Моб.: 8-905-767-13-32