Jeny
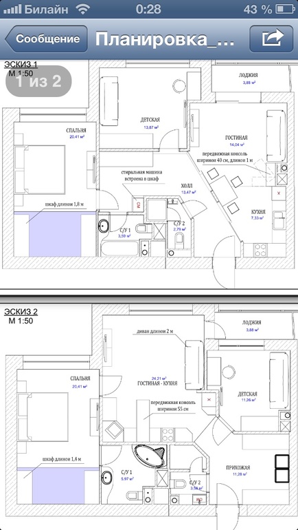
Первый. Детская не у дверей, кухня в уголочке (не люблю кухонные запахи в спальне), доступ на лоджию более удобный. Ну и вообще понравилось, что квартира как бы разделена на "гостевую часть" и "комнаты хозяев", никто никому не мешает..
12.09.2013
Ответить
Виктория
Спасибо, тоже так считаю. Лоджия и детская это не то. Все таки склоняюсь к первому варианту
12.09.2013
Ответить
Наталья
Мне понравился первый вариант по размещению комнат. Только вот не поняла, мойка на кухне стоит как бы отдельно? Если да, то это не очень удобно.
12.09.2013
Ответить
Oksana
Проголосовала за вариант 1, а теперь понимаю, что ошиблась! Второй вариант мне всё-таки больше нравится - меньше площади теряется на коридор. И размещение детей более удобное. Сына-подростка в дальнюю от родителей "Детскую", чтоб не подслушивал о чем взрослые говорят. А дочке будет удобно и в кухне-гостиной. Мама готовит - ребенок под присмотром.А в с/у 1 есть душевая, чтобы, например, старшему не приходилось бегать мыться в родительскую ванну?
12.09.2013
Ответить
