Двушка-распашенка
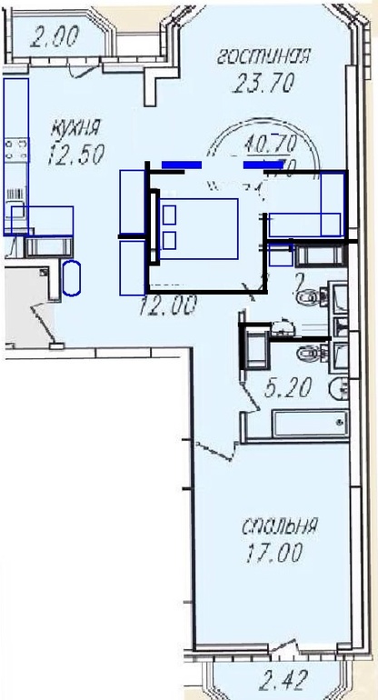
Перепланировки стен. Согласование перепланировки квартир и нежилых помещений.Очень нужны идеи, так как я в перепланировках полный профан и буду думать еще сто лет) имеется семья из мужа, жены, полугодовалого ребенка и лабрадора! Приобрели квартиру улучшенной планировки ( так написано было), двушку. Хочется, как и всем, собственную спальню, отдельную комнатку для сына и кухню-гостиную. Вот план квартиры.. Что с ней делать? Мне хочется комнату с балконом сделать нашей спальней, но и чтоб у сына была комнатка с окнами или просто чтоб светло было. Есть идеи? Вот план квартиры 
Саша
Спасибо Вам гигантское! Вы нарисовали именно то, что сформировалось у меня в голове!!! Во-первых, из туалета я и планировала сделать гардероб, а в ванной поставить унитаз и сделать совмещенный санузел, во-вторых, эркерные окна остаются для светлой гостиной и зона нашей спальни не будет сильно темной, в-третьих получается полноценная комната для сына! Вобщем, спасибо!!!
28.01.2014
Ответить
Elena
Совсем использовать туалет под гардеробную проблематично. Как я поняла, там проходит вентиляционный короб. Его надо обыграть. Я на рисунке чуть-чуть взяла из площади туалета, переместив раковину, и часть коридора.Но надо смотреть фактические размеры. Позволяют ли они так сделать.
29.01.2014
Ответить
катя
А почему все так боятся комнату с балконом отдавать под детскую? Мне, например, на кухне (без балкона) с приоткрытой форточкой ребенка оставить страшнее, чем в комнате с балконом. В комнате я открываю окно и на балконе форточку и все ок, и вентиляция и дети играют. А летом у меня вообще на балконе "игровая зона". Открывашки на окнах высоко, дочь пока даже со стулом не дотянется, ставлю на проветривание и она играет там. А если еще и замки на окна поставить, то вообще отлично) А зимой там склад игрушек.Я бы комнату в 17м отдала под детскую, где на балкон, например, можно периодически сваливать надоевшие игрушки. Да и если родится еще ребенок, то для двоих 17 м - отлично будет. А уж гостиную разделила бы на 2 части. С окном-под спальню (кровать, тумбочка, комод, больше ничего не надо там), и кухню-гостиную Г-образную. У вас и так 12 м, отлично, а в "апендиксе" от гостиной можно расположить рабочее место или сломав стену (смежную с кухней) совсем, примостить там диванчик, телевизор, кофейный столик. Хорошая квартира!Но, если у вас регулярно большие застолья, то конечно нужна большая гостиная и самим спать на диване. У меня кухня 10 м с копейками. Всегда с гостями на ней сидим, комнату дети занимают)
28.01.2014
Ответить
Алена (столешницы из кварцевого агломерата)
У нас подобная планировка. Кухня правда 14 м, детская 18 м с лоджией-ее отдали ребенку (2 года), , гостиную 22 м зонировали гипсокартонной перегородкой на спальню с кроватью и П-образным шкафом над ней и гостиную с диваном и зоной тв. На кухне диван со спальным местом для гостей.
28.01.2014
Ответить
Людмила
А может быть не "городить огород" - оставить комнату 17 м для детской, а для себя сделать нечто подобное в 23,7, тем более угол рядом с туалетом напрашивается? 







28.01.2014
Ответить
Саша
Спасибо, отличные варианты. Действительно, решили отдать сыну комнату с балконом, так всем будет удобней, а в большой отгородим себе спаленку)
28.01.2014
Ответить
Валерия
У нас очень похожая планировка, мы когда ее выбирали, я так радовалась что наконец-то пространство, а не закутки по 10 метров)))) насчет перепланировки тоже мелькнула мысль, но мы ее быстро откинули, и вот почему, перенеся спальню на место кухни вы будете с утра и до вечера слушать шум воды и топот соседей, ведь это основное место нахождение всей семьи вечером. Для нас это аргумент. И так в конце-концов хочется себя побаловать этими метрами, мы что не заслужили достойную спальню в 20 метров, просто ее надо зонировать на место для чтения и для сна)))))) а для приема гостей и кухни в 12 метров хватит, люди и на 6 метрах праздники устраивают. Вот так думаем мы, а вы решайте как вам удобнее)))
28.01.2014
Ответить
Саша
Спасибо, мы тоже так думаем, спальню переносить на кухню вообще не удобно будет!
28.01.2014
Ответить
Люба
Если дом высотный и нет газа. То можно из кухни сделать спальню, а из большой комнаты - гостиную. Только если надумаете все это согласовывать - Придётся похлопотать.
28.01.2014
Ответить
Катерина (Бест-недвижимость)
Забыла только дорисовать, там где вход в кухню, я его немного левее перенесла, а справа можно поставить ряд кухонных шкафов и холодильник. Кухня получается тогда параллельная, ну это как вариант. Можно ничего не переносить.
28.01.2014
Ответить
Саша
Спасибо большое, я о таком варианте и не думала) хороший вариант, потому что у реб полноценная комнатка будет, светлая, но с другой стороны жалко немного таких окон!
28.01.2014
Ответить
Катерина (Бест-недвижимость)
Если жалко окон, можно попробовать, как вам выше предлагали: в кухне сделать детскую/спальню, а из гостиной сделать кухню-гостиную, но в этом случае надо учитывать, что законно это можно сделать, только если вынести мокрую зону в нежилое помещение (коридор или туалет). Вот вариант с коридором (там раковина расположена в нише на месте бывшего коридора):
Точно так же можно оттяпать не коридор, а часть туалета под мокрую зону, перенеся стену туалета ближе к унитазу.
Точно так же можно оттяпать не коридор, а часть туалета под мокрую зону, перенеся стену туалета ближе к унитазу.
28.01.2014
Ответить
Оставшиеся комментарии доступны после регистрации
Зарегистрируйтесь и получите полный доступ ко всем функциям сайта.

