Где ставить кухню, совсем запуталась, нужны советы знающих
Интерьерное решение гостинойДевочки выручайте, помогите определиться где сделать кухонный уголок в кухне-студио (аля гостинная, рабочий кабинет мужа). В связи с сумашедшим курсом доллара уже рассматриваем ремонт только первого этажа квартиры, а второй этаж, там где спальни уже потом... по возвожности. Хотя я не представляю как разместиться на такой площади семье из 4-х человек.(Хоть и временно)
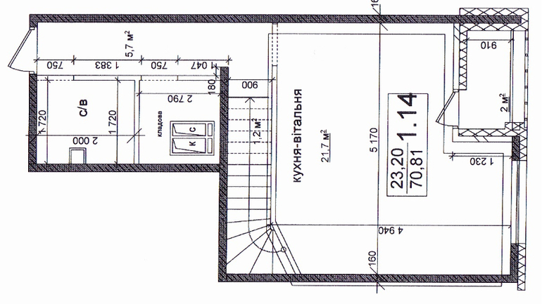
Комната небольшая 21,7 кв. м. Нужно разместить кухонный уголок рабочее место мужа, ну и диван стол, вобщем всю необходимую мебель. Прилагаю 2 фото, где я набросала расположение, но все равно картину вцелом сложить не могу. Буду очень благодарна за помощь.

Ежевика
Первый вариант мне кажется не очень удачным, запахи с кухни будут подыматься на второй этаж и в другие комнаты по этажу. На мой взгляд пространство возле лестницы оно более проходное, а кухонный угол это что более закрытое. Не рассматривали вариант кухонную стенку возле окна? Но я не сильно понима размеры стены и есть ли привязка к коммуникациям (газ, вода, электричество)
23.02.2015
Ответить
Далиса
Около окна муж выделил себе место под кабинет, так как он работает дома. Да и коммуникации рассчитаны на то что кухня будет около лестницы (так предусмотрел застройщик) А мне так тоже не комфортно, готовить еду на проходе... вобщем я в растерянности
23.02.2015
Ответить
Ежевика
Да уж, планировщик явно не готовит дома)) тогда оставите второй вариант, кухня с левой стороны от лестницы. Вам еще туда нужно стол обеденный и место отдыха (диван и что еще) правильно?
23.02.2015
Ответить
Ежевика
Я бы ставила диван спиной к кухне на стену телевизор, возле стены консоль или не громоздкие шкафы-полки (взависимости от необходимости ). А вот обеденный стол можно поставить возле окна, судя по рисунку там много свободного места, если он в моштабе
23.02.2015
Ответить